与其模仿,不如专属。 ——犀宅原创设计
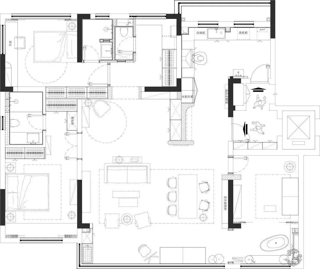
看过许多小户型一人蜗居的案例,今天这个独居173㎡又让小编羡慕哭了!话说,并不是有钱就有好品味,那些“冰冷酒店风”、“俗气暴发户风”,不仅辣眼睛,住起来也并不舒适。本案屋主就不一样了,她的新家可以说处处是家居杂志既视感,虽然没屋主有钱,但学学人家的品位也不错~屋主是一位热爱生活的金牛座姐姐,不爱买包不爱买车,独爱装点自己的家,之前已装修过好几套房子,对家装有比较成熟的理解与审美,装修之初就与设计师沟通好了新家的定位:复古、自然、放松,完全围绕个人习惯展开。 玄关&厨房
房子原本是四室户型,一人居住略显累赘,也不能满足屋主对于功能空间的需求。设计师将两间房打开后重新规划,实现了家政区、影音室、书房、休闲区等功能,来满足屋主的“惬意独居生活”。 在风格上,整个空间底色轻和舒缓,近似于“没有颜色”的朴实,而软装选择则偏向混搭,复古、质朴、轻盈、简约等不同气质,以恰当的配比柔和装饰于家中,呈现出一个独具特色质感的独居空间。
将原有厨房空间重新整合打开,左侧打造弧形入户端景墙与厨房相连,增添玄关空间的完整性与私密性,让进门后的第一视野更具有仪式感。端景墙中间嵌入老榆木抽屉柜,与白墙相衬,清和之感盈然而生,抽屉也满足出入户杂物的收纳需求。 利用侧面补充收纳之后,厨房舍弃了传统的吊柜布局,如此便可让空间视觉更加轻盈开阔。半墙铺贴瓷砖起到防水效果,上半墙拼接硅藻泥,自带质朴纹理感。吊顶则采用木制造型梁,让烟火气十足的空间也染上几分浪漫。
玄关侧面墙体做高柜设计,通顶的柜体结合嵌入式冰箱,美观整洁且扩充厨房的储物空间。冰箱布置于外侧,缩短了动线,从客餐厅过来拿取饮料水果更加方便。
左侧空间用以定制顶天立地收纳柜,纯白柜体仿若白墙,将柜体隐形。与次卧相邻的右侧打造客卫马桶区,便于客人来访时使用,动线方便。
收纳柜靠墙角落预留出来安装台盆,台面选用大理石板并延伸上墙。
家政区与客餐厅之间开放连通,无门槛石地砖通铺,增强整体感,上方吊顶安装中央空调及新风系统,避免占据客餐厅的空间层高。 客卫
客卫马桶区从原洗手间中剥离出来,置于家政区,与公共区域联系更为紧密,方便朋友前来做客时使用。石材半墙裙与植物壁纸的结合,让小小的空间视觉效果更显丰富。利用壁挂马桶后方空间以及深度差,巧妙嵌入石材一体盆,便于如厕后就近洗手清洁。 客厅
地面选择有怀旧肌理感的灰色水泥砖,采用井字形拼法,增添视觉美感及层次性,通铺全屋加强空间整体感。这个角度可以看到沙发背后的家政区,家政间与公区之间做开放式处理,内部L型布局增加结构层次感,同时不影响采光,保留公区的通透明朗。 客厅的布局不同于传统思路,沙发以不对称形式,两排相对摆放,搭配移动灵活的单人位,形成围合式布局,亲友小聚时更加温馨。 餐厅与客厅前后整合为一体,节省空间且保证视野开阔通透,同时不影响各自的功能独立。 客餐厅均采用统一的平面吊顶,顶面一体化设计更显开阔与整体性,增加了视觉上的延伸感。暗装筒灯与吸磁灯和谐搭配使用,可调整丰富的光影层次及灯光效果,满足居家时不同场景的灯光氛围需求。 餐厅 木质长餐桌强调餐区自然质朴的气质,也延展出就餐之外的其他功能,宽敞桌面可满足工作台、会议桌等使用。 两盏纯白蚕丝吊灯是空间的亮点之一,温柔弧线呈现出流水般的舒缓气质,烘托光影,也很契合安静复古的空间质感。 餐厅侧面靠墙定制了水吧台,将餐区使用频率最高的功能整合于此,更契合屋主的日常使用习惯。吧台采用白色柜体与木质台面结合,简洁大方,一幅艺术装饰画随意摆放,温柔耐看,大地色系的画面也与空间呼应。 阳台 阳台侧面靠窗打造飘窗,结合窗户尺寸于下方定制卡座,收纳柜体与台面相结合,实现兼顾实用与美丽的阳光角落。旁边墙面利用厚度内嵌了壁龛,拱形造型烘托复古气质,摆上复古造型蜡烛,氛围感瞬间拉满。 正面阳台同样做休闲区布置,双人沙发搭配榆木边几,构成一个悠闲放松的场所。落地窗将晴日阳光与景色引入室内,轻盈的白纱帘被风拂起涟漪,闲暇的午后泡壶茶,窝进沙发晒太阳或看书,感受安静时光里慢下来的舒缓节奏。 书房 临近客餐厅的东次卧被阳台横跨相连,将部分阳台区域扩入次卧内部,并定制木百叶折叠门,灵活控制两个空间的连接与独立。 空间内部则改动为多功能休闲空间,直排长沙发可坐可躺,搭配万向轮边几,集书房、影音、泡澡为一体,契合屋主生活习惯,提升品质。 纳入多功能室的阳台改做浴室,提前确定下水管道等结构,安置浴缸,结合大型落地绿植和复古吊灯,实现一处度假酒店既视感的泡澡空间。背景墙定制了壁龛收纳,方便放置洗漱所需的卫生用品,也可以摆放香薰、蜡烛等增添情趣。 主卧 主卧在遵循整体风格的基础上,融入了更多美式乡村的元素,铁艺烛台吊灯满满的复古怀旧感,混搭出睡眠空间特有的静谧、放松和惬意。 床头背景墙影影绰绰的树叶壁纸,与做旧老木头的藤编床很搭,床头柜上的丝绸流苏台灯,粗粝的老木纹理碰撞精致典雅的丝质,独特的气质韵味,为床头点亮一份氤氲光影。 床头另一边放置了一只实木斗柜,深色木质搭配厚重的黄铜画框,犹如穿越回中世纪的某个时刻。这里也是屋主钟爱的阅读角,见证着很多沉浸式阅读的时刻。 床尾靠墙安置了屋主的化妆桌,一旁的花艺流苏落地灯典雅又复古,犹如文艺复兴时期亭亭玉立的贵族小姐。 主卫 主卧卫生间布局为U型,做干湿分离设计,隔断选用独特的琥珀色圆孔玻璃砖,增加空间透光性,视觉效果也艺术十足。 次卧 次卧目前作为备用卧室,床尾定制了与墙同宽的书桌,悬空造型轻盈简洁,作为办公或者阅读空间使用。上方定制壁挂开放式书柜,采用优雅圆弧转角,美观也防止磕碰。 次卫 次卧卫生间洗手台采用石材一体,部分上墙起到防水效果。入墙式水龙头简洁大气也节省台面空间,墙角还做了艺术雕刻,彰显审美品位。 家要美,也要好用,四室改两室后,规划了会客影音、休闲一体的独立空间,和处理日常储物清洁的家政间。整体居家氛围是去风格化的,朴实柔美,偏重自然,简单干净的基底在上妆时更为百搭。 随着四季的变化,家也跟着变化,随心、随时间、随四季而动,家与生活同频,便是屋主最喜欢的模样。 改造要点提示: 1、入户墙体与厨房空间衔接并定制柜体,满足玄关隔断视野需求,同时扩充储物容量; 2、厨房与家政间打通做开放式处理,空间更开阔,玄关也更加明亮; 3、次卧拆墙改为家政间,增加收纳能力,并安置客卫马桶区; 4、主卧与次卧之间墙体拆除,次卧打造与墙面平齐的衣柜,节省空间且不影响主卧; 5、餐厅位置与客厅一体,更符合屋主日常使用需求; 6、东次卧改为半开放式多功能区,与阳台打通以折叠门隔断,利用阳台空间安置浴缸,集影音、客房、泡澡等多功能为一体,增加公区空间的通透感。
项目概况 项目地址 | 安徽 芜湖 使用面积 | 173㎡ 项目花费 | 75w 设计团队 | 犀宅原创设计 |
精华推荐
换一换




发表评论0