本案160㎡,男主人因工作时常在外,女主人是律师,平时与孩子、阿姨一起常住。初期设计时,男女主人细腻的描绘了他们对于家的期望。设计师读懂了这幅未来的生活蓝图,于细节处精妙拆解空间,既让日常动线自在流畅,更让每个关于家的期待,都妥帖落地。
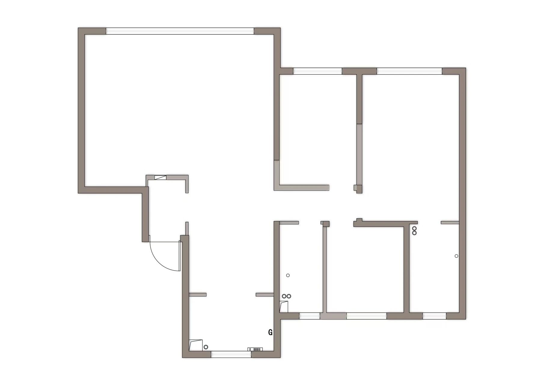
平面改造思路: 1.将卧室区的过道整体向南移动,从而将原有厨房跨度和餐厅尺寸扩大,平衡客餐厅的功能比例。 2.利用原有过道区域增加家政空间,以及餐厅的咖啡角功能,同时在视觉上狭长的过道变得开阔。 3.调整过道动线后,主卧室门向南移动,衣帽柜得以靠边安置的同时,也扩大了主卫的空间。
家的第一缕温柔,藏在推门即见的通透里。为了这份开阔,设计师拆掉了原本封闭的门厅,散去空间的阻隔,视线便被解开束缚,自在铺展。沿着墙角设置延伸的薄柜,绕至另一面墙与柜体相接,不动声色间拓出充裕的储物区,柜门嵌入镜子,既收纳归家的琐碎,也满足出门前的整饬需求,让每个进出的瞬间都从容妥帖。
阳光漫过窗棂的客厅,是家的舒展地带。因其开阔,恰好匀出一角安放办公区,工作与生活在此温和过渡。硬装以简素为底,未加繁复装饰,客厅整体区域过低也没有增加吊顶,设计师便循着业主心意挑选家具,用几笔吸睛的色彩与之呼应,悄然晕染出 “简约却不简单” 的气韵,营造出与生活长久相处的舒服格调,让风穿过家的缝隙时,都带着不易察觉的芬芳。 家的平衡在无形中生发,让所有奔赴都带着从容的弧度,与客厅对望的办公区,就是生活与工作的平衡术。一侧的高低柜悄然围合出专注的氛围,高柜默默承载储物的功能,低柜与上方置物架则妥帖收纳常用书籍资料,随手摆放的装饰小物也在此找到归宿,不经意间便圈出一片阅读场域。可调节高度的升降桌灵活实用,桌下特意留空的角落,恰好容下打印机,让每一处细节都为日常服务,日子便在一种透明的张力中展开。 家的动线载着生活的呼吸节奏,设计重构空间脉络,让每一步都走得稳固,静静托举着每一刻的幸福。原客餐厅通往主卧的过道偏窄,设计师将儿童房与主卧整体南移,拓出开阔通路,主卧门也随之调整。 客卫采用三分离设计,洗漱台向外延伸,补齐墙体的厚度,共同围出一方咖啡角,设置立柜并与墙面呈对角排布,既容得下咖啡机的收纳,又留足透气空隙。餐厨区拆掉两侧墙垛,用四联动门阻隔油烟,保持全开放式互动格局。客厅未做吊顶,餐厅的空调出风口与客厅回风口“相撞”,于是,设计凹槽让出风口斜向朝下,巧妙化解“撞车”难题,循着生活本真,让空间与日常温柔相拥。 厨房是家的味觉实验室,当它彻底向生活敞开,连空气都变得开阔。空间随之拓宽后,花岗岩水池与台面无缝相连,浑然一体的质感里藏着实用巧思。站在这里料理三餐时,抬眼便能撞进窗外南湖的全貌,粼粼的波光与四季的景致,都成了烹饪时最温柔的背景,每一缕烟火气,都与自然的馈赠撞了个满怀。 空间的微调是对日常的温柔体恤,像水浸润土壤般自然。次卧的房门换了方向后,原来的位置便有了新的使命,衣柜悄然伫立,并且特意留有空隙,让门的开合从此再无牵绊,从细微之处,完成家最动人的模样。 好的设计改造,是为了让空间的每一寸都各得其所。客卫的调整,让洗漱区被彻底独立出来,洗手盆对应的墙面覆满镜子,默默地延展着空间的视觉边界。延伸出来的咖啡吧台对面,成了实用的家政空间,借着主卧房门南移腾出的位置,洗烘区在此安家,构成一个开放又有序的功能角落,让生活的琐碎有了安定的归处,如同风与枝桠的低语,无需刻意,却从未停歇。 主卧的 “移动”,恰到好处的配合着空间的温柔重构。与儿童房相连的墙体,拆掉非承重部分后,重塑出一道 “凹” 型墙面,儿童房因此有了专属衣柜区域,主卧的柜体也与之以 S 形自然衔接,像是啮合效应,结合的严丝合缝。所有衣柜只定制柜门,内部嵌着金属衣架,既省却多余花费,又透着环保的巧思,空间格局也能随需求自在调整,让空间中的每一处线条的咬合,都形成生活与空间的默契对话。 细微处的品质,是日常幸福感的重要来源。主卫原有的局促感,因向外延伸的设计悄然化解,墙体顺势拉至与另一侧衣柜齐平,新的入口安然的向外推移。调整后的卧室空间更显方正,洗漱、沐浴等功能在主卫里一应俱全,却丝毫不见拥挤,让生活的从容灌满家的每道缝隙。 儿童房是藏着童话的小天地,上下架子床是这里的奇妙城堡。上层是安睡的梦乡,下层则化作孩子的秘密基地,所有珍爱的小物件都在此栖居。设计师贴心地在墙上装了可转动角度的小壁灯,拉起帘子的瞬间,暖光漫溢,氛围感便浓得化不开,盛满孩子纯粹的快乐与想象。 晨起时第一缕斜照的阳光 暮色里沙发陷进疲惫的弧度 这些被赋予的恰到好处的温度 是设计一直坚守的目标 格格 主案设计 项目名称:曲江城市树 项目类型:私宅平层 项目位置:中国·西安 项目面积:160㎡ 完工时间:2025.5 主案设计:格格 项目摄影:leo. 文章来源:筑客Time传媒 |
精华推荐
换一换


发表评论0