首页推荐
编辑精选
评论最多
查看最多
SKB板绘31
有没有大佬帮忙看一下,金币奉上
不知道怎么做方案,求大神指教
cad这个户型厨房难做
回帖奖励
请各位大佬指点一下。
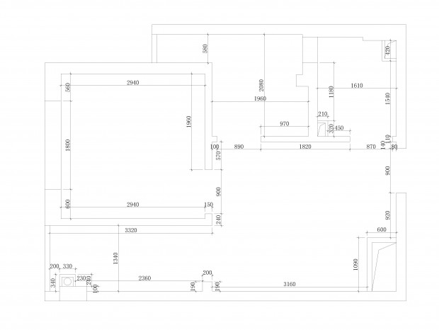
求助 这个异形户型怎么搞哦
单身公寓布局求指教
求各位大佬指导牛一点的平面图
大佬们来瞧瞧,帮忙出谋划策
詹贺钧设计机构 辰星一力创设计 ~~~~第四季户型交流
SKB板绘30
新中式
求大神在线指导
改四房
新手助理求教
练手
求大神优化功能方案!!!!
有没有对餐厅这块有想法的设计大佬 ,,真是看着别扭,我头想炸了
小户型,使用功能为主。求大神帮忙
求助大佬我这个户型怎么改。。
自己的房子,求大神看看还有没有更好的方案
求大神 方案
大神帮看一下这个户型如何规划更合理,觉得沙发后面是餐桌不太喜欢
两室卧室
中式 自建房设计求大佬指点
请大神指点一下
大神有没有好建议
年轻夫妻两个孩子要有放钢琴的地方
自建房设计 望大佬指点 给予1000金币奖励
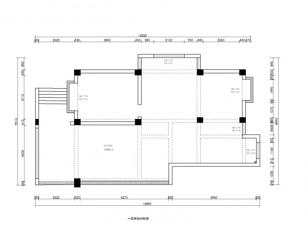
户型交流
求大神优化,一个300多平的户型
求天马行空的设计(极简北欧)黑白为主
我自己家的老房子,户型很难设计,求大神帮忙,感谢
(回帖奖励50金币)自家户型简单布置一下,看看可还行,提提意见。
求大佬帮忙指点
混搭风格
SKB板绘29
回复即有奖励!求户型修改建议
大家帮忙出出意见
入行新手,求各路大神指导!思维不够扩散,想法不多,所以恳请大神们指导一下!
求大神看如何布置平面方案
小三室户型方案,多多指点,谢谢
沙发这样摆会不会好一点
SKB.板绘28
两层自建房 求大神给更好的思路
方案已粗略布置,求更好的表现方式
求大神帮忙如何分隔客厅和卫生间放置婴儿澡盆
大神们有啥好思路没么?提点建议...
老房子在一楼,一个老太太住。要求在阳台有洗衣机、拖把池、和一个储物间。
板绘27
有木有大神练练手的 给点建议
新手一枚 想问下 进门到餐厅这块有什么好的想法吗 总觉得太浪费了
自己做的方案,求大神指导
现代全景三百中式欧式四百 价格优惠 质量保证 需要做效果图加我微信哈:M211615885
自己做的一张平面图,求大神指教改进
餐厅平面求助 (有没有平面在行的大大)不用很细 skb或者画图 给个方向就行,感激...
求大佬帮修改平面布局
帮忙
非常的纠结不知道选哪个,请大家帮忙
像各位大咖学习下有没有好的思路
请大神帮忙看一哈,怎么改好。
家庭户型求优化,求各位大神在优化一下。
C型户型
自我挑战
求大神帮忙设计一下楼梯位置;或者帮忙设计一下房屋的平面位置(怎么合理怎么来)
大佬帮帮忙!!!
麻烦大家有时间的帮忙出个主意
酒店大堂概念方案-溪地设计张冰
200+大平层再优化
求大师!客户想要个异型的方案实在想不出
执手
求助各位大神
家里人太多,6人100平,三房改四
各位大神指点一下
求大佬帮帮忙
求助大神指导一二,小户型比较棘手
406158
工作日:早9点--晚5点
客服QQ微信:406158
关注拓者设计吧让设计更有范