首页推荐
编辑精选
评论最多
查看最多
质感 | 黑白灰
现代暗色系列客餐厅
大唐花园380m2现代 | 以现代艺术栖居时尚大宅
郑州 映像視覺 | 商业写实组 | 原木诧寂
办公楼大厅 写字楼大厅设计案例效果图
ktv设计案例效果图
工装案例 —— 口腔医院
现代简约-捌贰陆空间表现
Modern style | 光遇 · 原创帮
现代轻奢风格 办公室 办公场所
盒子空间——精致侘寂风
2022-05-16-慕尚
高端写实轻中式别墅效果图
新中式私宅,一半烟火一半诗!
图胜千言视觉表现-现代客餐厅
工装||健身房
现代轻奢别墅,温润高级沁人心脾!
夏印设计表现//简美卧室效果图分享
武汉品承设计||万科·御玺滨江||现代简约||212㎡
图胜千言视觉表现-卧室合集
中古与北欧结合 | 演绎不过时的优雅
超温柔的“奶油风”,简直酥到心底!
简中丨简单中透着雅致
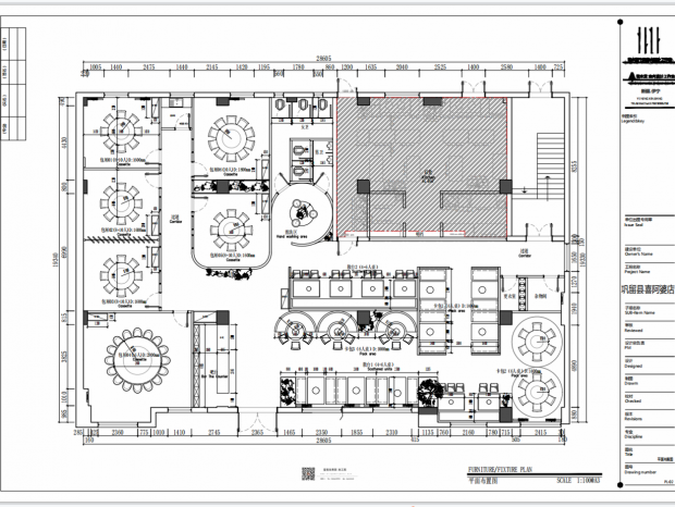
巩留喜阿婆 | 餐厅施工图
现代轻奢 · 低调奢华
轻法式 | 一半是高级,一半是浪漫动人
你是沿途,有青山举杯丨设计现代案例
热爱生活,万物尽可期待丨现代设计案例
现代 | 恰到好处的轻奢风
源头装饰画厂家
现代极简设计案例|我们热爱这个世界时,才真正活在这个世界上。
现代极简设计案例|愿我们善良而坚强,温柔且独立
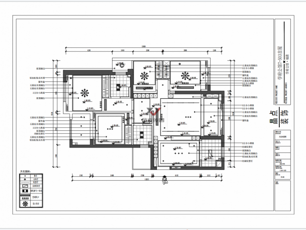
学府公馆-施工图
现代轻奢丨超有质感的香槟色
合肥深零设计新作 |【融创玖樟台 】简法独居空间,氤氲生活“慢节奏”!
新中式 | 年轻人内心的中式情怀
【雲央视觉】武汉汉正街韩装商铺
新晋网红“奶油风”,让家的颜值开了挂!
V8空间表现 | 卧室空间设计
足浴会所:休闲放松的好去处 —— 日出设计
映像视觉【现代风格】
文具店 | 窗外有风景,笔下有前途;低头是题海,抬头是未来
暗黑系风格
湘菜馆 | 相见恨晚不如“湘”见恨晚
KTV大厅设计案例效果图
食堂 / 快乐干饭人的天堂
原木风轻侘寂|营造极简空间美
新中式办公室|传承东方美学
酒店
文化中心
现代设计案例|世界会向那些有目标和远见的人让路。
家装||高级灰
古典中式风格——独属于东方的灵犀与韵味
现代平层设计案例丨要悄悄拔尖,然后惊艳所有人
法式设计案例丨愿你以渺小启程,以伟大结束
现代极简-回到家后是放松和享受
足浴养生会所,一改传统,新潮十足
图胜千言视觉|现代售楼处
Modern style | 红蓝相撞
室外||别墅外立面
婚纱店设计|人间值得
新中式 · 简单古朴的美感
现代别墅案例分享
新中式 · 和胡桃木绝配
现代丨简约格调
现代|克制与内敛,勾勒生活的本真
火锅店这么设计,超级出圈!
奶茶甜品店|空气弥漫着奶茶的香甜密码
映像视觉【日式禅意】
变更思路 打造功能空间
KTV包间.ktv包厢设计案例效果图
几何共社 丨私宅设计丨 精装爆改的美艳住宅
韦克丨治愈简约风,奢享慢生活
静白之境
办公室|办公室|干净纯粹,简朴至极
现代||家装
绿地剑桥洋房侘寂极简风
新中式— 简单大方又不失韵味
法式轻复古|住在复古电影里
银行|打造一个宽敞开阔的公共区域
406158
工作日:早9点--晚5点
客服QQ微信:406158
关注拓者设计吧让设计更有范