|
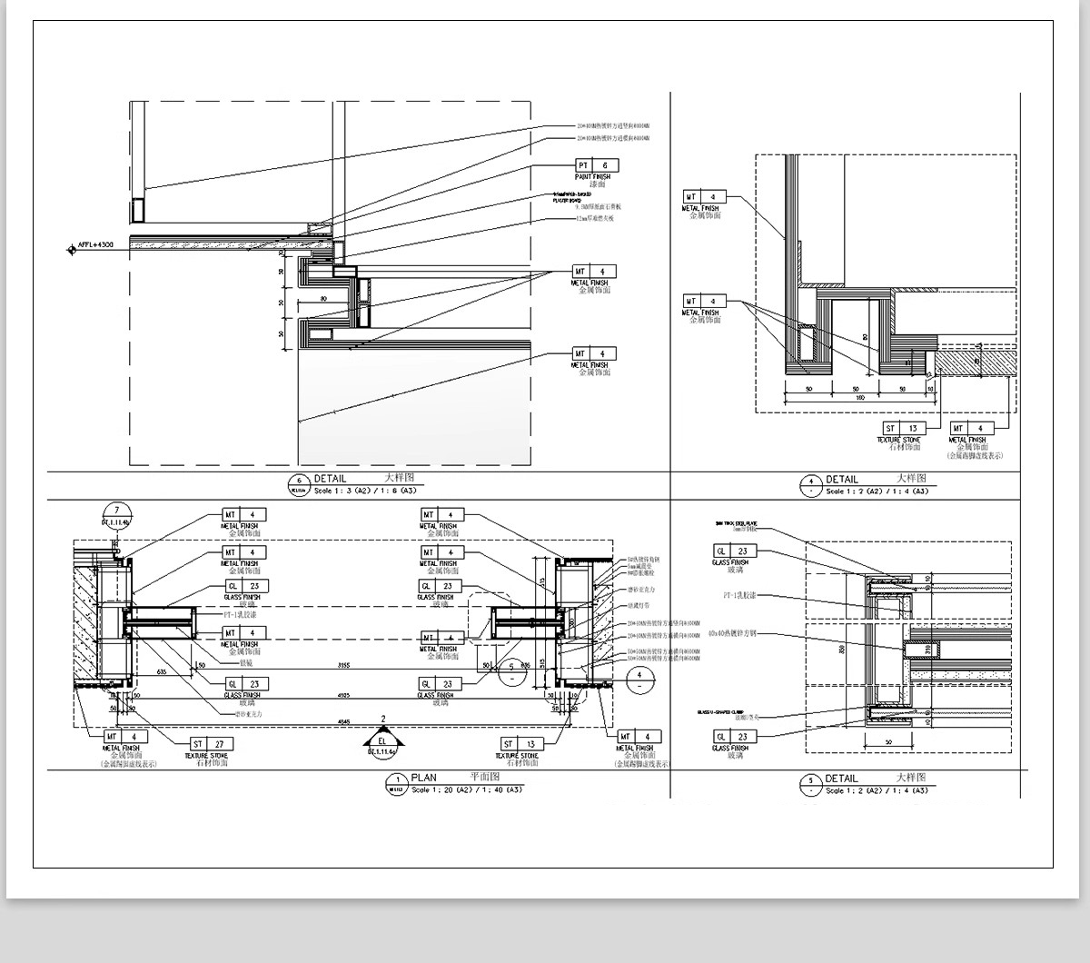
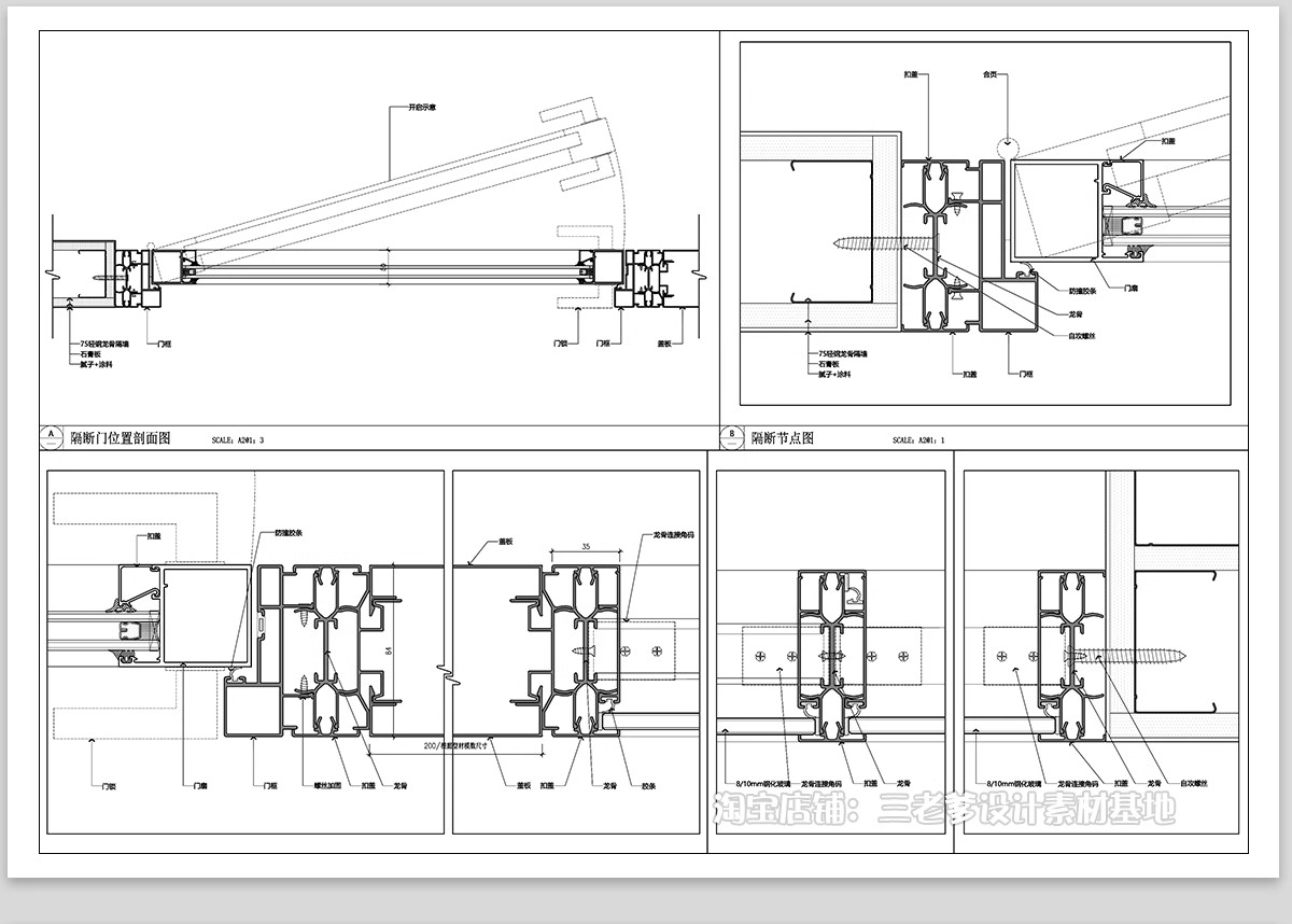
本帖最后由 摇曳的杜英 于 2025-10-31 10:22 编辑 最新整理,发光玻璃隔断CAD合集 包含施工图 节点图 大样图 【不锈钢屏风节点大样】
发光玻璃隔断+不锈钢屏风隔墙 ①施工图②节点图③大样图 ④资料大小220M
方便快捷,简单易懂,轻松上手,操作方便,大大提高签单的效率 |
-
-
H-9发光艺术玻璃隔断CAD施工图不锈钢屏风图库隔墙节点大样做法详图.rar
169.28 MB, 下载次数: 1
售价: 11 交易币
精华推荐
换一换



这和签单的效率有什么关系?