|
本帖最后由 拓者r58r4xa5 于 2025-11-11 20:41 编辑 三代同堂双套房,时空叠境焕新生! 关注东余 掌握全案设计逻辑 项目类型:跃层住宅 项目面积:249㎡ 项目坐标:湖北
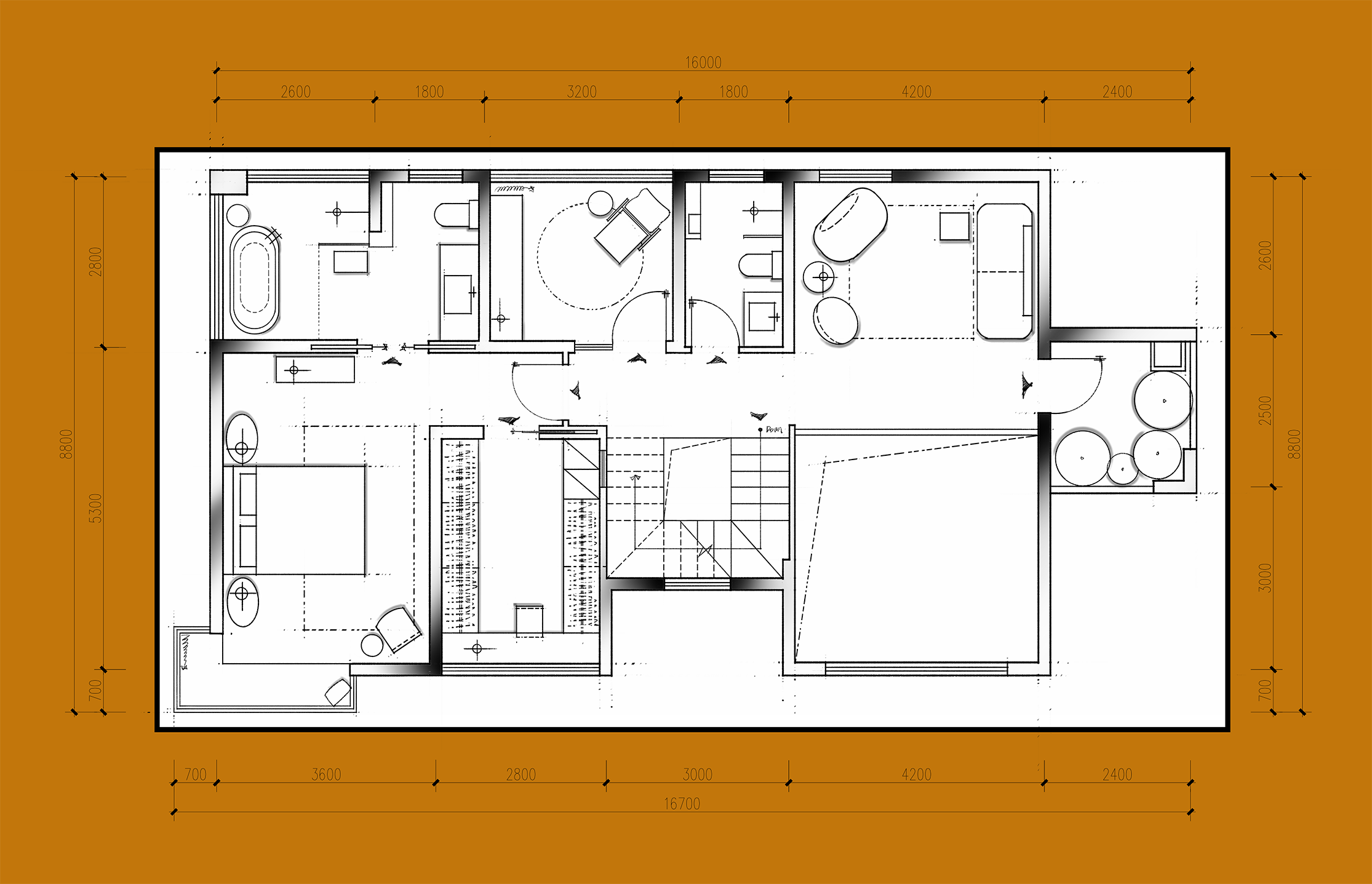
优化设计:东余设计 原始结构图 1F
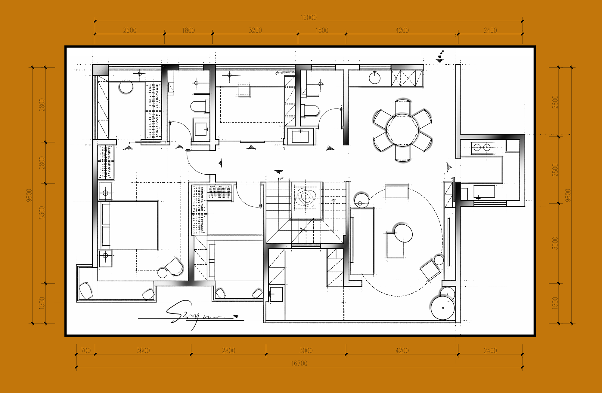
2F
基本情况和设计需求 基本情况: 1、家庭常住成员:5口人(三代同堂) 2、男、女主人都是自媒体从业者 3、父母退休(长期同住)照顾孙子 4、女主人喜欢捯饬一点绿植 5、孩子目前5岁 设计需求: 1、一层空间考虑为父母套房和儿童房 2、二层空间考虑业主套房和附属空间 3、客厅空间需要一定的挑空 4、需要有单独的家政、洗衣、晾晒区域 5、两层楼都需要书房空间 6、公卫需要干湿分区 手绘方案
2F
关注东余、服务全国设计师! 东余业务合作 1、高定户型优化合作 2、SU模型表达 3、全案设计课程 超高性价比、值得你拥有! 联系我:DYDD-001 官方公众号:东余设计(关注官方公众号 了解最多项目完整动态) 本文以及方案均为东余原创 已申请原创保护 转载注明出处! |
精华推荐
换一换




发表评论0