每日签到
家装
样板间
别墅
酒店
图块
户型
年费
别墅
样板间
酒店
商业
办公
售楼处
客厅
餐厅
厨房
卧室
书房
儿童房
洗手间
玄关
地板
木纹
石材
地毯
布纹
壁纸
挂画
户型
CAD
模型
案例
贴图
图库
帮助中心
密码找回
发帖方法
首页
发现
年费
作品
图纸
交易
软装
工装
SU模
金币
年费版块
年费图纸
年费户型
年费高清
年费视频
年费模型
年费精选
设计案例
家居别墅
国外作品
名师作品
酒店空间
餐厅空间
咖啡店
茶馆
酒吧
KTV
会所
售楼处
办公空间
工作室
展厅
书店
健身房
美容美发
专卖店
场馆
视频案例
图纸概念
家装CAD
别墅CAD
样板间
售楼处CAD
酒店CAD
餐饮CAD
办公CAD
商业CAD
CAD图库
平面方案
家装概念
别墅概念
样板间
酒店概念
餐饮概念
办公概念
商业概念
售楼处
其它方案
交易模型
客厅
餐厅
厨房
卧室
儿童房
书房
茶室
卫生间
衣帽间
玄关
阳台
花园
车库
酒窑
健身房
娱乐室
其它空间
SU模型
软装单体
多人沙发
单人沙发
桌椅组合
茶几边几
休闲椅
单椅
床品搭配
双人床
床凳
床头柜
电视柜
衣帽柜
装饰柜
酒柜
门类
吊灯
落地灯
装饰灯
装饰品
装饰画
地毯
窗帘
绿植
电器
厨具
卫具
构件
工装模型
大堂前台
酒店餐厅
包间
客房
咖啡厅
火锅店
快餐店
茶楼
酒吧
KTV
洗浴中心
健身房
商场
专卖店
服装店
美发店
美容院
洽谈室
公卫
电梯走廊
办公前台
会议室
经理室
办公室
售楼处
SU模型
客厅
餐厅
厨房
卧室
儿童房
书房
茶室
卫生间
衣帽间
酒店SU
餐饮SU
办公SU
商业SU
金币模型
金币客厅
金币餐厅
金币卧室
儿童房
金币书房
金币厨房
洗手间
金币单体
金币酒店
金币商业
作品
家居别墅
国外作品
酒店设计
餐饮设计
商业空间
办公空间
渲染作品
户型方案
模型
金币模型
交易家装
交易软装
交易工装
SU模型
交易上传
金币模型
金币客厅
金币餐厅
金币卧室
儿童房
金币书房
金币厨房
洗手间
金币单体
金币酒店
金币商业
金币上传
交易模型
客厅
餐厅
厨房
卧室
儿童房
书房
茶室
卫生间
衣帽间
玄关
阳台
花园
车库
酒窑
健身房
娱乐室
其它空间
SU模型
软装单体
多人沙发
单人沙发
桌椅组合
茶几边几
休闲椅
单椅
床品搭配
双人床
床凳
床头柜
电视柜
衣帽柜
装饰柜
酒柜
门类
吊灯
落地灯
装饰灯
装饰品
装饰画
地毯
窗帘
绿植
电器
厨具
卫具
构件
工装模型
大堂前台
酒店餐厅
包间
客房
咖啡厅
火锅店
快餐店
茶楼
酒吧
KTV
洗浴中心
健身房
商场
专卖店
服装店
美发店
美容院
洽谈室
公卫
电梯走廊
办公前台
会议室
经理室
办公室
售楼处
SU模型
客厅
餐厅
厨房
卧室
儿童房
书房
茶室
卫生间
衣帽间
酒店SU
餐饮SU
办公SU
商业SU
CAD
概念
图库
贴图
年费
更多
搜索
登录
注册
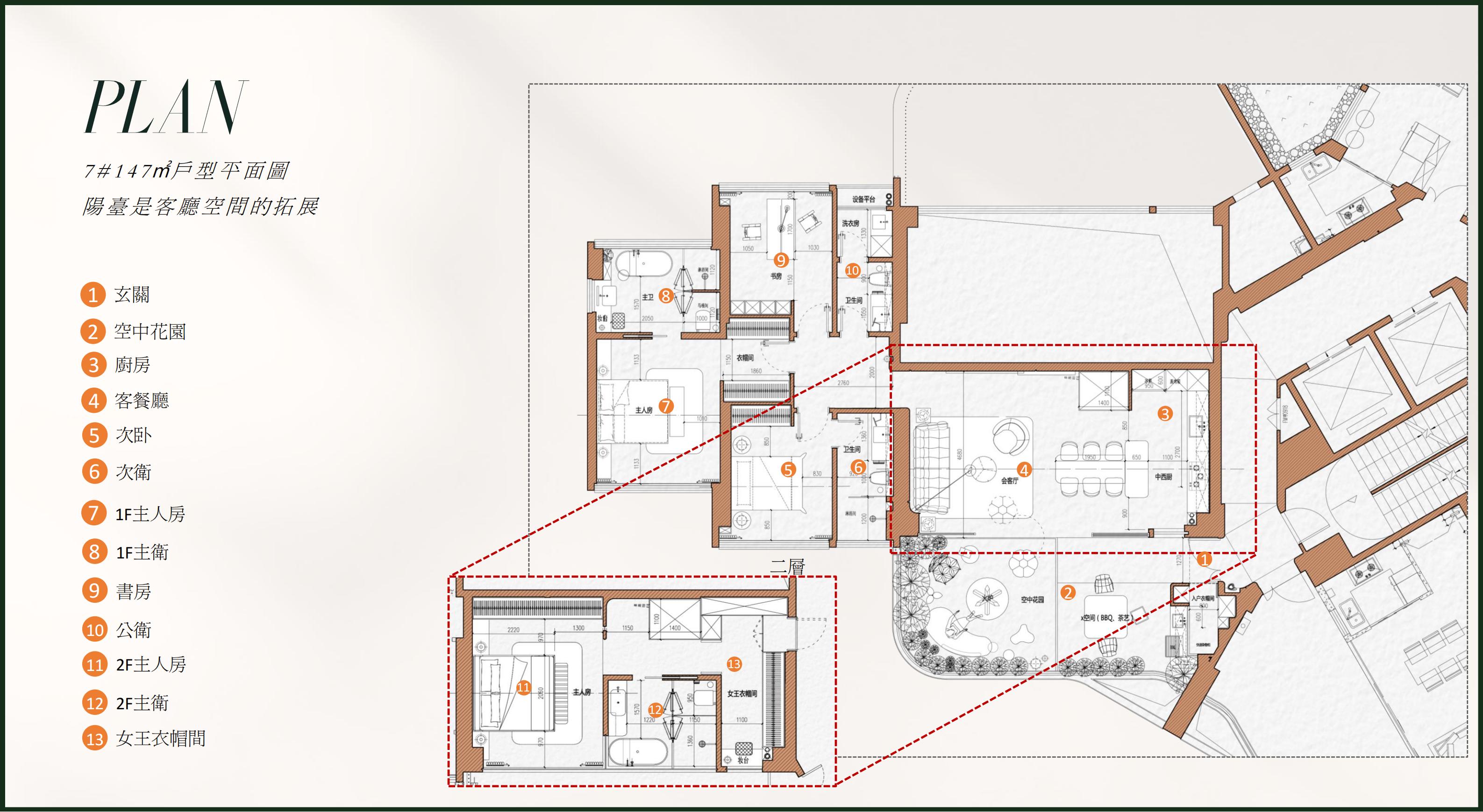
CCD新作-贵阳青云之上项目147&157户型样板房室内设计方案&软装设计
2025-12-30
/
方案概念
/
样板间
/
只看大图
阅读模式
仅供分享不做任何商业用途,版权归原作者所有,谢谢配合。
1946
0
3
安恬Design
海淀区 | 设计爱好者
关注
私信
马上注册,结交更多好友,享用更多功能,让你轻松玩转社区。
您需要
登录
才可以下载或查看,没有帐号?
注册
x
开通案例会员 可无限查看完整案例
开通案例会员 可无限查看完整案例
开通案例会员 可无限查看完整案例
开通案例会员 可无限查看完整案例
注:图片较小 介意勿下:
CCD精品-贵阳青云之上大平层样板房室内设计方案&软装设计方案.rar
(45.99 MB, 下载次数: 7, 售价: 2 交易币)
2025-12-30 14:32 上传
点击文件名下载附件
本主题由 System 于 2025-12-31 15:00 解除限时精华
点赞
收藏
分享
标签:
CCD
郑中设计
样板房室内设计
大平层样板房室内
大平层软装设计
举报
精华推荐
换一换
发表评论
0
高级模式
添加表情
评论
成为第一个评论的人
浏览过的版块
金币客厅
渲染作品
图像资料下载
站务签到杂烩
户型方案
施工工艺
金币单体
家居实景
CCD新作-贵阳青云之上项目147&157户型样板房室内设计方案&软装设计
3
收藏
发布
分享
关注公众号分享
分享给微信好友
新浪微博
QQ好友
QQ空间
拓者推荐
重庆站】精工课(5月27-28日)
郝泽伟设计工作室 | 《木朴》
会讲方案的设计师,行走的印钞机
CCD·艺澍家|上海·甘云间!
王小锋 | 1006㎡泉州建发缙湖别墅!
CCD-华润 CCBD 889㎡设计方案
【召禾设计]天际江景超大平层方案
【WSD世尊】建发·云启玉诸
CCD-华润玺宸上院中叠样板间
CCD-武汉绿城外滩玫瑰园别墅
2025拓者年费+案例Vip会员说明!
【 拓者年费--CAD图纸】
【 拓者年费--户型方案】
【 拓者年费--豪宅视频】
【 拓者年费--灵感图库】
联系客服
406158
400-9929-400
工作日:早9点--晚5点
客服QQ微信:406158
APP二维码
官方微信/抖音号
关注拓者设计吧让设计更有范
拓者订阅号
拓者抖音号
上传模型
发布渲染
发布实景
发表评论0