|
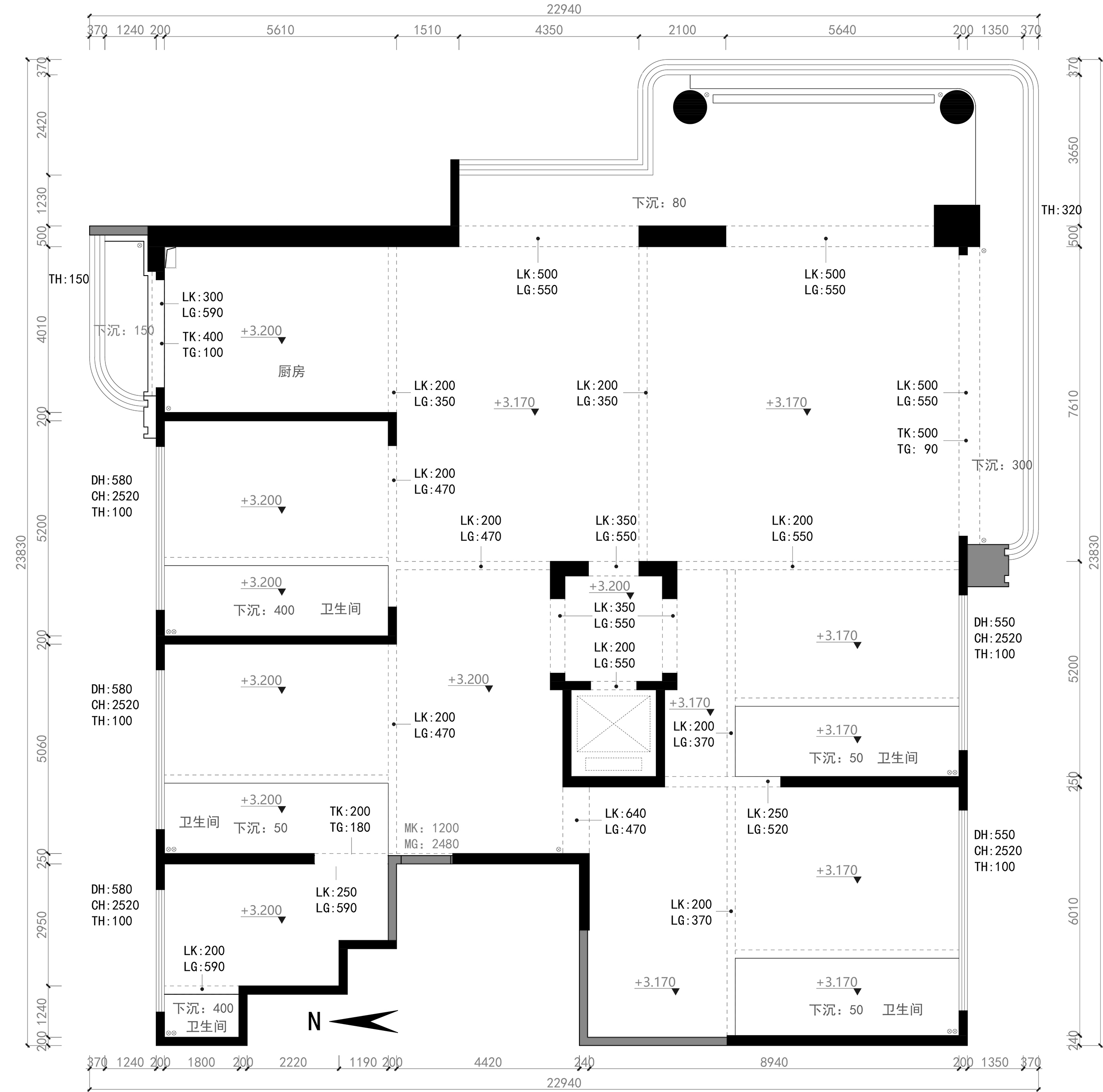
“关注i Go,每周学习一个户型改造小技巧” 项目属性/大平层/毛坯 项目套内面积/400㎡ 执行设计/i Go空间设计事务所 原始户型 Party A's demand.
甲方需求- Demand of Party A. 1.打造三房,满足一家四口居住。 2.家里的女孩需要画画、跳舞的空间,男主则想要健身休闲区。 优化方案 Optimization scheme.
细节展示 Detail display
细节展示 Detail display
细节展示 Detail display
细节展示 Detail display
i Go 业务合作 -官方抖音:iGo户型优化(关注抖音 看最新案例) -官方抖音:i Go户型优化 -官方小红书:i Go户型优化 微信公众号:iGo户型优化 *本文以及方案均为i Go原创 禁止转载 分享至其他平台 |
精华推荐
换一换


发表评论0