2026年室内设计必备施工工艺合集

昨天 21:20/ 户型方案/ 付费方案/ 只看大图 阅读模式
仅供分享不做任何商业用途,版权归原作者所有,谢谢配合。

马上注册,结交更多好友,享用更多功能,让你轻松玩转社区。

您需要 登录 才可以下载或查看,没有帐号? 注册

x
本帖最后由 YLD.Studio 于 2026-4-12 21:25 编辑

Tuozhe8_封面图设计.jpg
2026年室内设计必备资料 — 施工工艺大全
(详细工艺图册JPG+节点大样CAD等)
精于设计,更精于工艺。
从水电隐蔽工程到墙面基层处理,从木工定制到漆面收边,
每一道工序都严守标准,每一个细节都精益求精。
不做表面功夫,只做经得起时间考验的品质设计。
用专业工艺,还原设计本真,筑就安心舒适的理想空间。
主题页封面设计.jpg
设计赋予空间灵魂,工艺成就居住质感
严苛施工标准,雕琢每一处细节成熟工艺体系,保障每一个工程品质
从图纸到实景,从构想至落成
匠心工艺,兑现对家的所有美好想象。
希望本套设计素材可以为大家的工作带来方便

【—— 本 贴 所 有 资 料 原 文 件 均 在 末 尾 ——】
最新款施工工艺图册合集 (1).jpg

最新款施工工艺图册合集 (2).jpg

最新款施工工艺图册合集 (4).jpg


最新款施工工艺图册合集 (6).jpg


最新款施工工艺图册合集 (8).jpg

最新款施工工艺图册合集 (9).jpg


最新款施工工艺图册合集 (10).jpg

最新款施工工艺图册合集 (12).jpg

最新款施工工艺图册合集 (13).jpg

最新款施工工艺图册合集 (14).jpg

最新款施工工艺图册合集 (15).jpg


最新款施工工艺图册合集 (17).jpg

最新款施工工艺图册合集 (18).jpg

最新款施工工艺图册合集 (19).jpg


最新款施工工艺图册合集 (21).jpg

最新款施工工艺图册合集 (22).jpg


最新款施工工艺图册合集 (23).jpg

最新款施工工艺图册合集 (24).jpg

最新款施工工艺图册合集 (25).jpg

最新款施工工艺图册合集 (27).jpg

最新款施工工艺图册合集 (28).jpg

最新款施工工艺图册合集 (29).jpg

最新款施工工艺图册合集 (30).jpg

最新款施工工艺图册合集 (31).jpg


最新款施工工艺图册合集 (33).jpg


最新款施工工艺图册合集 (34).jpg

最新款施工工艺图册合集 (35).jpg

最新款施工工艺图册合集 (36).jpg

最新款施工工艺图册合集 (37).jpg

最新款施工工艺图册合集 (39).jpg


最新款施工工艺图册合集 (40).jpg

最新款施工工艺图册合集 (41).jpg

最新款施工工艺图册合集 (43).jpg


最新款施工工艺图册合集 (44).jpg

最新款施工工艺图册合集 (45).jpg

最新款施工工艺图册合集 (46).jpg

最新款施工工艺图册合集 (47).jpg

最新款施工工艺图册合集 (48).jpg

最新款施工工艺图册合集 (50).jpg


▲ 部分精彩内容预览
资料1_施工工艺图集.jpg
▲ 施工工艺图册
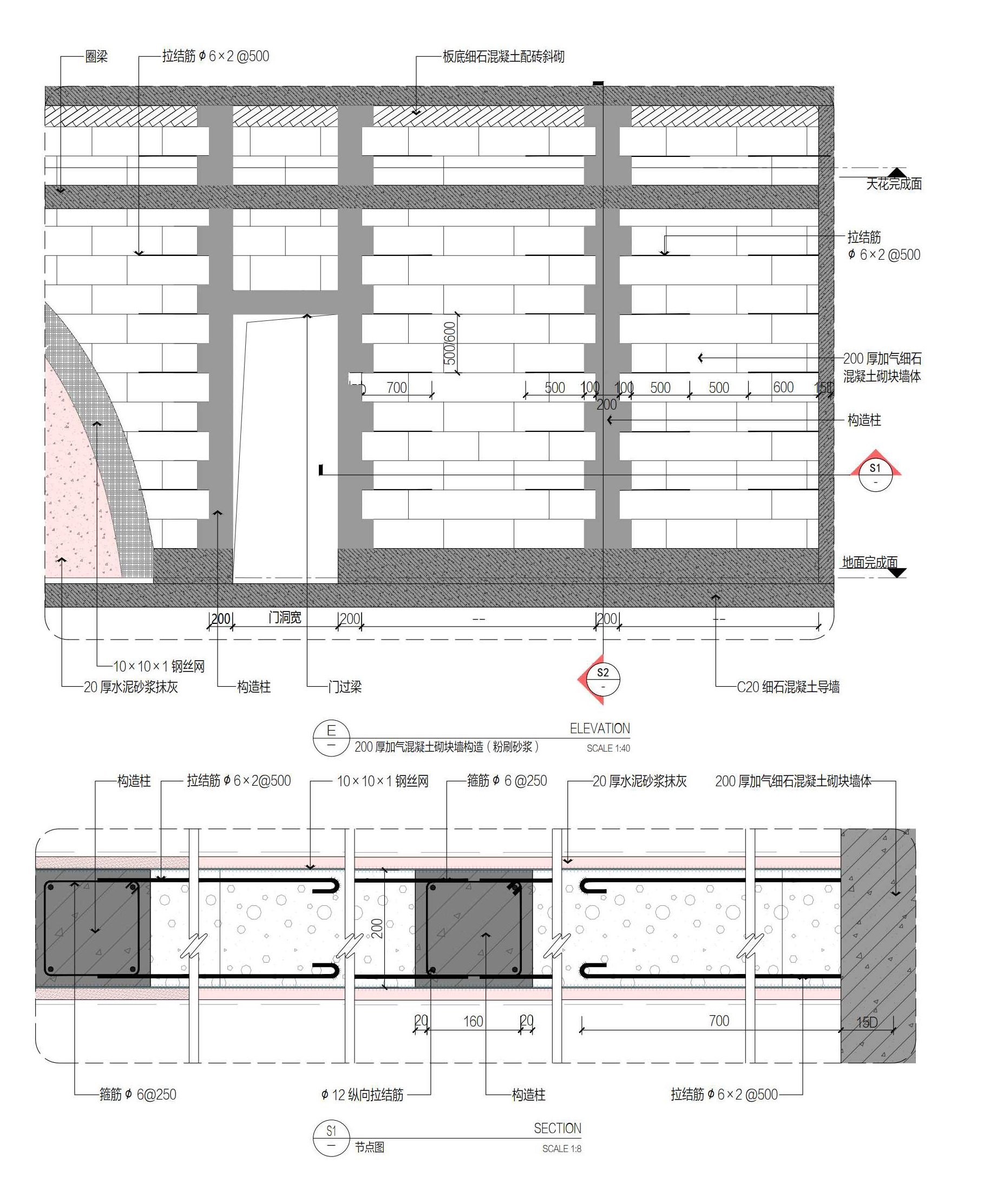
资料2_节点大样三维剖面示意图.jpg
▲ 详细三维大样剖面图
资料3_CAD节点大样图.jpg
▲ 配套CAD图纸

————————————————————————————————————————————————

——文件下载——
26年最新施工工艺图册.rar (241.6 MB, 下载次数: 0, 售价: 11 交易币)


精华推荐
换一换

发表评论0

2026年室内设计必备施工工艺合集
拓者推荐
  • 朴悦-华润小径湾-悦海白兰墅
  • 琚宾-杭州保亿观云钱塘城
  • 召禾设计-上海汤臣君品
  • CCD-华润置地南通澐璟
  • HBA&DAS-中海江南玖序
  • CCD-华润 CCBD 889㎡设计方案
  • 【召禾设计]天际江景超大平层方案
  • 【WSD世尊】建发·云启玉诸
  • CCD-华润玺宸上院中叠样板间
  • CCD-武汉绿城外滩玫瑰园别墅
  • 2025拓者年费+案例Vip会员说明!
  • 【 拓者年费--CAD图纸】
  • 【 拓者年费--户型方案】
  • 【 拓者年费--豪宅视频】
  • 【 拓者年费--灵感图库】