|
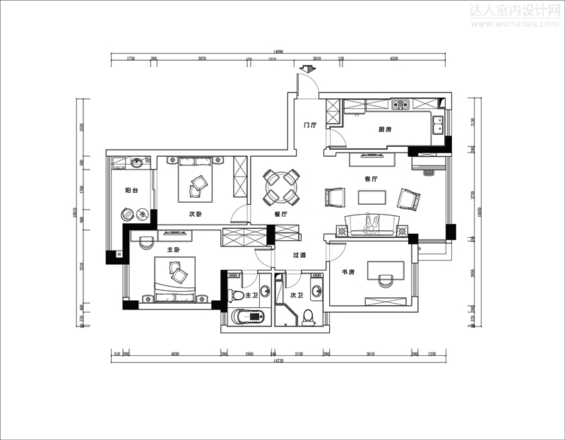
项目名称:浙江碧水云天 设计单位:艺念之间国际设计(集团)有限公司 设 计 师:朱统菁 主要材料:木饰面、仿古砖、调色乳胶漆、石膏线、墙纸等 设计风格:美式风格 摄影单位:金啸文空间摄影 设计说明: 本案为公寓房设计,室内面积为110平方米。对于新房的设计风格,业主独爱美式,美式透出一股随意自然温馨的舒适感,在设计时摒弃了豪华的装饰,使整个室内环境变得舒适轻松。 原始户型平面功能划分不够明显,从房型来看朝南的为主人房和客厅,入户进门处通往厨房的区域也是难以利用。经过重新设计之后,平面布局各功能区域合理且利用得体。拥有入户独立门厅,在这个过渡的空间里可方便进出门换鞋更衣,同时对客餐厅起到一定的私密性作用。客餐厅为南北相通的区域,通透而大气。美式的布艺沙发加上四人位的圆桌,整个空间有融合同时也有分离,墙面均采用米色调色乳胶漆,简洁中略带温馨。保留两间独立卧室的同时拥有一间独立的书房,书房家具的首选为大书桌以满足日常工作事务,闲暇之余可以在书桌上享受DIY手工制作带来的快乐。
|
精华推荐
换一换



新手来膜拜了,顶一个songhua