鳳凰涅槃
您需要 登录 才可以下载或查看,没有帐号? 注册
发表评论48
songhua楼主从来都不回复的,呵呵
wodingwodingwodingwodingwodingwodingwodingwoding
songhuasonghuasonghuasonghua
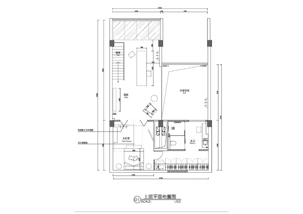
床上头有那些梁 睡着也不舒服吧
wodingwodingwodingwoding
空间挺开阔
床上方那个算做梁吗?还是梁造型?
woding
典型的黑白灰色调,稳重。
有品!不过卧室的吊顶吊的是不是点有厚重呢?
songhuasonghuasonghuasonghuasonghua
shangxinleshangxinleshangxinle
很好的设计啊,,加油
wodingwodingwoding
woding.............
床头上方的梁,睡着应该很压抑,空间挺宽敞,要有个客房就更好了shangxinleshangxinleluguoluguo
songhuasonghuasonghuasonghuasonghuasonghuasonghuasonghua
卧室中内凹相框的照片背景墙,地板从地板走上墙面,独特的吊顶,直射的阳光,简洁有味道,也有温馨的舒适感。 每一件装饰品放在这里,结合整个空间环境,总能感受到不同的深意。
chouniwoding
不像住宅,倒是画廊的感觉更突兀些
l梁处理一下可能更好吧!!woding
太君别开枪,路过
wodingwoding
so beautiful .....songhuasonghuasonghuasonghua
songhuawoding
woding不错,喜欢。
luguoluguoluguo
虚心学习
wodingwodingwodingbaibaibaibaibaibaibaibai
wodingwodingwoding 应该是梁
进门正对阳台门,不好
大气磅礴,光影漂亮
huahuahuahua
饰品是不是太多了
406158
工作日:早9点--晚5点
客服QQ微信:406158
关注拓者设计吧让设计更有范
songhua楼主从来都不回复的,呵呵