本帖最后由 欢乐佳园装饰 于 2017-10-13 16:02 编辑
我行过许多地方的桥,看过许多次数的云,喝过许多种类的酒,却只爱过一个正当最好年龄的人。 ——沈从文《湘行散记》 新家の装修档案 房屋地址:成都—中德英伦联邦A区 建筑面积:120平方米 户型:3室2厅2卫1厨 风格:现代简约 一、原始户型分析
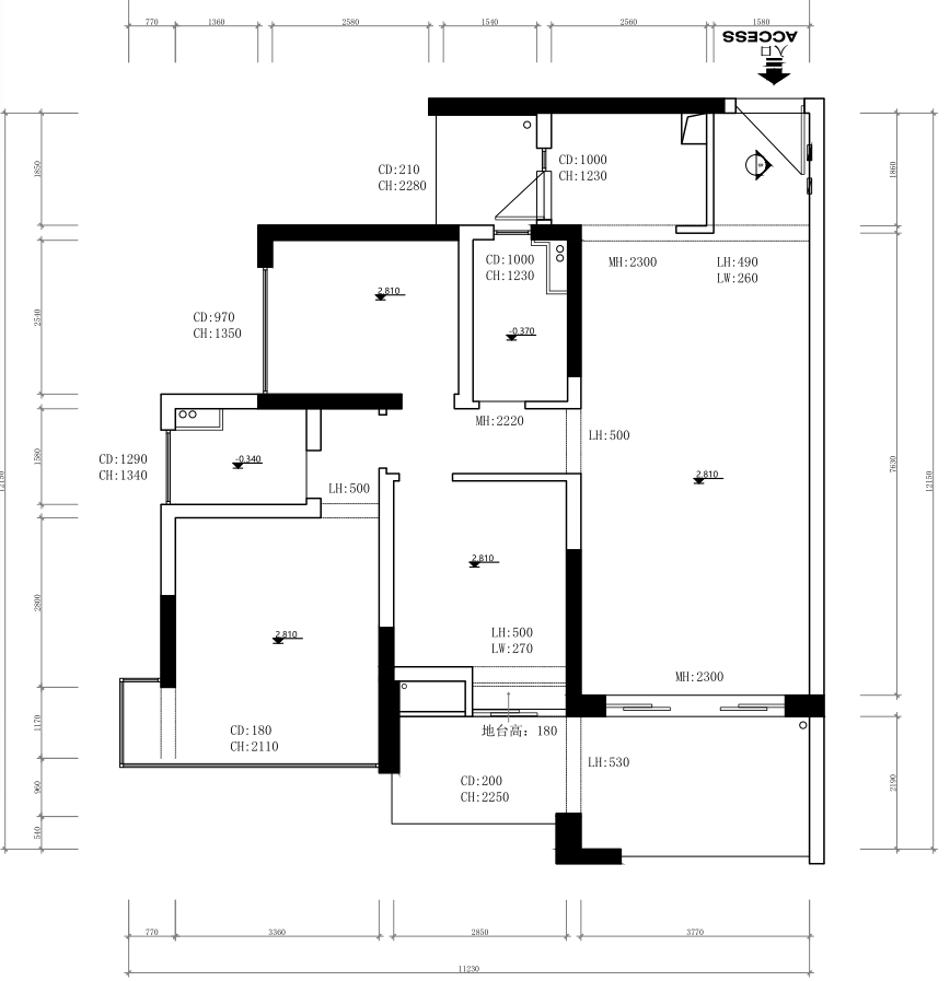
原始户型图 二、平面布置分析
平面布置图 三、客厅完工实景
最青葱的时候,总是有着无边的欲望,带着对世界的憧憬而梦想着浪迹天涯,每天总恨不得在下一秒便背上行囊奔赴远方。长大后,走过很多地方,看过很多美景,听过很多的故事,才发现,最英雄的作为是面对自己,最幸福的生活是活在当下。
本案的业主吃货哥,是一个非常规IT男,爱美景也爱美食,在外行走七年还是跟随了内心的召唤回到大成都的怀抱,用他的话说,成都就是一座来了就走不脱的城市,这里的人懂得人生很短,欲望无边,懂得知足常乐,开心就好。
可能见过太多浮华所以更加倾心于简单,路过太多花花绿绿所以更加倾心于经典。对于新家风格,吃货哥果断的选择了现代简约风,期待用黑白灰的空间去容纳日后澎湃的情绪。
简约的现代家具,在室内显得精致轻巧,流畅的线条感,还有棕色皮质沙发带来的沉稳内敛,点点细节都让人倍感惬意。 四、厨餐厅完工实景
因为设备过大,而厨房空间无法扩展满足所需,于是设计师经过缜密的思考,在餐厅区域做了一组高柜,把冰箱和烤箱从厨房移动出来,这样既解决了厨房空间不够的问题,也增加了房屋的储物空间。
餐厅区域简洁明亮,精心寻找的黑色金属吊灯营造出浓浓的时尚感,墙上错落有致的立体感挂画和墙面的细节处理也进一步增添了设计的精致感。 五、卧室完工实景 人都是要去经历,才能把放纵的思绪沉淀为内敛的情绪。然而当我们立于纷扰的世界,马不停蹄的寻找自我时,适当的做一些减法,或许心底的答案呈现得更快。 吃货哥的卧室依旧延续了简洁大方的主题,退去了浮夸繁琐的装饰,用对细节的把控和氛围的营造,全新的诠释现代人的生活态度。 不论是墙上设计感十足的床头灯,还是跳脱于黑白灰空间的彩色挂画,甚至于舒适的浴缸和巨大的衣帽间,都是在对生活娓娓道来的情感表达。 繁华喧闹的城市在窗外,关上门,舒适而自在的生活就在眼前,这可能就是很多人心底所追求的幸福生活梦吧。 六、设计师の推荐空间——阳台与书房 客厅休闲阳台 衣帽间和书房 业主希望家里能有独立的书房空间,于是拆掉了主卧室相邻房间与阳台的墙体,打造衣帽间及书房空间,并且书房采用玻璃双推拉门,与阳台休闲空间相互结合,不仅采光良好,也扩大了空间视觉感。 七、本案の业主采访 Q:您在装修过程中遇到过什么样棘手的问题,或者是有趣的事儿? A:队长还是很给力的,所以装修的过程还是比较顺利的,没有遇到特别棘手的事情,可能就是选家具时纠结了一些。 Q:您理想中的家是什么样的? A:外型上耐看,不会容易审美疲劳,用起来舒适方便,整体氛围是简洁大方,温馨舒适的。 Q:新家是否达到预期? A:基本上满足了预期,每一个空间都挺喜欢的,像阳台啊、卫生间啊、书房等,对这次的空间改造非常满意。 Q:对其他装友有什么建议吗? A:不算建议,就是一些经验吧。1、水电图一定要留好,后期很重要。2、还有就是主材安装的顺序要提前了解,不然有可能无法安装或影响工期。3、多跟设计师和队长沟通。4、把握不好的地方特别是跟装修风格有关系的要找设计师商量。 ![]() |
精华推荐
换一换
-
欢乐佳园装饰 2017-11-5 14:37:27
jhz5201314 发表于 2017-10-14 09:36
你们的设计师帮忙参考家具吗?就是软装
亲爱的,欢乐佳园是软硬一体化的装饰公司哦~我们有专业的软装设计师,也有和很多知名的主材品牌合作,如果你有软装需求,欢迎联系我们哦~4006886119,公司地址:成都二环路西一段8号月光琉域4栋16楼。











学习了,谢谢分享