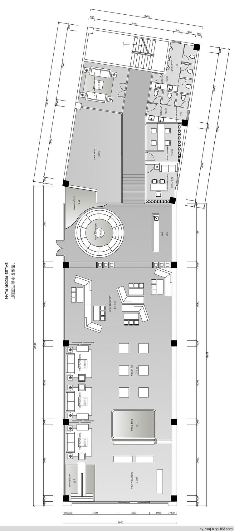
|
“通过将自然和光引入那些与城市环境相隔离的简单几何体中,我创造了复杂的空间。我把非凡注入到最为平凡的熟悉的环境--住屋之中,并以此促使人们重新认识平凡。”——安藤忠雄
桃溪紫云台售楼处矗立于历史名城遵义城南,对这栋将山水结合在一起的建筑做室内设计,能将自然元素和现代设计理念结合,形成内外景的相互交错让空间不再分离,而是形成一种延伸,是最好的方法。
“智者乐水,仁者乐山.智者动,仁者静.智者乐,仁者寿.” ——孔子 设计理念 在本案中,如何将山,水,光等自然元素和空间结合是设计师考虑的首要问题,其次在将传统意境与现代元素的融合中设计师也进行了全方位的考量,设计是一个从无到有的过程,亦是一个从有到无的过程,设计师在设计过程中,将所有的元素打破,重组,舍去多余的元素,形成最后的自然空间。
在设计中,我们一直坚持将人性化作为我们设计的根本要素,不管是空间功能的需求,还是最终效果的呈现,我们一直认为满足人对于空间的需求是我们设计的宗旨,在平面布局时期,我们不仅仅满足空间对于人的使用性的思考,更是将整体空间最后的呈现加以充分考量。
▲紫云台过廊效果图
▲紫云台门厅效果图 进入室内,门厅的重叠的云石背景墙设计灵感来自于重叠的山脉,结合左边的水景,形成山水结合之势,墙上透出来的竖条光源使得整个空间山,水,光自然元素的设计理念得以诠释,铜质金属隔断顶天立地,整体线条简约富有韵味,结合现代与传统。
▲紫云台展示区效果图 ) x) R, {: \" V t: z6 h同样,在展示区域,重叠的吊灯,起伏不定的墙面,亦是自然结合设计理念的展现,凸起来的为“山”平面造型为“水”,浅色简约的材质,在表达设计理念的同时,作为背景,突出沙盘和户型展示,为了让整体更富有张力,设计师用了长条铜质金属线条来结合墙面石材,对应铜质金属隔断整体空间前后呼应,韵味悠长。
▲紫云台洽谈区效果图 整个空间多次出现的铜质金属隔断,同样在洽谈区出现,光线透过隔断缝隙,形成光与影的结合,让整体空间具有灵魂,异型家具增加整体空间的趣味性,让人浮想联翩,与整体空间结合恰到好处,一整面的玻璃落地窗,内外借景,相互呼应。
▲紫云台水吧区效果图 延伸至水吧区域的立柱式隔断形成区域过度,保持了整体空间的气场,下层式沙发和枯山水的结合,亦是自然和现代时尚的结合,以传达对自然的敬仰,横向长条楼梯大气磅礴,墙面上的长条内嵌灯组,无处不在诠释光的重要性,水吧的设计为人们提供了休闲空间。
▲紫云台VIP区效果图 结合“山”、“水”形态巧妙的植入多个空间,VIP室“山”、“水”相互对应,如同坐两个不同性格的人相视而坐,运用无形的设计手法对空间进行“塑性”,使韵味和功能性都得以提升,山水之间,得知于形亦不忘之其意。
▲紫云台盥洗区效果图 9 T/ ^& s3 `4 D# @& U* l, _ 画家通过图纸来传递对世界的看法,设计师用完成的空间来表达自己的想法,室内设计的意义绝不仅仅是追求表象上的美感,更重要的是遵从内心表达,我们将每一个空间,每一个使用场景,考虑细致入微,并加以自己的想法,形成最后的作品,这是我们对设计的理解,更是对设计的一贯追求。 “创造令人们感动的空间,不论是幢房屋、一座美术馆或者任何物件都好。就像是坐在草地上任由思绪游走一般,感受到真正的快乐。这才是一直以来所追求并努力着的事。”
▲遵义·桃溪·紫云台售楼部设计团队 室内设计:贵州水云间设计装饰有限公司 设计团队:首席设计师-黄广、主任设计师-张涛、设计师-殷红宇、软装设计师-周紫寒 开发商:桃溪·紫云台 项目地点:贵州·遵义 G& \# d |5 ?/ ~* p& ~, b |























发表评论0