|
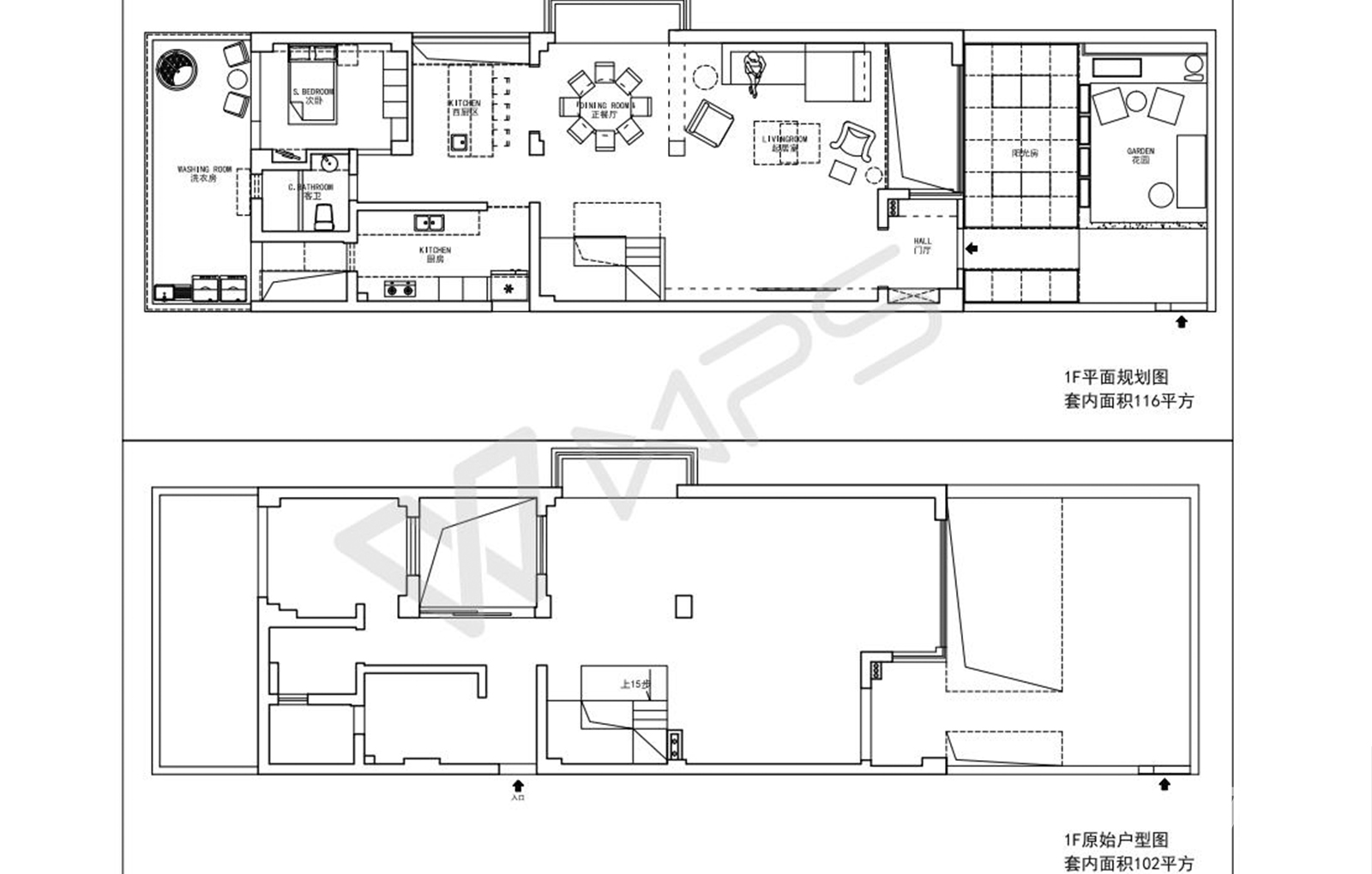
说在前面 236m2的下叠别墅是两层的建筑面积,地下室是赠送的,再加上后期经过设计改造,最终使用面积达到将近400m2,地下室如何防潮采光通风,空中花园如何变成使用面积,利用挑空如何改造成阳光房,这些方面都是这个房子改造的亮点,大理石与木材相互碰撞,玻璃元素穿插其中,质感天成的品质现代台式空间体现的是业主时尚前卫的品味。 ![]() 一楼:原始套内使用面积98平改造后套内使用面积122平方。 改了进户门后从入户花园进来做了整排到顶鞋柜,进门做了不锈钢门套,整个客厅墙面都采用了不同的材质做装饰。吊顶也做了硬包处理嵌入式灯箱。整体嵌入式电视柜,整洁收纳功能强大。 为了让地下室有更好的自然光线通风效果,借用客厅靠近阳光房一侧的面积做了镂空处理,用大面积透光玻璃搭配窗帘,在客厅进门墙面利用电动智能开光控制阳光房一侧的玻璃开关,方便使用。 ![]() 一楼:客厅沙发背景墙浅灰色墙面石材,深灰色质感沙发搭配暖色单人沙发和人字型拼接地板,整个空间多了份活力。 ![]() 一楼:客厅以白色为主搭配部分黑色台面多功能整体嵌入式电视柜,有了强大的收纳功能,镂空的隔断可以放置装饰艺术品,吊顶一侧做了中央空调,整体空间整洁,大气、美观。 ![]() 一楼:从客厅看餐厅。利用原有柱子做了矮隔断处理,可以收纳储藏,同时把餐厅和客厅功能区域分开。 ![]() 一楼:餐厅做了两个不同的中西餐厅处理,中餐厅利用圆形餐桌椅,整体以木质元素为主搭配精致的吊灯,此时窗外的美景映入眼帘,一种东方的韵味美油然而生。 ![]() 一楼到二楼楼梯 ![]() 二楼:客厅沙发一侧放置了长条桌子可以做办公使用,正对的一整排木饰面装饰的墙面,其中中间一面是做了隐形门,进去是主卧和次卧的整个空间区域。 ![]() 二楼:客厅,原本没有电视背景墙的,设计师在原有卧室墙体的外侧做了一面简约嵌入式电视背景板,人字型拼接地板,浅灰色沙发,沙发背景墙采用几何形纹理灰壁布搭配黑色精致的茶几,一浅一深视觉上有了空间错落感。 ![]() 一楼:本来无西餐的空间,把原有镂空的庭院做了搭建,做出来西餐的区域。同时中西餐厅也使用不锈钢门套做功能区域隔开,西餐厅利用岛台的概念,墙面一侧是做到二楼的墙布处理,空间上更大气。 ![]() 一楼:厨房,墙面采用灰色纹理石材,做了两排整体橱柜,冰箱和烤箱都是嵌入到整体橱柜里面,空间上整洁,明亮。 ![]() 二楼:主卧室,U型的衣帽间可以供主卧和次卧同时使用,衣帽间的外观采用线条纹理空间感更加利落美观。吊顶一侧做了中央空调。人字型拼接地板,浅灰色床头搭配素色床品打造一个纯净的睡眠环境。 ![]() 二楼:主卧室大面积落地窗,灰色窗帘搭配若隐若现的窗纱,简约的落地灯,深紫色的单人沙发。休闲静逸的时光在阳光的沐浴下拉长。。。。。。 ![]() 地下室:地下室楼梯,一字型拼接地板,不同的区域不同采用不同的材质划分。下楼可以看到正对的次卧是用利用地板上墙材质搭建了客卧。 ![]() 地下室:台球室区域。吊顶以白色为主,灯光采用大面积方形主吊灯的形式,部分区域利用筒灯补充光源。台球一侧是在原有部分墙体重新搭建的造型墙一是作为承重墙使用,二是做了卡座沙发作为休闲休息空间使用。 ![]() 地下室:台球室区域。对着客卧的一侧做了透光玻璃,增加客卧室内的采光,正对台球的墙体也是和客卧采用一样的地板上墙处理。利用撞角的空间做了一排整体的收纳储藏柜。 ![]() 地下室:影音室沙发背景墙。在沙发背景墙顶部做了镂空处理,自然光线融入室内。整体墙面做了软包处理,达到更好的隔音效果。 ![]() 地下室:影音室。大面积黑色绒布包边的幕布,看电影时有了强大的视觉感。 ![]() 地下室:客卧。简约舒适的睡眠环境。 ![]() ![]() ![]() 从餐厅看客厅,一楼到二楼楼梯 ![]() 一楼:西餐厅墙面一侧是做到二楼的墙布处理,空间上更大气。 ![]() 二楼:卫生间淋浴房和浴缸。墙面黑色纹理石材,整体空间质感、大气又舒适。 ![]() 二楼:卫生间。单独的浴缸,整体采用干湿分离。整排的台盆柜和镜柜有了充足的储藏收纳空间。 ![]() ![]() 二楼:卧室床头一隅。 ![]() 二楼:卧室。一排古典深色八斗柜,一幅抽象映象画,生活实用与美学的搭配,都在装饰的艺术中体现。 ![]() 院子被灰色砖墙包围 栽上竹子一年四季都是古香古色 左边的镂空做了玻璃顶棚 给地下室提供自然采光 ![]() 这样的大宅 恐怕是很多人梦寐以求的住所 但是比拥有大房子更重要的 是一个认真对待生活的心 ![]() 地下室: 1:在原有户型图墙体基础上和内部左边墙体全部拆除的空间上做了儿童玩耍区和影音室,同时做了防水卷材处理,影音室运用软包材质有了更好隔音效果。 2:利用地板上墙搭建了客卧; 3:台球桌周围墙面做了壁布处理; 4:在台球桌旁边利用部分墙体做了L型储藏柜; 5:把花园区域纳入室内空间,增加室内面积。 ![]() 二楼: 1:主要以休息为主,最大的亮点是把主卧和其中一次卧做了一套房使用,利用走廊的空间面积做了一排储藏柜; 2:把客卫和主卫阳台的空间纳入室内增加使用面积。 ![]() 一楼: 1:原始户型图从左边进门没有完整的门厅换鞋处;改过后从右边花园进入有了宽敞的门厅和换鞋储藏的空间。 2:一楼有三个局部挑空的处理,使得地下室成为“可通风”的“全明”空间,即使在不开新风的时候也感觉空气不错。 3:南面花园与地下室的“互通”空间改成阳光房后,不仅潮气问题解决了,还能有更多“晾晒空间”,地下室也增加了不少室内空间(14平方)。 4:原本东面地下室的天井,在一楼现浇了新的楼板,然后侧墙从一楼到二楼封了全玻璃(留了两扇窗户通风,早上阳光从东面洒入效果很好。窗外绿植春夏秋冬的不同景色,也是一幅幅美丽的画面。 5:充分利用空调外机平台,纳入做室内空间,使得主卫和客卫都“变大”不少。 4 |: a& X3 e& [- q" ~, {+ H |
精华推荐
换一换




































发表评论0