|
屋主介绍 家庭成员:夫妻+一个儿子 屋主需求: 1. 需有三代同堂的空间,父母偶尔来居住。 2. 需要一面黑板墙,闲来时和儿子在边上涂涂画画。 3. 轻生活,重装饰。
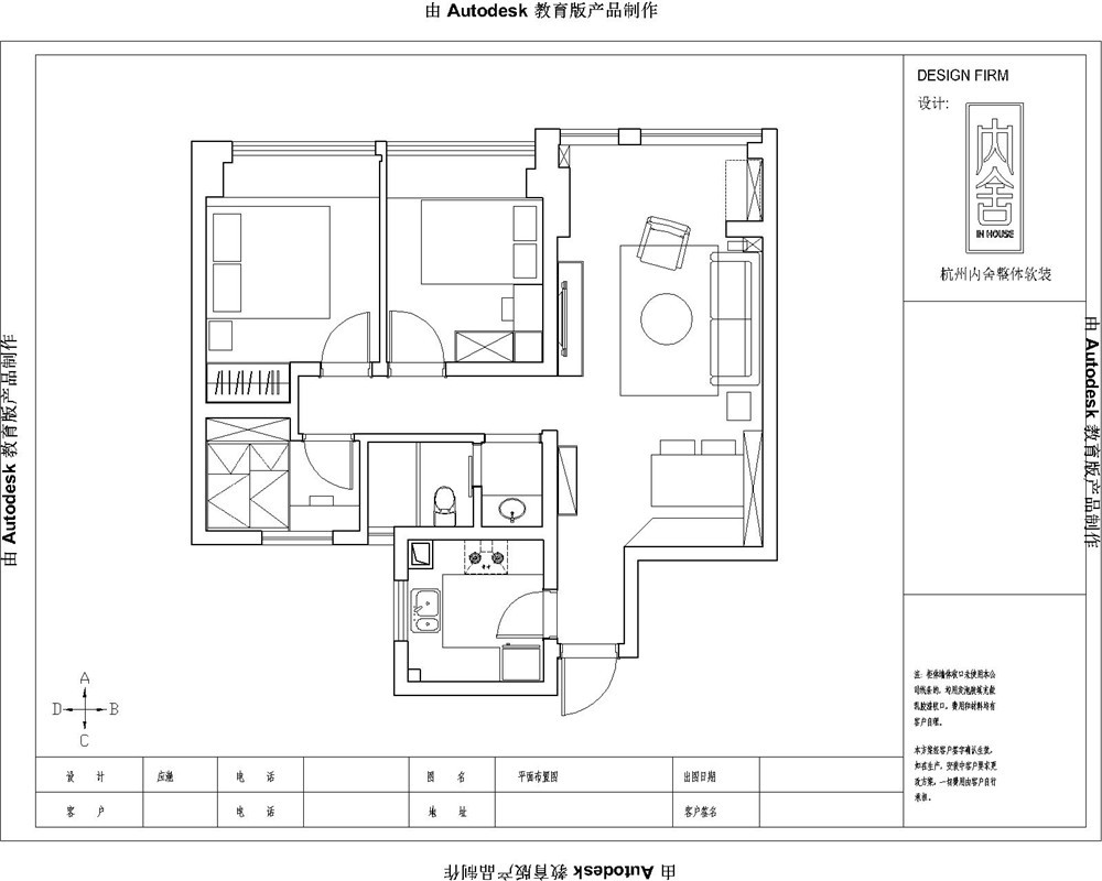
∆ 平面设计图 设计师说:我想为他们打造一个朴实淡然的家,没有过多的花哨。在他们每天下班进门的那一刻,能够放下一天的疲惫,舒适而放松。
客餐厅 纳瓦霍黄色的墙纸衬着灰白色系的沙发,融入了现代简约元素,营造出温馨浪漫的氛围。
第一次与屋主见面,是在她家量房的时候,女主人跟我交流她天马行空的想法,希望家里面色彩丰富一点但不能太花哨…… 家具是男主人挑的,挂画是女主人挑的。清雅的素色配上热烈的色彩,中和了灰色的寡淡和艳色的浓郁。
卧室 主卧空间有限,但为了使用的舒适性,我们并没有缩小该有的家具尺寸,借用飘窗的延伸,来进行空间的扩展。 次卧 小男孩的房间比较简单,留白是为了给他空间。用他爸爸的话来说:他还小没有自己的审美,等他长大了再去布置吧。 次卧兼主卧 因为空间有限而屋主人又要求保留三个卧室,所以这个房间就做成了榻榻米。 【作品名称】:雅舍 【工程地址】:万通时尚公馆 【设计风格】:北欧 【户型结构】:住宅 【常住人员】:夫妻+儿子 【房屋面积】: 89 m2 【全案设计】:内舍设计 【软装造价】: 10.5W 【软装家具】:成品家具、定制家具、灯具、窗帘、墙布饰品挂画等 …… 有多少人把爱情过成了柴米油盐,又有多少人能把柴米油盐过成爱情?不是物质条件不够好,是我们的心不在这里,自然生活也就平淡无奇了。 温馨的家靠的不是暖色调的墙纸和家具,更多靠的是我们自己,心在哪,家就在哪。 。。。。。 我们是内舍,我们用心筑家! 地址:杭州市拱墅区莫干山路1165号月星家居三楼C068展厅 联系电话:0571-86782333 联系QQ:914711408 |
精华推荐
换一换





简单大方