|
1 OS公寓 该项目中,设计师首先严格地对空间进行了划分,创造出最大可能的对称感,并将楼梯作为整个建筑的核心,它将位于房子的中心,而其他一切空间都围绕着它来布置。这种设计方式产生了一种灵活的住房方式,同时让不同的房间之间产生视觉联系,建筑内的房间能够具有更加明确的定义,又彼此紧密关联,在任何时候房子内部都通透明亮。
二楼房间围绕楼梯核心展开 设计师利用植物分隔组织了整个空间,一楼的空间规划为公共的白天生活区,而二楼房间围绕楼梯核心展开,并由房屋经销商进行分配。
楼梯作为整个建筑的核心,位于房子的中心
通透明亮的楼梯空间
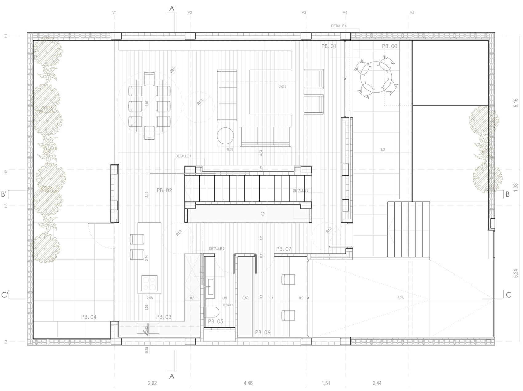
一层平面 自然光是该项目第二阶段所采用的主要元素。露台和室外空间的布置也始终围绕主要核心展开,使得内外部的空间界限得以模糊。由此自然光在房间内营造出一种独特的气氛,成为整个空间的主角。
位于一层的起居空间
书房空间
起居室内简洁的家具
与户外相接的厨房 露台和室外空间的布置也始终围绕主要核心展开,使得内外部的空间界限得以模糊
明亮的过道
2 C15公寓 在一栋新建的住宅楼中,设计师以极简的介入方式为空间赋予了美感和宽阔度。 经过对既有布局的分析,设计师决定将一面墙进行拆除,以改善厨房与其它空间的连通性。这一做法已经足以满足业主的需求。 就餐区域 纯白的窗帘将带有黑色元素的家具凸显出来 书 桌 与此同时,建筑师还为公寓赋予了完全不同的氛围:所有的窗帘均统一为白色,从而将精心挑选的、带有黑色元素的家具和材料凸显出来,为室内空间赋予独特的活力与清晰度。 3 LE公寓 公寓位于瓦伦西亚市中心的Ruzafa社区,其使用者为一位视觉艺术家。此次改造充分回应了使用者的需求,以敏感和关切的方式,赋予这间公寓全新的空间氛围。 此次公寓重修过程以最大化白空间为前提,充分实现了其使用区域的开敞性和灵活性。为实现这一空间布局,设计师将核心存储和设备空间移至公寓中心,将卧室和橱柜置与一侧,并以此对其他空间进行分割和建立连接。 最大化空间留白 不对主空间进行分割,实现其最大化灵活性 在该公寓改造中,设计师完美践行了“少即是多”的建筑学理论,用极简的色调,纯净的线条,黑色和木色的搭配组合,营造出极简主义的空间氛围。在这里,居住者可以摆脱空间的繁琐,回归真正的自我感受。 极简的色调,纯净的线条 卧室:少即是多,摒弃复杂的装潢 回归真我感受 4 DS公寓 对于整个公寓项目,设计师有着非常清晰的设计构想,希望去探索未来空间使用的思考,随着时间的推移,该公寓由最初的一个人使用,慢慢变成多个人居住,成为符合多人生活使用的公寓空间。 考虑到公寓现有的先决条件和复杂功能,当我们去分配整个56平方米的空间时,希望它既能符合功能需求也能呈现出一种空间感。因此,我们找到最合乎逻辑的设计方式即根据植物的斜削角几何形式和已有的建筑结构线型来指导这个设计,按照这种想法,最终的解决方案自然而然的以一种简单而恰当的方式对整个公寓进行设计。 黑色家具分隔出客厅与餐厅空间 餐厅内核桃木家具与白色房间背景相互映衬 与客户一起接洽工作后,我们决定赋予整个室内一种素净而优雅的感受,选用核桃木结合其高贵的饰面感来建造整个室内空间。已存在的建筑元素将成为背景,并以白色为主要背景基调,而核桃木与白色背景恰好相互映衬平衡。同时,在空间划分模糊的区域,我们适当地在家具上使用黑色以此来加强空间的区分。 在白色客厅中的优雅黑色沙发 白墙边的核桃木梳妆台 通向卫生间的白色走廊 与旧建筑元素相结合的卫生间 5 JJ公寓 该公寓项目中,设计师用简单的手法提升了居住的空间感受。房屋两侧临街,设计充分利用了这栋巴伦西亚典型住宅楼的优势,沿光井设置功能空间,保证阳光可以照到室内的各个角落。 住宅中的主要起居空间尽量开敞,最大化其墙面面积,可以满足不同使用功能的需要。 开敞的起居空间 餐 厅 餐厅细部,木材给人以温馨的感觉 开放厨房 连接卧室的走道 粗糙的墙面和温暖的木材一起,创造了一个温馨的氛围,传递出家的感觉。 设计单位:Carlos Segarra Arquitectos ▼ 作品来自网络有小编整理 未经允许,禁止转载 |
精华推荐
换一换






楼梯上那个道光缝装饰效果不错,二楼楼梯两边的通道好小,还有,冰箱怎么开门