|
本帖最后由 麦丰设计 于 2018-12-4 16:04 编辑 拾光 · 印 设计师言: 家对于每个人都有不同的定义,关乎地点在于人,心灵的沟通决定绽放,懂了才知所需,空白由“我”填满。
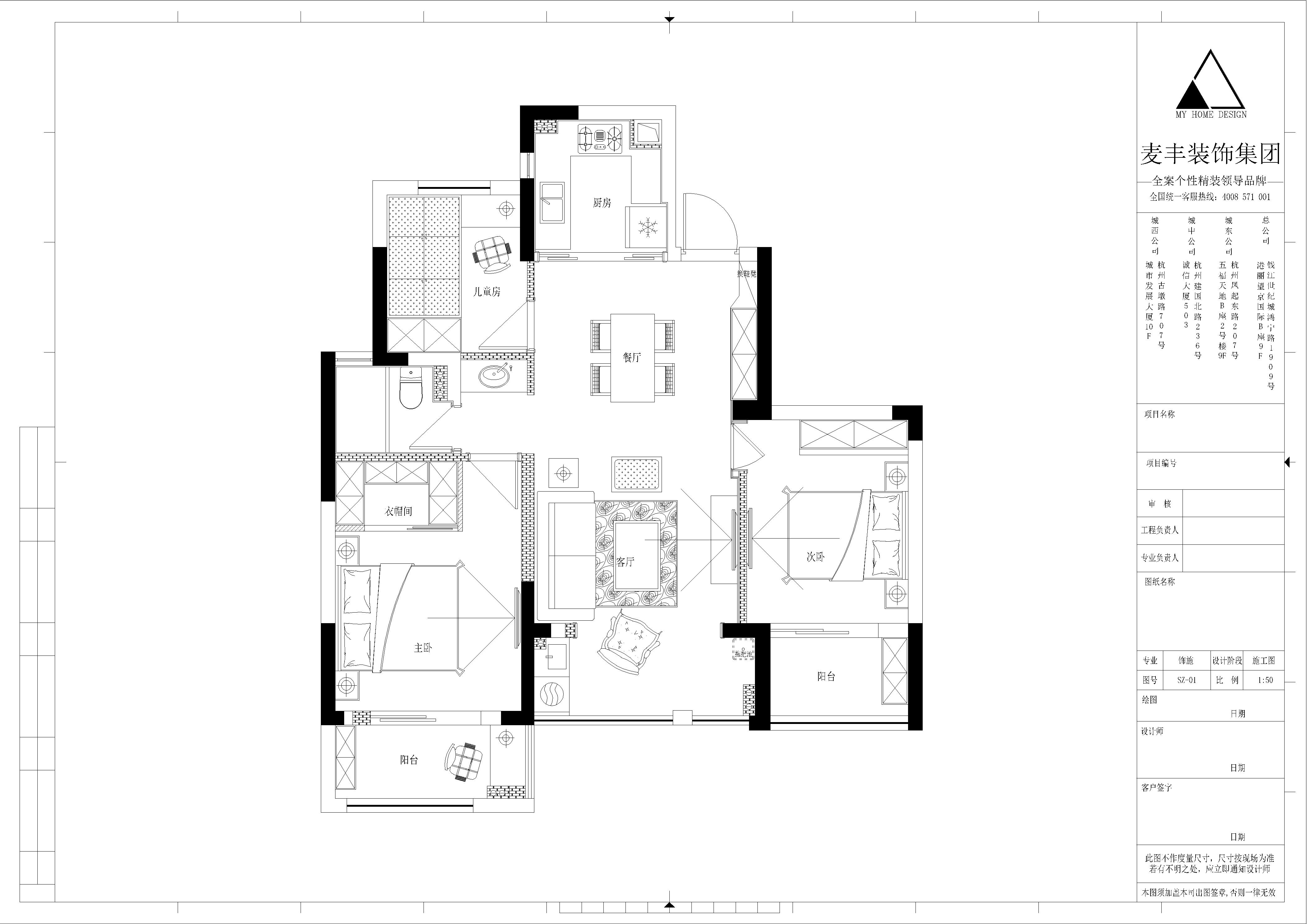
案例信息 项目地点:杭州·宝嘉誉峰 项目类型:住宅 项目性质:半包 项目面积:89㎡ 项目风格:现代简约 设计+施工:浙江麦丰装饰设计工程有限公司 主要用材:大理石、木饰面、墙布、仿大理石瓷砖 户型的优缺点 本案为89方中间套经典户型,结构方正且空间利用率高,但储物空间较少,次卧房门在电视背景墙旁边,影响背景墙整体美观。设计师着重解决这几个问题,利用小房间的榻榻米及主卧的衣帽间增加储藏,次卧房门改为隐形门,与客厅阳台打通,通过结构布局改造,增加实用性及舒适感。 客户需求 对于现代风格的公寓来说,清新素雅却又温馨迷人是它彰显出的独特魅力,这处公寓根据屋主的居住需求,改变了原先的格局,尽可能的放大了储物的空间。以大量的白色调为基底,从金属元素的吊灯、装饰画、绿植的点缀让素色空间也充满生活的优雅与美好。 设计方案(户型对比图)
▼客厅 Living room 客厅以最基础的黑白灰为底色,米色的皮沙发,黑色的组合茶几,最原始的三种色彩在丰富的饰物点缀下,塑造出更多层次的魅力,营造出清新柔和的现代风情,整面的大理石电视背景,华丽的金属元素,让空间保持宁静清爽的同时加入了更多的个性与质感。
▼餐厅 Dining room 单独规划出的餐厅清爽明亮,大理石台面餐桌结合木元素,悬挂着的黄铜吊灯,让素雅的空间增加了现代气息,桌面上摆放着简单的绿植,恰到好处的点缀让勃勃的生机感平衡了屋主的生活气息。
▼厨房 Kitchen U字形厨房区,设计师定制了整面的储物柜,将厨房杂物收纳妥当,即便是黑白色的简单空间,也显得清爽洁净。
▼卧室 Master Bedroom 主卧拥有绝佳的采光条件,充沛的光线让墨绿色的柜门也不显压抑,嫩绿的窗帘与黄色的腊梅,让舒适与宁静围绕整个睡眠空间。
▼次卧 Bedroom 不仅要满足屋主对艺术美学的追求,设计师更是尽量的营造不可缺少的舒适感,咖色调的墙面,浅蓝的床,柔软的织品,让睡眠空间静谧而放松。 ▼卫生间 Bathroom 小而精致的卫生间改成干湿分离,统一采用釉面砖砖铺就,墙地一体的效果视觉加上大玻璃镜柜,整体显得宽敞不少。 ▼阳台 B balcony
|
精华推荐
换一换





这么好的作品为什么没有关注呢?给你点赞!