重庆新天泽国际广场王老师私宅居住设计

仅供分享不做任何商业用途,版权归原作者所有,谢谢配合。

马上注册,结交更多好友,享用更多功能,让你轻松玩转社区。

您需要 登录 才可以下载或查看,没有帐号? 注册

x
本帖最后由 凤头钗 于 2019-7-19 11:44 编辑

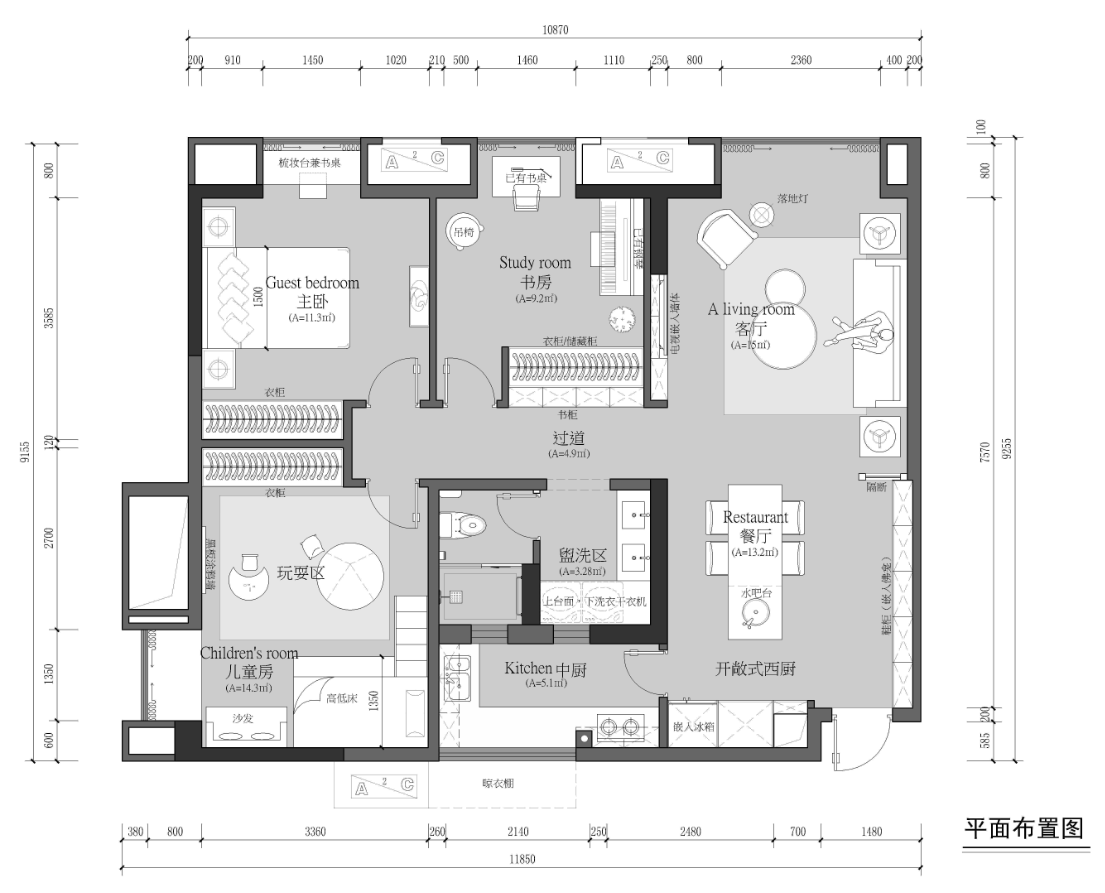
业主王老师是这个房屋的女主人,王老师和老公以及2个女儿生活,王老师喜欢现代简约黑白灰格调,故公共区域用现代简约+局部木色点缀;9岁的大女儿和3岁的小女儿一个房间,喜欢粉色,故女儿房考虑简约加局部皮粉色点缀,女儿房设置了玩耍区域和墙面黑板墙供2个女孩一起玩耍成长。

客厅

客厅

餐厅

餐厅

主卧

主卧
04--主卧.jpg

女儿房

女儿房
06--女儿房.jpg
07--女儿房.jpg
JIG2MG7WC[L`~[{9LW`QC_P.png

平面布置图

平面布置图
1{PKVL)O}0{UA_O)ILV~]IB.png

 

精华推荐
换一换

发表评论0

重庆新天泽国际广场王老师私宅居住设计
拓者推荐
  • 孟也新作-七都岛640法式别墅拓者空 600㎡极简别墅
  • 【武汉站—“樱”你而来】获客实操
  • 【武汉站—“樱”你而来】户型优化
  • 【武汉站—“樱”你而来】风水
  • LSD-宁波鳳栖雲庐合院样板间
  • CCD-华润 CCBD 889㎡设计方案
  • 孟也新作-七都岛640法式别墅
  • 【WSD世尊】建发·云启玉诸
  • 苏州绿城樾庐合院样板房
  • 无间设计-上海万科中兴傲舍
  • 2025拓者年费+案例Vip会员说明!
  • 【 拓者年费--CAD图纸】
  • 【 拓者年费--户型方案】
  • 【 拓者年费--豪宅视频】
  • 【 拓者年费--灵感图库】