|
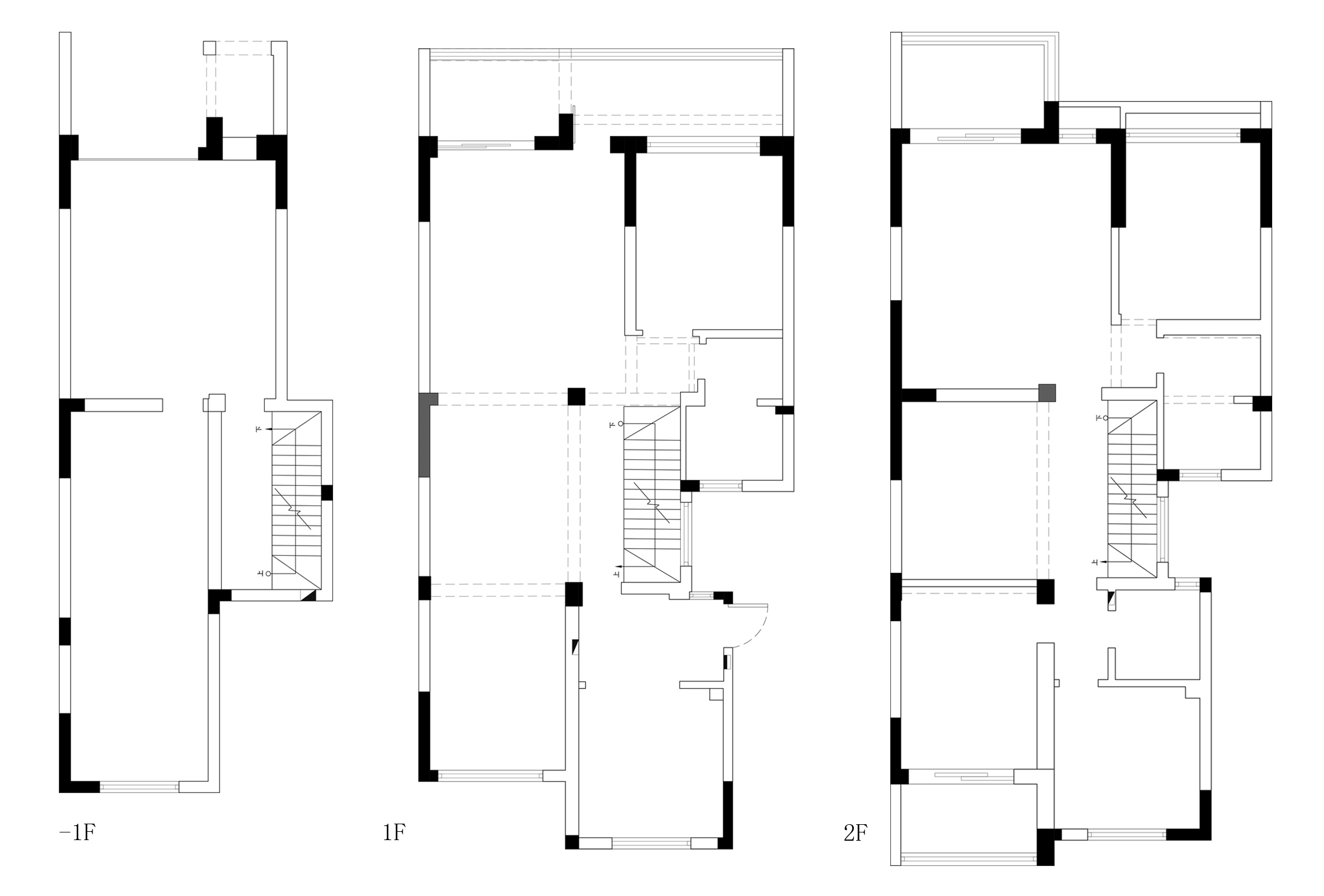
项目名称:水木清华叠墅 项目造价:硬装65万、软装10万 项目面积:300平米 设计时间:2016年 施工时间:2017年 硬装材料:格力中央空调、冠军瓷砖、金牌橱柜、KD板、多乐士涂料、新雅典照明、圣象地板 软装材料:新华画廊、布鲁斯特窗帘、博艺定制家具 【 故事背景 】 说起这套房子,有这么一段小故事,13年的时候,我们刚从上海回乡创业,便接到过这套房子的设计邀请,但后期由于种种原因,项目搁浅。16年的时候,我们实地测量这套房子的时候,发现这竟然是我们几年前接触过的那套房子。由此可见,我们与这套的房子是多么的有缘。 设计方案16年底就做好了,17年春开始了土建改造,5月份完成了中央空调和水电改造。7月份完成了木工吊顶。9月份完成了瓦工工程。11月份完成了油漆工程,之后便是各种的硬件安装。项目在18年的7月完成了木门、KD板、地板、洁具和灯具的安装、这时候硬装基本完成。在18年的8月家具到场之后就是长达近1年的空晾期。今年的7月,在得知窗帘和油画安装到位之后,我们邀请摄影师拍摄了这套毕业照。【 平面说明 】 这套房子总共三层、共计300平米。其中负一层60平、一层和二层各120平。建筑为框剪结构。所以大部分的墙体都是可以改动的,这给我们的设计带来了诸多便利。 ![]()
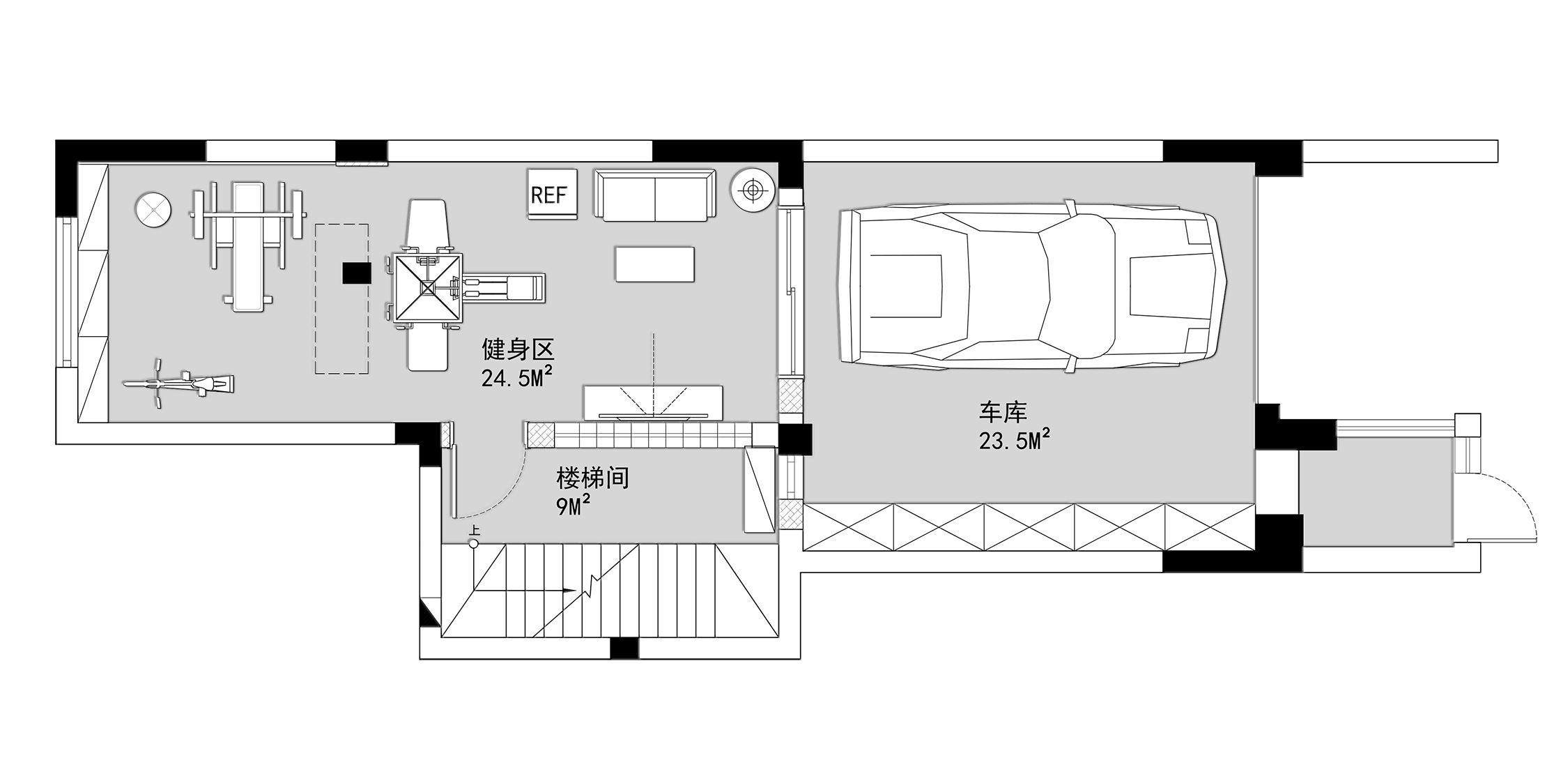
负一楼总共分为3个区域、分别是车库、健身房和楼梯间。 ![]()
一楼布置了客厅、餐厅、厨房、水吧台、老人房、客卫、工作阳台等、将老人房北侧的隔墙拆除,向北借了60公分的衣柜位置,增加老人房的面积。将厨房和餐厅的隔墙打掉,在墙体内隐藏了一扇移门,这样既方便餐厅和厨房的来往,也方便厨房油烟大的时候隔离。 ![]()
二楼布置了主卧、书房、两间小孩房、将中间的起居室一分为二、分别布置了两间衣帽间、一间给主卧用、一间给男孩房用。原先的卫生间较小、将隔墙拆除向南借了90公分的距离、安装了浴缸。主卧的空间接近30平米,太过于空旷,因此书房向东借了部分面积,正好靠近南墙的空间就近摆了一张化妆桌,方便女主使用。 ![]()
【 空间展示 】 玄关 ![]()
玄关的鞋柜均分成四等分,一组通长,放置大件器具,其它三片上下分离,中间作为一个台面使用,平时可放置手机或钥匙等。天花使用了KD板与鞋柜呼应,使用一款玻璃移门隔离厨房空间。右侧使用长虹玻璃隔断后方的楼梯,但依然能保持光线进入楼梯间。 客厅 ![]() 由于原始层高只有两点七五米,因此大部分的天花都没有吊顶,在安排好中央空调后将天花和大梁顺平,因此天花显得干净简洁。 ![]()
客厅沙发背景选用了橡木浅色的kd板,搭配一张大幅的抽象油画,提升空间艺术气息。 ![]() 电视背景选用了白色的烤漆玻璃。 ![]()
地面选用一款米色木纹石瓷砖、客厅照明以2组轨道灯为主,并放置一盏钓鱼落地灯作为辅助。 ![]() L型沙发和单人座椅以及茶几和地毯均来自网购。 ![]()
阳台的东墙使用了户外防腐木作为背景、用于挂置一些绿植点缀家居气氛。 水吧 ![]() 在餐厅中预留一个水池是非常的实用的,闲暇之余,洗洗水果,喝茶倒水非常的便捷。 ![]() 白色烤漆的水吧台和橱柜来自金牌。 ![]() 绿植后方的米色长城板来自男主父亲的神来之笔,布置于空间之中,非常的和谐。 餐厅 ![]() 餐厅的抽象油画提升了空间的艺术性。靠窗的位置设计了一组矮柜、餐厅的主体墙面和客厅墙面一致,使用了橡木kd板作为背景。 厨房 ![]() 厨房选用了一款白色烤漆橱柜、面朝花园,一片翠绿,烹饪的时候体验美景入帘,喜不自胜。 1F走道 ![]() 水吧一角看楼梯 楼梯 ![]() 榉木踏步板、感应踏步灯,长虹玻璃隔断 老人房 ![]() 一楼朝南的房间作为老人房使用。背景选用了一款比客厅稍深的KD板,使空间看起来更加的稳重端庄,床头的2盏壁灯来自网购,方便睡前阅读。 主卧室 ![]() 二楼朝南的最大房间作为主卧使用。 ![]() 背景使用橡木KD板,中间预留了一个壁龛,暗藏灯带,方便睡前放置一些零星用品或书籍。阳台设计了一面绿植墙,后背留有凹槽,方便更换绿植。 男孩房 ![]() 墙面使用浅蓝色涂料,地面使用了橡木地板。 ![]() 男孩房使用橡木KD板做了一米高的矮台,放置一些书籍或装饰品。 女孩房 ![]() 浅粉色乳胶漆作为房间的整体基调,非常的温情可爱,装饰画和家具来自淘宝。 2F走道 ![]() 【 总结 】 整个项目大多是女主和男主的父亲在负责跟进,特别是女主,从项目前期设计、到施工队的选择、再到各种装修材料的选择、这其中的3年,有艰辛有快乐,最后女主从一个孩子的母亲即将变成两个孩子的妈妈,让我们祝福他们一家迁入新居,共筑美好的生活。
[ 联系方式 ] 手机(微信同号): 18068216995 微博: 宿迁在地室内设计有限公司 地址:江苏省宿迁市西湖路水韵城公寓1005室 |
精华推荐
换一换




























一般感觉!