-
生活的追求者 2019-8-3 16:30:03
qq807571174 发表于 2019-8-2 18:47
主卧在左边,次卧在右边行不行
业主的基本要求是主卧需要卫生间的,如果有办法的话也是可以的
-
生活的追求者 2019-7-31 18:11:34
卷太阳 发表于 2019-7-31 17:14
房间和卫生间需求?人口结构?
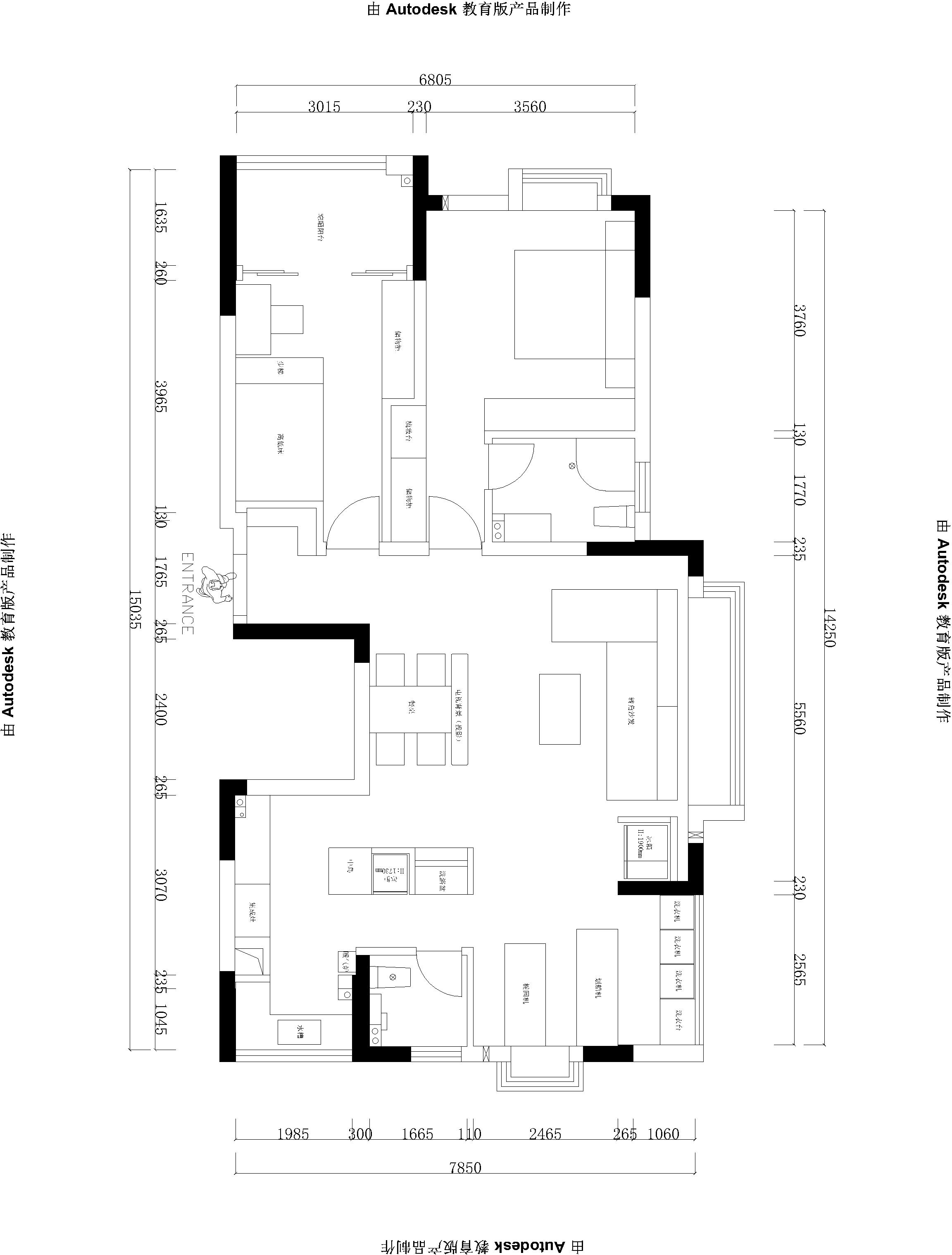
只需要南面两个房间,房主是女性。一个人住侄子偶尔过去住一下,次卧高低床。卫生间满足干湿分区就行。要有客餐厅区域,以及两个健身器材(椭圆机和划船机)要放在公共区域,一台双开门冰箱必须放在厨房外面,一台单开门可放在厨房里面,三个波轮洗衣机。全房想采用智能家居!就是这些要求了。
-
生活的追求者 2019-7-31 17:04:50
坠落归墟 发表于 2019-7-31 15:31
入户有点小气,餐桌难得转,冰箱背后的窗帘位不好打扫,沙发这样摆对客厅采光有影响客户不一定着得住(个人 ...
感谢大神指点,因为业主想采用智能家居,所以就没有考虑到卫生处理这块!现在就是空间上的布局没有了头绪。业主不仅在原结构上,希望改成两厅外,还有两个健身器材(划船机和椭圆机),一个双开门冰箱要放外面,一个单开门冰箱可以放厨房里。而且要三个洗衣机所以在空间分布上就短路了!
-
生活的追求者 2019-7-31 16:56:57
小南0715 发表于 2019-7-31 15:48
餐厅做的有点小气,怎么没有写要求啊!有CAD文件链接吗
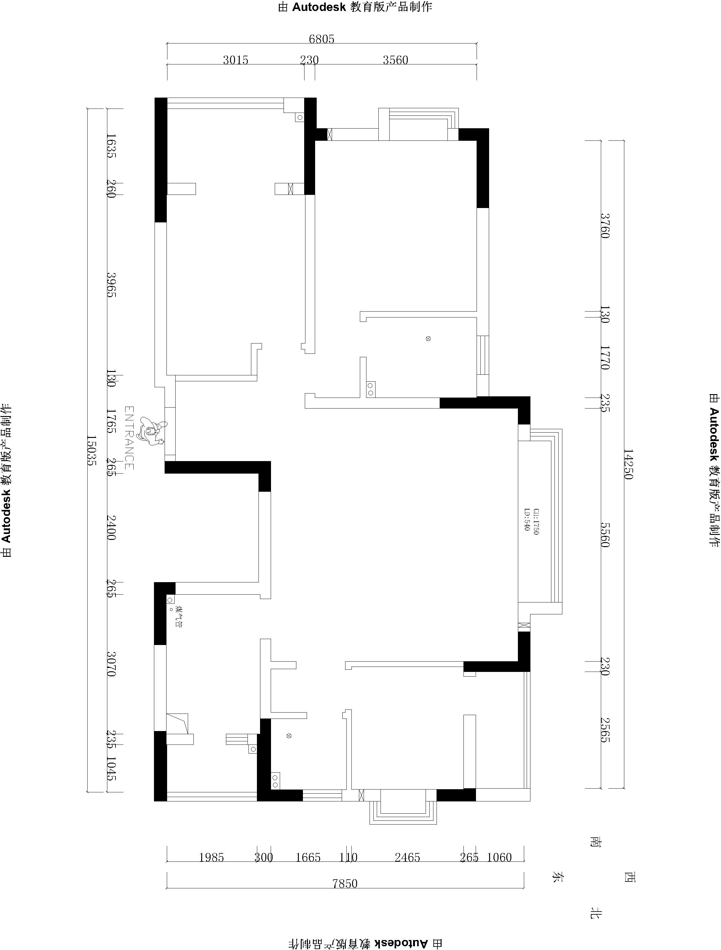
空间的分布局限性太生硬了,而且业主有一台双开门冰箱,指定要放在公共区域,一台单开门可放在厨房,另外还有两个健身器材。所以这几个空间分布起来就矛盾了!




有的,
cad