精华推荐
换一换
-
081131214 2019-9-24 12:48:57
语设计 发表于 2019-9-24 09:28
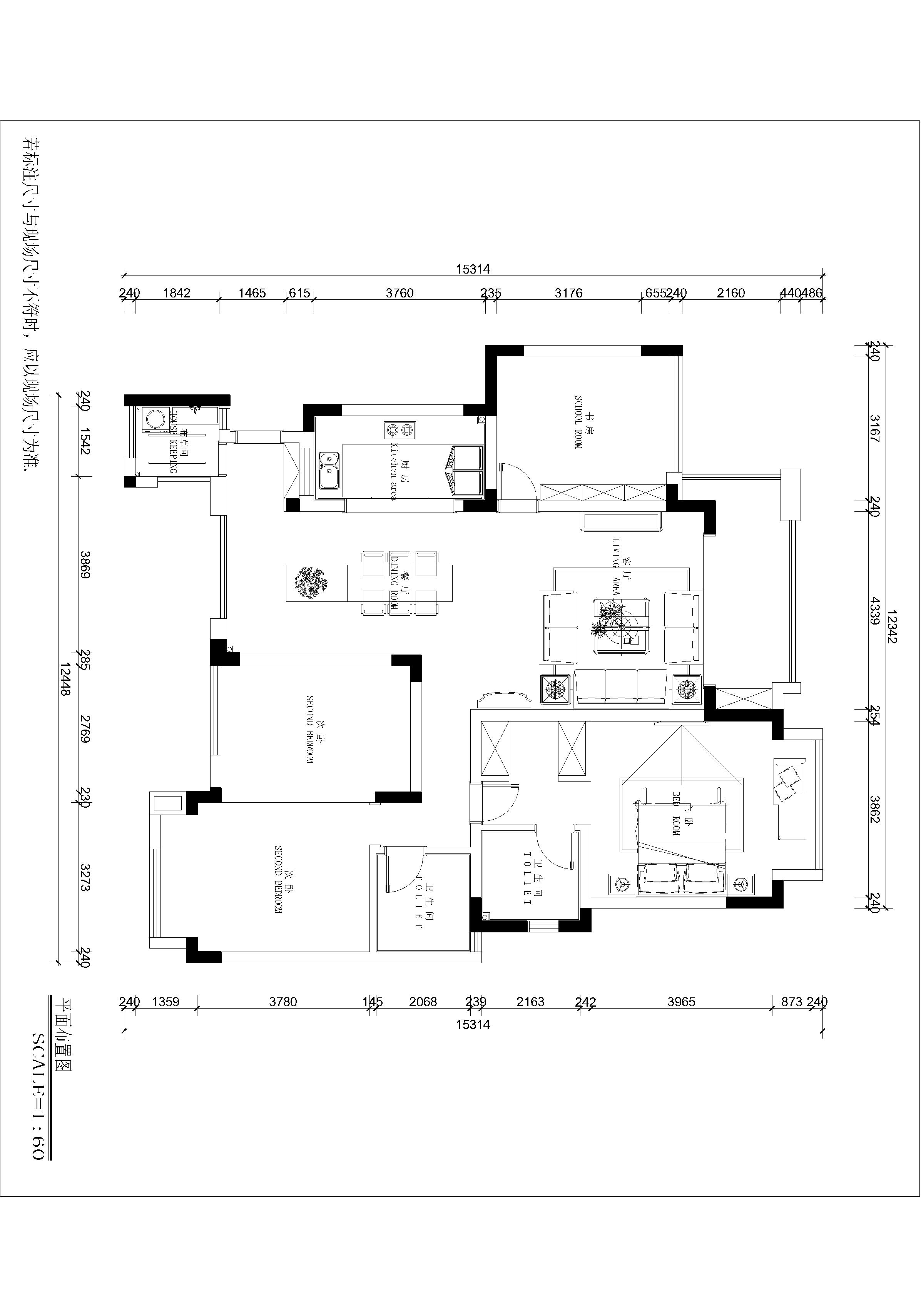
自己的想的方案 整体性很好 吧台和餐桌集合 这样使用又美观 主卧门移动了一下 形成了一个“假”衣帽间 仅参 ...
谢谢你抽出宝贵的时间给意见。谢谢。
语设计 发表于 2019-9-24 09:28 谢谢你抽出宝贵的时间给意见。谢谢。 ![]() |
应该上传个CAD啊