-
760249789 2019-10-6 16:45:58
yuanxihao123 发表于 2019-10-3 15:37
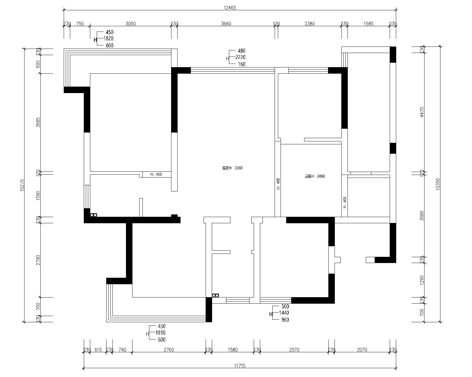
我看他次卧的飘窗拆了,就默认都能拆了,这个根据现场吧,确实主卧很不好做
谢谢啊,飘窗可能不能拆
-
yuanxihao123 2019-10-3 15:37:03
yuanxihao123 发表于 2019-10-1 02:31
画了一个相互借鉴一下.
我看他次卧的飘窗拆了,就默认都能拆了,这个根据现场吧,确实主卧很不好做谢谢啊,飘窗可能不能拆
-
Van18 2019-10-1 21:41:09
yuanxihao123 发表于 2019-10-1 02:31
画了一个相互借鉴一下.
个人觉得,门口的鞋帽柜可以做厚柜,做薄柜浪费了点。还有主卧室的飘窗,按常理是不能拆的吧
-
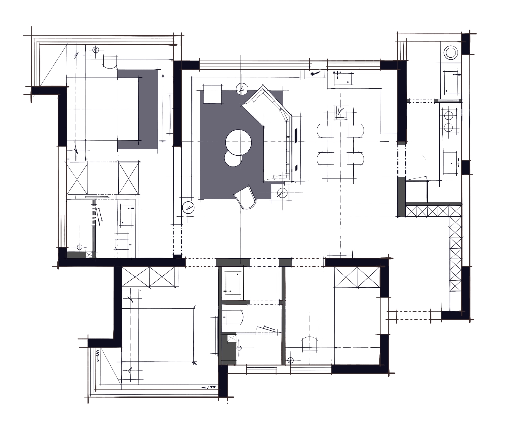
yuanxihao123 2019-10-1 02:31:58
画了一个相互借鉴一下.
谢谢你们的思路啊,我看他次卧的飘窗拆了,就默认都能拆了,这个根据现场吧,确实主卧很不好做个人觉得,门口的鞋帽柜可以做厚柜,做薄柜浪费了点。还有主卧室的飘窗,按常理是不能拆的吧 -




是的,户型很不好,飘窗估计不能拆,谢啦,手绘画的好