|
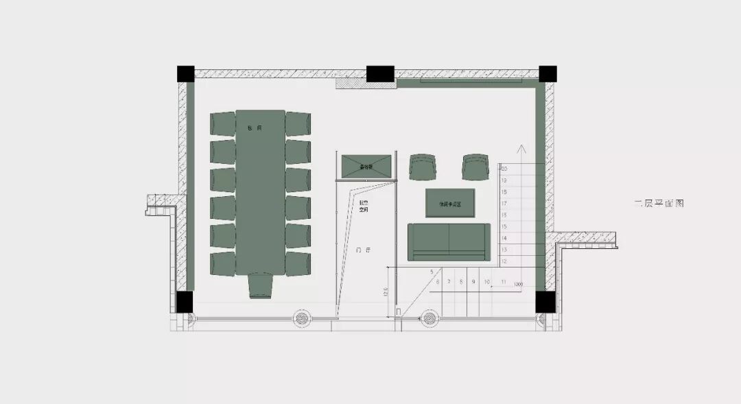
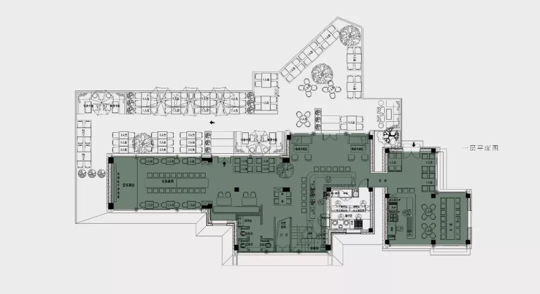
本帖最后由 DOT.DOT. 于 2019-10-23 10:36 编辑 8 _2 c- N4 I& O4 {/ f; x4 } 项目名称:浮影酒吧 项目地点:中国郑州 陈设团队:觅境陈设 竣工时间:2019年10月 挑高的区域搭配上婉转的吊灯,伴着交错的光影,层层递进,勾连起一幕幕别致的艺术影像。 ▼长吧台,long bar 6 l* n! ` X) F7 s9 ^5 a ▼酒吧主要空间概览,interior view of one large “room” 浓郁的墨绿点燃了整个空间,一抹灰蓝色点缀其中,温暖的丝绒材质与皮革质感相得益彰,这高低起伏的美感,时刻演绎着可触摸的空间温度,张扬与复古此起彼伏,刚柔并济,愈演愈烈,最终以反差与惊喜落幕。 ▼长桌,long table # Q( ]8 Z) K! e. B F7 ]! M 错落有致的玻璃吊灯晶莹璀璨,柔和的光线穿梭于空间的缝隙,曼妙灵动的气息缓缓上升。 ▼包间,private space 0 N, S0 e2 a( I 8 F. f, x2 U& Y! R( B& [ * m/ ^" ]& b: A1 O ) _2 k* i9 Q/ B3 Z7 f0 z* n ▼细节,details ; v5 I! `4 Q4 p1 u 设计师以轻松幽默的设计方式,将艺术注入空间,使空间灵动而有趣,辗转于酒吧每个角落,感受近在咫尺的过往繁华。 ( N; a& Q; }6 l* N1 a1 p. F ) ^7 p9 ?: r4 L& ]" V9 q ▼平面图,floor plan - 完 - 原平图优化设计 / 陈设方案设计 / 陈设配置清单 产品图纸深化 / 摆场及安装 货品售后 / 软装保洁 / 风格艺术培训 本文为《觅境陈设 MEGINE DISCOVER》版权所有 欢迎转发 如需合作请关注本公众号 3 R2 E* o; F: h- x2 l/ HAdd:中国·郑州·经开区第三大街88号专家花园 ! B# q# w" k" ^ y% g. R |
精华推荐
换一换




就这?