穿梭于城市与白昼之间,我们才更能明白家的珍贵,对于一座城市来说,我们的家无比渺小,但对我们来说,家比一座城更大。
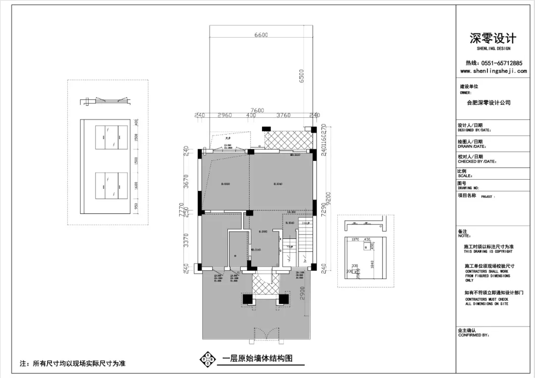
写在前面 对于一个设计公司最大的肯定,就是我知道你所有装修流程,了解你全部的设计风格,再次装修,我依然选择你们,因为相信,所以选择。本案业主是深零家的老客户了,第一套房选择的是美式风格,第二套房的风格希望简单一点,符合当下的流行趋势,于是定下了现代简约风。 这套户型是一个四层别墅,但是原始的户型结构每一层都比较局促,虽然对于业主一家三口的居住需求来说是绰绰有余的,但是我们依然要把空间感做出来。 作品信息 项目户型:四层别墅 项目面积:300㎡ 设计风格:现代简约 设计团队:深零设计组 施工单位:合肥深零设计 项目地址:合肥-世茂翡翠首府 设计解析 一层 原始墙体结构图
平面布置图
一层三维视图
客厅
看多了世界的浮华,才更能体会简约的美感,家应该是那个让你感到独特又沉静的地方,不一定要覆天下之华,但一定独一无二。 整体黑白灰的配色稳重大气,不规则几何图形家具包含着千变万化的奥义,大面积石材的使用,在无形中抬高了整体家居的质感。 餐厨
“是谁来自山川湖海,却囿于昼夜,厨房与爱。” 厨房的烟火气,案板上的刀痕,都是岁月给生活留下的刻痕,日子在一日三餐中更迭中渐渐过去,归于细水长流,留下的除了记忆,还有爱。
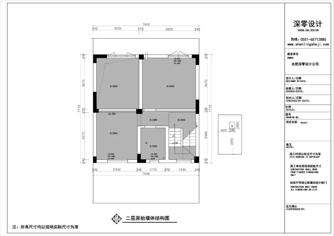
在厨房的设计上,我们选择了中西厨分离的设计,业主的宝宝今年在上幼儿园了,对于世界的好奇探索,也可以在西式的甜点互动中进行。 二层 原始墙体结构图
平面布置图
二层三维视图
阅读角
阅读角的设计不仅仅可以用来看书,闲来无事时也可以在这一隅清幽之地与孩子互动,参与孩子的每一个成长过程。 楼梯
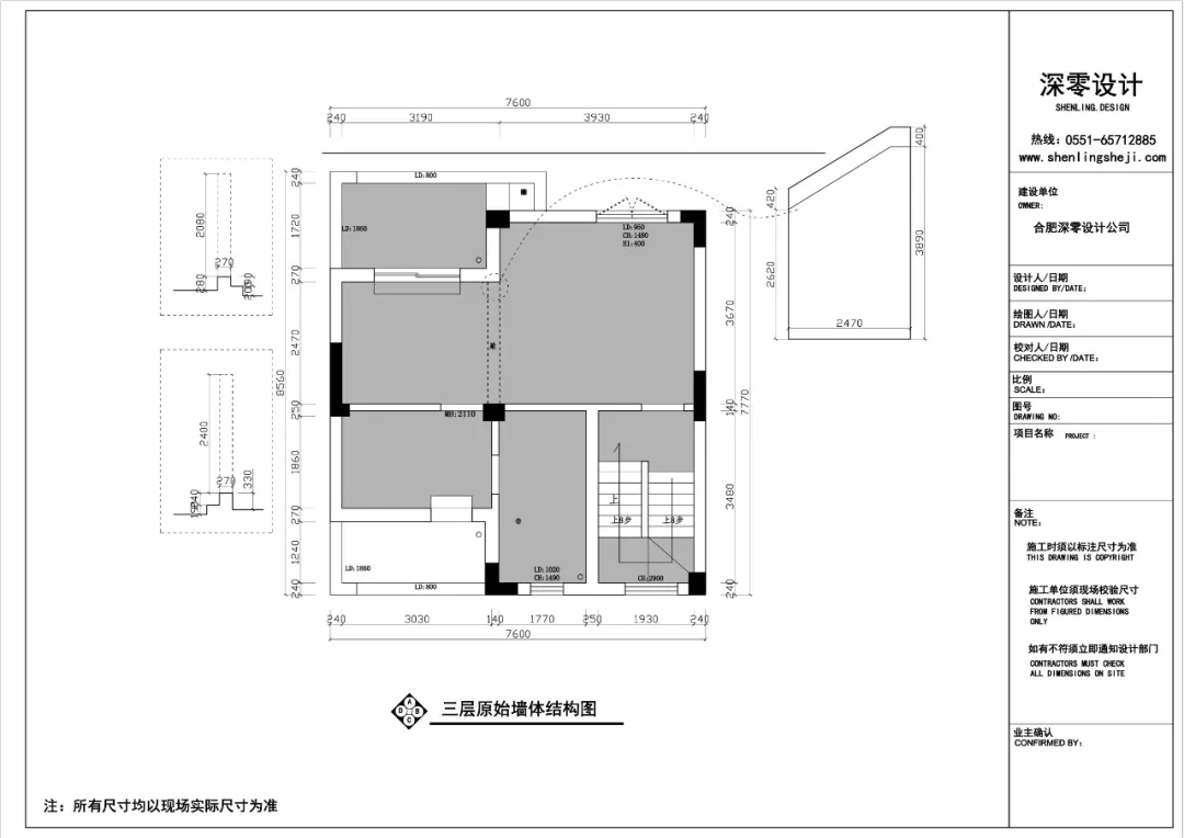
楼梯是个使用最多,功用最少地方,但即便如此,我们也不希望它默默无闻。 于是,在楼梯的设计上,采用了台步外挑的设计,并在转角处与每一阶的台步做了灯光处理,可作为氛围灯,也可减少照明死角。 对于空间的利用也是楼梯的点睛之笔,打掉了楼梯右侧的轻墙,拓宽了楼梯,选用玻璃材质的扶手使得空间更加通透。 三层 原始墙体结构图
平面布置图
三层三维视图
整一个三层都是作为主人的使用空间,卧室、衣帽间、浴室、洗衣房,你所能想到的卧室功用,这里都有。 主卧
别墅独特的屋顶造型,使得三层天花板高低错落,为了减少压抑感,在主卧的设计上,我们选择打通卧室与阳台之间的轻墙,改善了采光,也拓宽了室内的面积。 卧室的地板设计直接延续到整个阳台的墙面顶面,与室内相融的同时,又仿佛是一个独立的空间,顶面的明暗交接,墙面的色系相构,无一处不彰显着低调的高质感。
地下室 原始墙体结构图
平面布置图
地下室主要作为车库使用,令人惊喜的是地下室的层高有4.7m,本着物尽其用的原则,我们在地下室与一层中做了一个夹层,作为家庭储物室使用。 海子说:“要有最朴素的生活和最遥远的梦,即使明天天寒地冻,路遥马亡。” 在深零sir看来,坚持梦想的前提是有一个让人安心的家,有后盾的人才能心无旁骛的追逐明天与梦想,就像树木一样,只有有根,才能生长。 而深零要给每一个向往明天的人,打造一个独一无二的家。 |
精华推荐
换一换




发表评论0