|
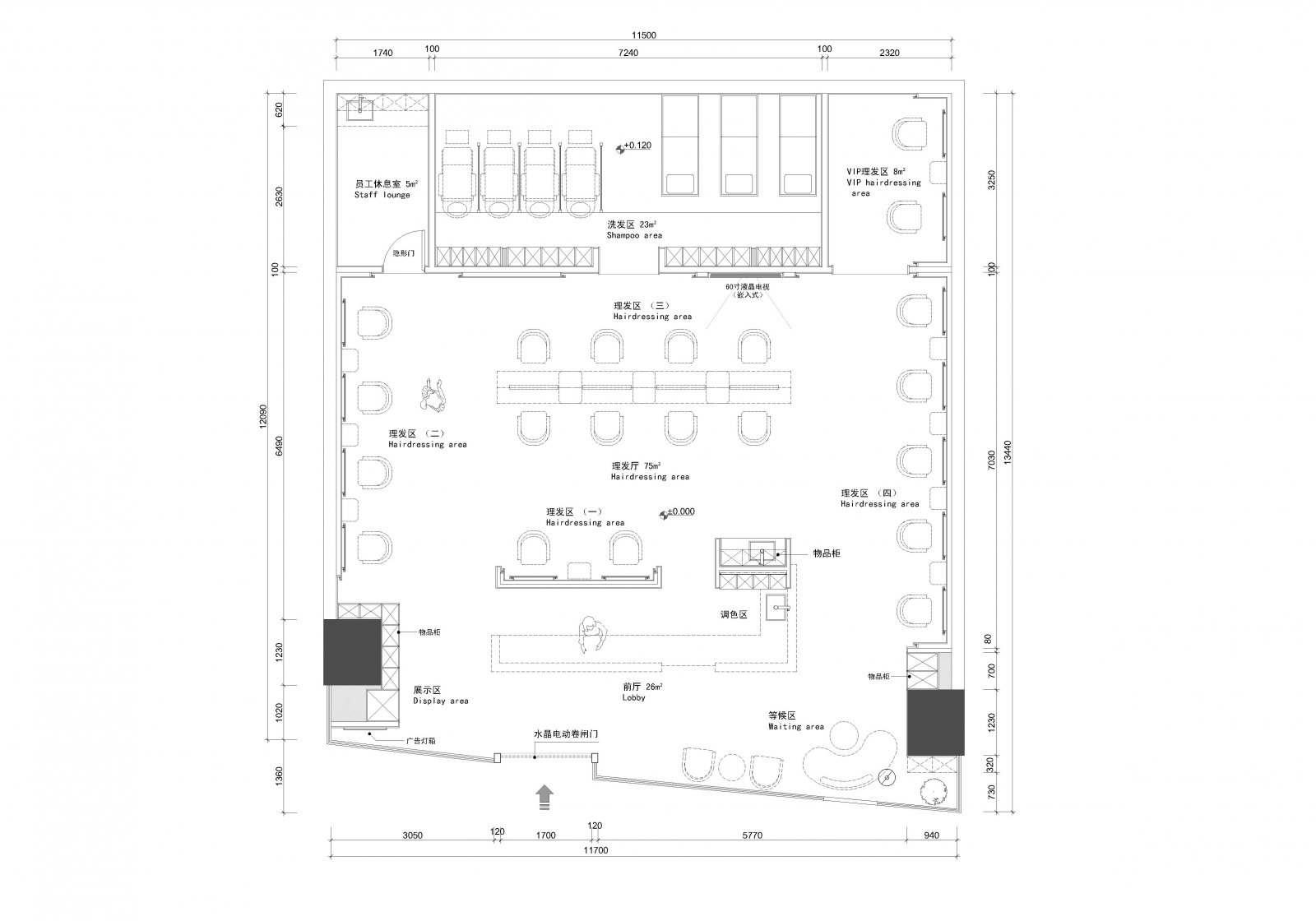
设计公司 | Design Company : Pro.S布舍设计 设计总监 | Design Director : 黄梓铖 Henry Wong 主案设计 | Master case design : 金涛 参与设计 | Involved in the design : 金涛 谢辉 项目类型 | Project Type : 美发沙龙 项目地址 | Project address: 中国 广州 项目面积 | Project Area : 160㎡ 主要材质 | Main Material : 木饰面、大理石、拉丝黄铜不锈钢、亮面烤漆板、夹丝玻璃 联系电话 | 13560440388 ![]() ![]() ![]() 钦慕之至,点石成金。 如今,共享经济变得越来越规范化, 并且衍生出了各种不同的工作方式, 拥有自己的店面也不再是必然的需求。 ![]() ![]() 对于以自由身份工作的造型师来说, 这种工作方式能够带来许多好处。 门头设计采用大面积玻璃, 将Chi style衍生而来的线条造型贯穿全案, 全尺度的落地玻璃门窗, 打破了空间中的距离感, 无意间拉近了某种互动感, 也为整体视觉感受注入了几丝轻盈透亮的气息。 ![]() ![]() ![]() ![]() 弧形大理石背景墙成为焦点, 像河流般流淌于天际。 独特的造型通过参数化设计实现, 模拟出圆滑的抽象形态。 ​
|
精华推荐
换一换










​



6666666666