做个方案练习,希望大家指点指点

2019-11-9/ 户型方案/ 户型交流/ 只看大图 阅读模式
仅供分享不做任何商业用途,版权归原作者所有,谢谢配合。

马上注册,结交更多好友,享用更多功能,让你轻松玩转社区。

您需要 登录 才可以下载或查看,没有帐号?注册

x
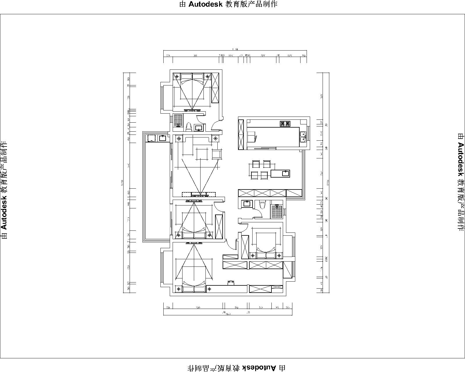
根据承重的话,我个人感觉只能在厨房那做文章了,厨房可以做开放式,然后有吧台什么的,房间的话就感觉蛮固定的,主卧不要卫生间了,要个书房和衣帽间,房子蛮大的,但是承重也挺多的,希望大家给点意见,指导指导,谢谢了
平面布置图.jpg
原始结构图.jpg

 

精华推荐
换一换

发表评论4

  • sphufei 2019-11-13 17:48:33

    回帖奖励 +50 金币

    餐厅阳台可以保留吧,好晾晒衣物,客厅那边阳台就做休闲阳台;然后客厅那边阳台也可以隔一块给次卧

做个方案练习,希望大家指点指点
拓者推荐
  • 2026拓者 CAD户型方案 发布
  • 【武汉站—“樱”你而来】获客实操
  • 【武汉站—“樱”你而来】户型优化
  • 【武汉站—“樱”你而来】风水
  • 【梁志天】西安曲江·九曲松间
  • 无间-上海汤臣君品合院方案
  • 君品-汤臣金桥花园项目方案
  • 无间-上海大宁中建玖上琅宸
  • HWCD-烟台洲際酒店深化方案图册
  • 琚宾新作-资兴东江湖度假酒店
  • 2025拓者年费+案例Vip会员说明!
  • 【 拓者年费--CAD图纸】
  • 【 拓者年费--户型方案】
  • 【 拓者年费--豪宅视频】
  • 【 拓者年费--灵感图库】