求大师帮忙进一步优化

2019-11-12/ 户型方案/ 户型交流/ 只看大图 阅读模式
仅供分享不做任何商业用途,版权归原作者所有,谢谢配合。

马上注册,结交更多好友,享用更多功能,让你轻松玩转社区。

您需要 登录 才可以下载或查看,没有帐号?注册

x
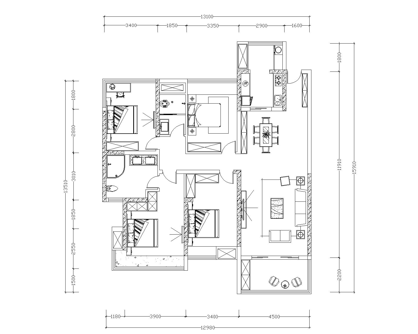
求大师帮忙进一步优化 感觉自己优化的有问题
2.jpg
1.jpg

 

标签: 客餐厅
精华推荐
换一换

发表评论11

  • sphufei 2019-11-13 14:27:16

    马桶与淋浴最好不要放同一区域,马桶会打湿,用起来不方便,有双阳台洗衣机最好放生活阳台吧,冰箱也可以考虑放餐厅,厨房台面太少了

求大师帮忙进一步优化
拓者推荐
  • 孟也新作-七都岛640法式别墅拓者空 600㎡极简别墅
  • 【武汉站—“樱”你而来】获客实操
  • 【武汉站—“樱”你而来】户型优化
  • 【武汉站—“樱”你而来】风水
  • LSD-宁波鳳栖雲庐合院样板间
  • CCD-华润 CCBD 889㎡设计方案
  • 孟也新作-七都岛640法式别墅
  • 【WSD世尊】建发·云启玉诸
  • 苏州绿城樾庐合院样板房
  • 无间设计-上海万科中兴傲舍
  • 2025拓者年费+案例Vip会员说明!
  • 【 拓者年费--CAD图纸】
  • 【 拓者年费--户型方案】
  • 【 拓者年费--豪宅视频】
  • 【 拓者年费--灵感图库】