农村自建房求吧友优化一下互相交流交流

2019-11-29/ 户型方案/ 户型交流/ 只看大图 阅读模式
仅供分享不做任何商业用途,版权归原作者所有,谢谢配合。

马上注册,结交更多好友,享用更多功能,让你轻松玩转社区。

您需要 登录 才可以下载或查看,没有帐号?注册

x
本帖最后由 滋滋姑娘 于 2019-11-29 23:57 编辑

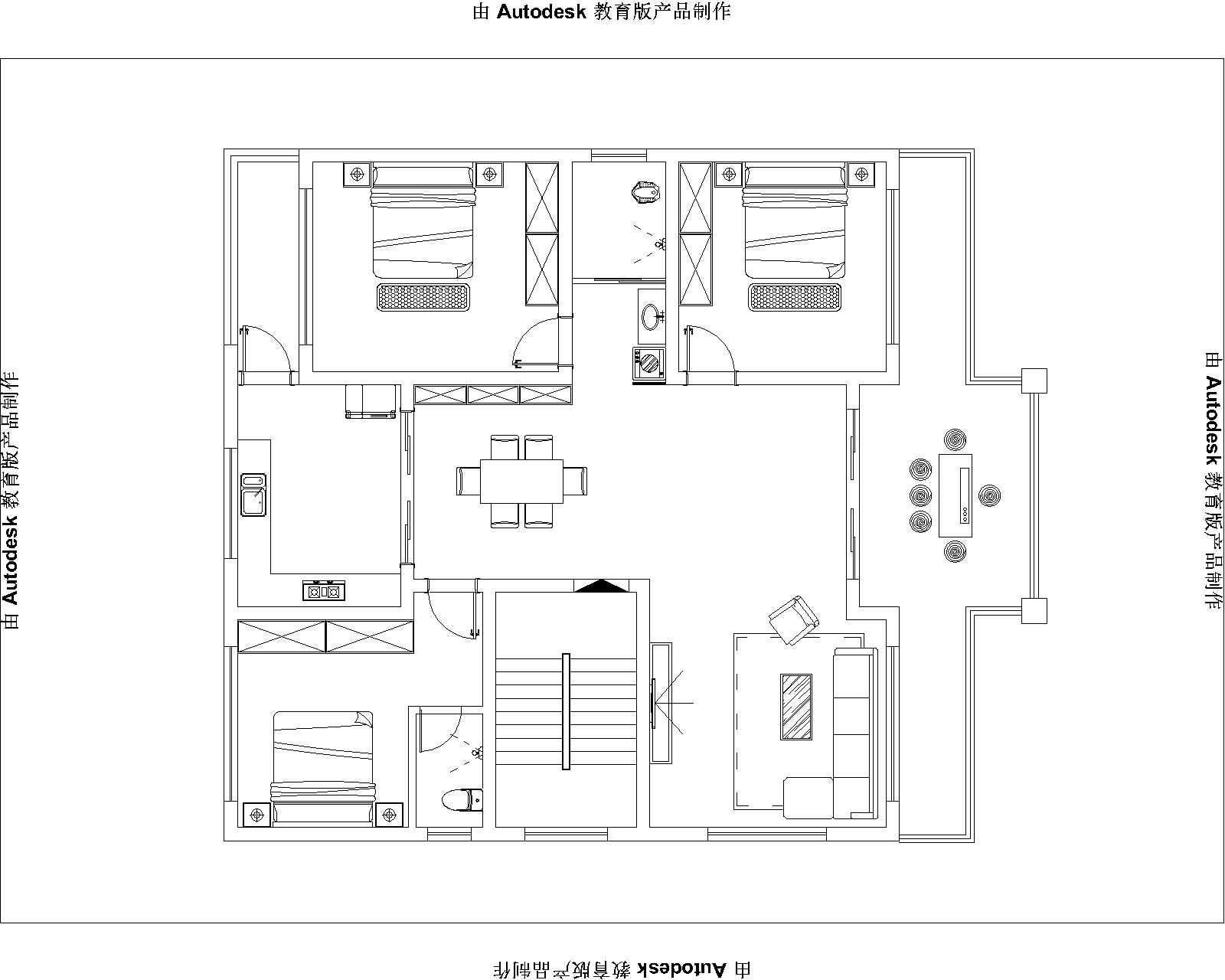
求大神给点思路,墙体能不动尽量别动,不胜感激!!!
新1234块-Model.jpg
新1234块-Model1.jpg

 

新1234块.rar

432.96 KB, 下载次数: 45

精华推荐
换一换

发表评论3

  • 2515997075 2019-11-30 07:11:53

    卧室那里不建议做阳台,严重影响通风和采光

    阳台不好动了,卧室窗户都装好了。改了窗户就浪费了
  • 滋滋姑娘 2019-11-30 09:10:17

    2515997075 发表于 2019-11-30 07:11
    卧室那里不建议做阳台,严重影响通风和采光

    阳台不好动了,卧室窗户都装好了。改了窗户就浪费了

农村自建房求吧友优化一下互相交流交流
拓者推荐
  • 2026拓者 CAD户型方案 发布
  • 【武汉站—“樱”你而来】获客实操
  • 【武汉站—“樱”你而来】户型优化
  • 【武汉站—“樱”你而来】风水
  • 【梁志天】西安曲江·九曲松间
  • 无间-上海汤臣君品合院方案
  • 君品-汤臣金桥花园项目方案
  • 无间-上海大宁中建玖上琅宸
  • HWCD-烟台洲際酒店深化方案图册
  • 琚宾新作-资兴东江湖度假酒店
  • 2025拓者年费+案例Vip会员说明!
  • 【 拓者年费--CAD图纸】
  • 【 拓者年费--户型方案】
  • 【 拓者年费--豪宅视频】
  • 【 拓者年费--灵感图库】