|
本帖最后由 419253452 于 2019-12-3 12:20 编辑 好的設計也許改變不了所有,卻足以重塑日常。 而更好的日常,也許就是生活該有的樣子。 项目地址 | Address:普宁·保利和府 设计主创 | Designer:Small stone(李佳奇) 设计时间 | Time:2019.11 项目面积 | Area:140㎡ 主要材料 | Typical materials:岩板、石材、木饰面 软装陈列 | Designer:Small stone 视觉表现 | Designer:Small stone 序言: “如何体现小空间的价值?” 我最先想到的,是格局和细节,在吸收建筑景观优势的同时,最大化地挖掘功能与美学的结合。
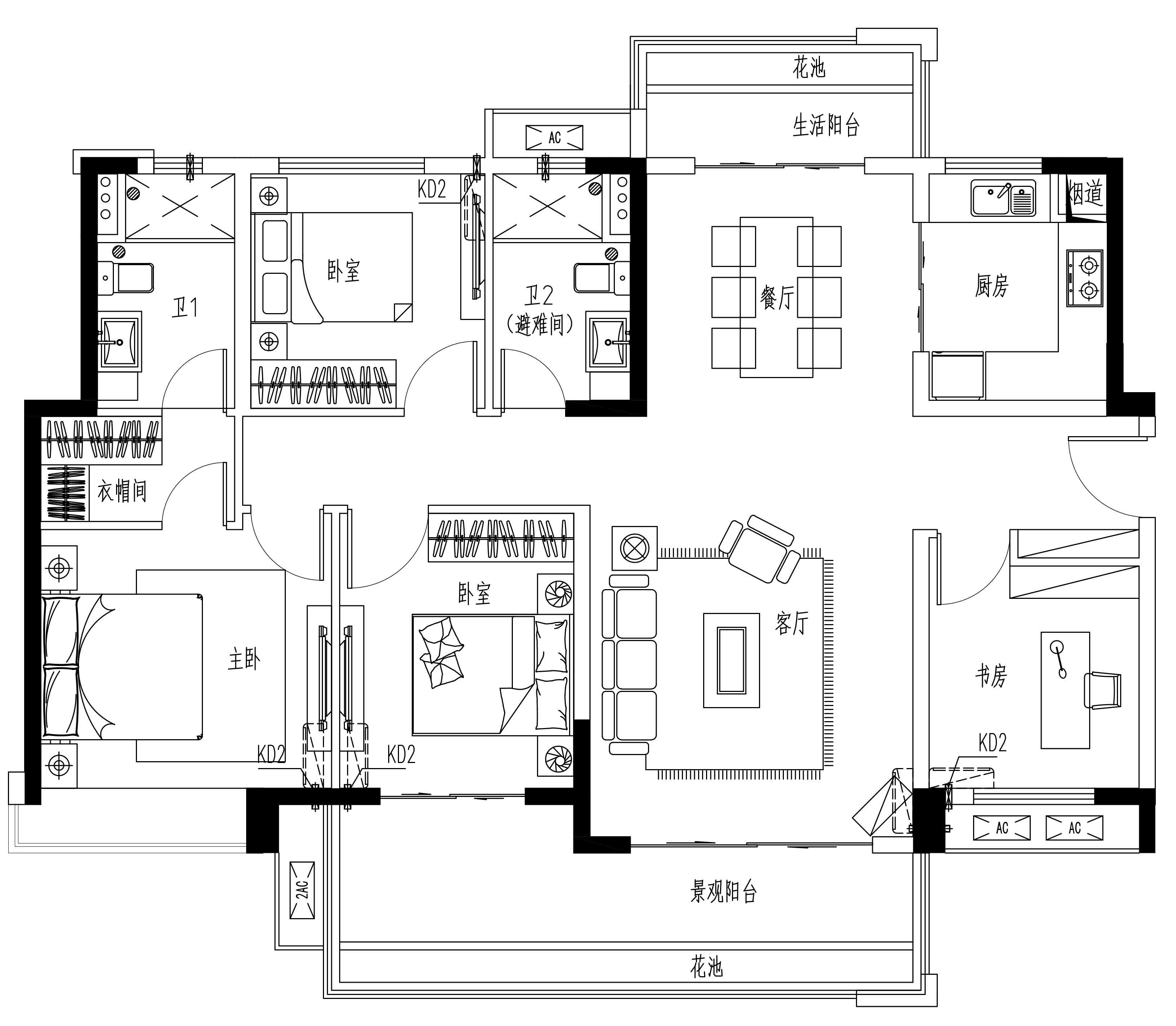
原平面图
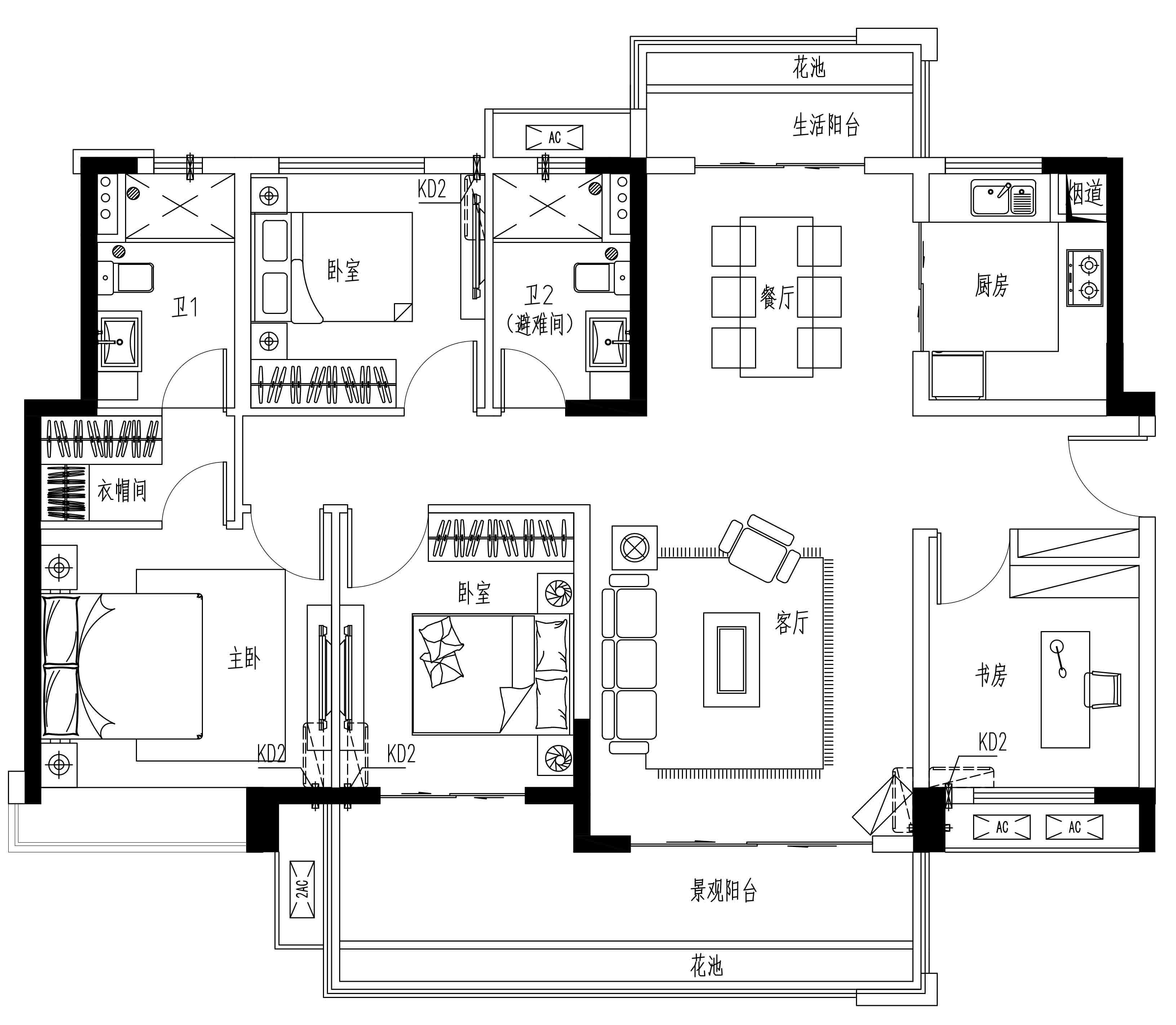
平面空间布置图 而木,既守一身心安静的空间过自己想要的生活,本案以黑白灰注入胡桃木色串联整体空间,不同材质和色彩之间的碰撞,仿佛是从空间里面散发出来的温暖,这就是我们想表达的守一归处吧。
【一木 · 空间】 我们用设计实现梦想 以设计之力影响生活 我们理解设计 更理解生活
|
精华推荐
换一换




发表评论0