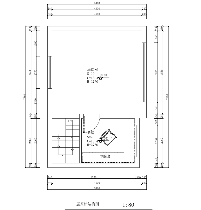
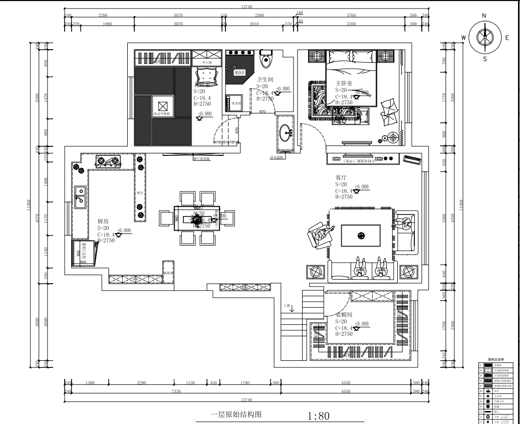
求大神帮忙设计一下楼梯位置;或者帮忙设计一下房屋的平面位置(怎么合理怎么来)

仅供分享不做任何商业用途,版权归原作者所有,谢谢配合。

马上注册,结交更多好友,享用更多功能,让你轻松玩转社区。

您需要 登录 才可以下载或查看,没有帐号?注册

x
需求:没有特别大的需求,可以看我的平面图,但是总觉得楼梯不太合理,求大神帮忙

2楼.png
1楼.png

 

精华推荐
换一换

发表评论8

  • wangkaihong 2019-12-5 16:00:56

    沙发电视换个边,楼梯踏步和电视柜做在一起,直上直下,衣帽间从楼梯下面进

  • yiqi1366 2019-12-4 09:41:39

    太浪费空间了 主卧到左边来缩小厨房做更衣室 剩下的再安排

  • 丶向往 2019-12-4 09:30:18

    主卧要加衣柜,二楼只有客厅加衣帽间上头这块么

求大神帮忙设计一下楼梯位置;或者帮忙设计一下房屋的平面位置(怎么合理怎么来)
拓者推荐
  • 孟也新作-七都岛640法式别墅拓者空 600㎡极简别墅
  • 【武汉站—“樱”你而来】获客实操
  • 【武汉站—“樱”你而来】户型优化
  • 【武汉站—“樱”你而来】风水
  • LSD-宁波鳳栖雲庐合院样板间
  • CCD-华润 CCBD 889㎡设计方案
  • 孟也新作-七都岛640法式别墅
  • 【WSD世尊】建发·云启玉诸
  • 苏州绿城樾庐合院样板房
  • 无间设计-上海万科中兴傲舍
  • 2025拓者年费+案例Vip会员说明!
  • 【 拓者年费--CAD图纸】
  • 【 拓者年费--户型方案】
  • 【 拓者年费--豪宅视频】
  • 【 拓者年费--灵感图库】