精华推荐
换一换
-
designerc 2019-12-7 09:33:13
童岩 发表于 2019-12-6 11:56
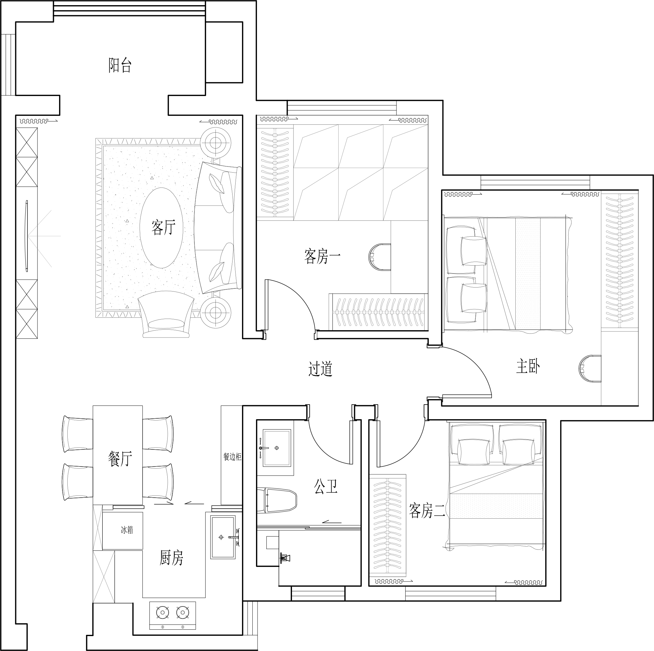
能将餐厅,卫生间,上门的房间整体向左边移动660吗,主卧不动,主卧下面的房靠墙摆150的床,如果可以这样厨 ...
餐厅那边是承重墙,想法挺好,但没办法实现,谢谢
童岩 发表于 2019-12-6 11:56 餐厅那边是承重墙,想法挺好,但没办法实现,谢谢 ![]() |
各位,你们所在的城市,做开放式厨房给通天燃气吗?