入行新手,求各路大神指导!思维不够扩散,想法不多,所以恳请大神们指导一下!

2019-12-6/ 户型方案/ 户型交流/ 只看大图 阅读模式
仅供分享不做任何商业用途,版权归原作者所有,谢谢配合。

马上注册,结交更多好友,享用更多功能,让你轻松玩转社区。

您需要 登录 才可以下载或查看,没有帐号?注册

x
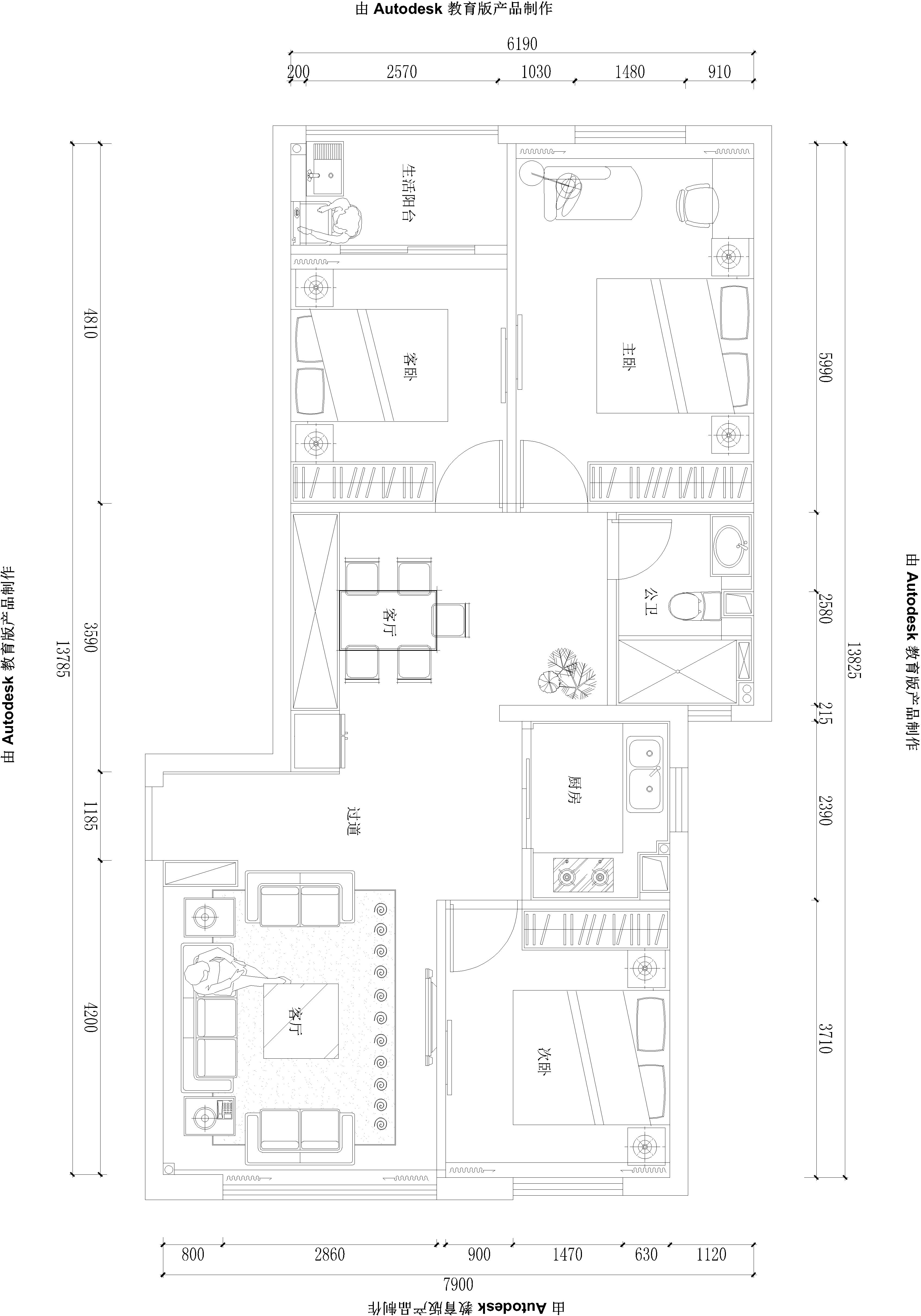
业主要求三房,其他也没多大要求,主要是想看方案再决定。。。。。。

原始结构图.jpg
平面布置图.jpg



精华推荐
换一换

发表评论4

  • 光与舒适 2019-12-6 16:17:29

    空间好浪费,起码主卧可以多一个主卫,客房那里可以多一个衣帽间,还有你这样布局,餐厅采光能力很差,阳角太多看着很不舒服

入行新手,求各路大神指导!思维不够扩散,想法不多,所以恳请大神们指导一下!
拓者推荐
  • 2026拓者 CAD户型方案 发布
  • 赛拉维:安顿生活的栖心之境
  • Atelier MKD|极简主义风格!
  • 东莞保利首铸鹭湾185样板间!
  • 【梁志天】西安曲江·九曲松间
  • 无间-上海汤臣君品合院方案
  • 君品-汤臣金桥花园项目方案
  • 无间-上海大宁中建玖上琅宸
  • HWCD-烟台洲際酒店深化方案图册
  • 琚宾新作-资兴东江湖度假酒店
  • 2025拓者年费+案例Vip会员说明!
  • 【 拓者年费--CAD图纸】
  • 【 拓者年费--户型方案】
  • 【 拓者年费--豪宅视频】
  • 【 拓者年费--灵感图库】