本帖最后由 金恪设计 于 2019-12-23 17:23 编辑
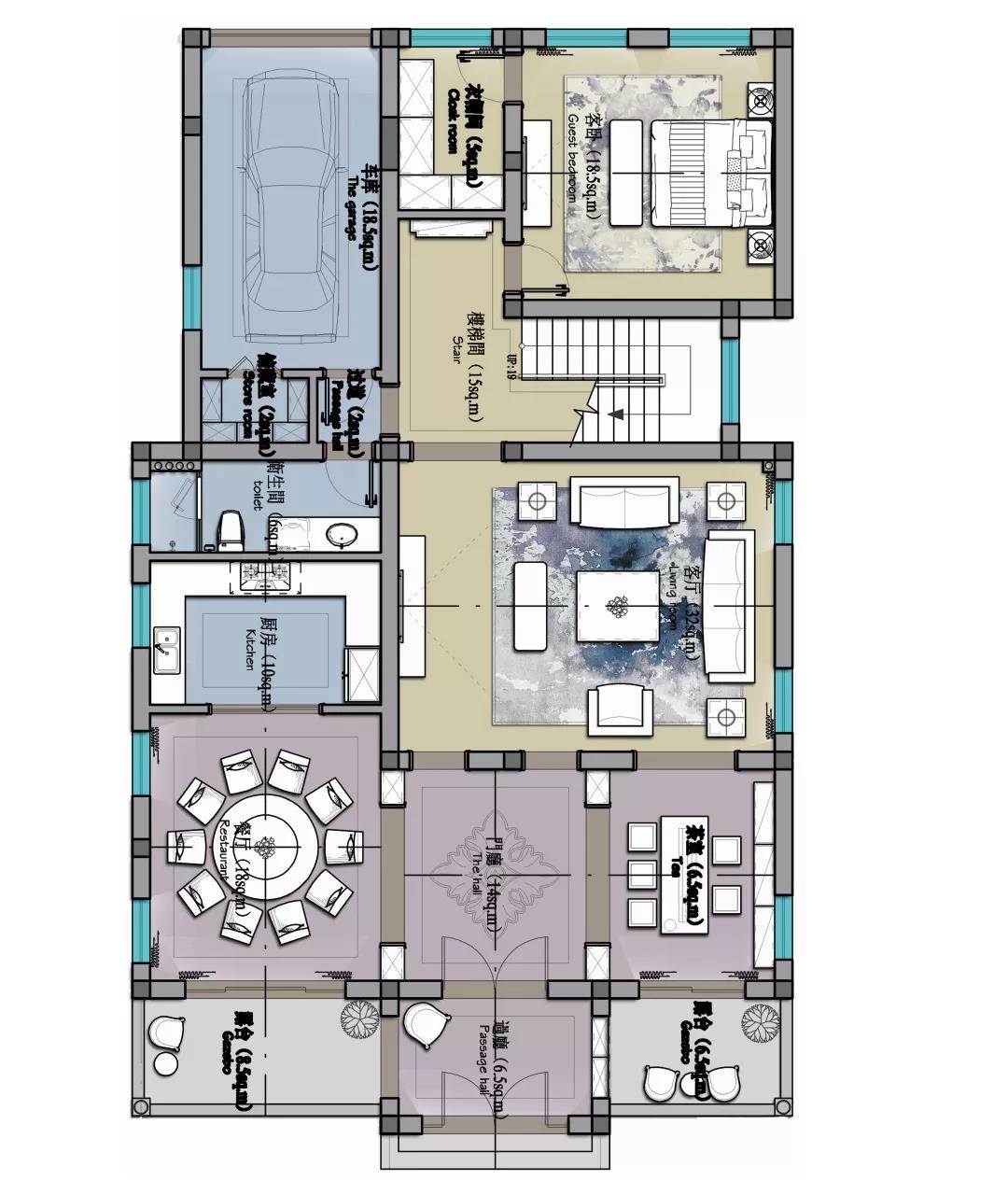
项目名称:江枫苑别墅私宅 面积:450平方米 设计风格:新中式 设计师:金恪设计 李军进 设计需求 1、重塑空间 原建筑空间格局传统单一,业主希望新家能够打破原来的空间格局,尽可能的使空间利用合理化、最大化,在新家中,能够释放、自由的生活居住。 2、重塑采光 原建筑核心生活区域较为阴暗,尤其是卧室,采光效果较差,业主希望把自然光引入室内,实现核心生活区域光线明亮、视野开阔。 3、重塑生活 李老师通过与业主的多次深入沟通,了解到业主是一家大型机械公司的老板,有非常深厚的文化底蕴,对生活品质要求很高,他希望自己的居所不仅时尚、简约、大气,而且能够承载内心深处对品质的向往与追求。 呈现效果 一 楼 金恪设计总监李军进老师在与业主充分沟通和多次交谈后,把公共生活区域规划在一楼,既利于接待客人,又便于家人之间的情感交流。
一楼平面布局图 Vestibule 门 厅
门厅像一张无言的名片,出入进退间,彰显的是主人的品位身份与生活格调。金恪设计总监李军进老师在设计中融入了东方的沉稳大气,门厅主背景墙上两边对称,统一色调的地板搭配具有现代中式韵味的吊灯。抬首是诗意盎然的云中翠松盆景,古雅之意宛如一缕清风。一头连着外面的世界,一头通往温暖的家庭,让人一进门就能感受到属于中式的静谧惬意。 Drawing room 客 厅
墨花飞作淡云浮,远山微黛笼翠影。客厅不拘泥于对华丽外表的追求,专注于温暖居家的生活体验。色彩的搭配与组合是这里的一大亮点。古韵的壁画,素雅的窗帘,地毯与茶几相得益彰,将中式风格的线条、色彩、造型等元素融入到现代的设计中,在体现空间层次感的同时,创造出符合现代生活要求的审美情调, “归家团聚”的温暖翩然入画。
Dining room 餐 厅
素雅空间跳出的一抹蓝,与客厅的地毯、茶几遥相呼应。摒弃繁冗复杂的装饰,用素雅的色调和干净利落的线条勾勒的这一方半舍,把中式装修的对称之美演绎的淋漓尽致。墙角的云中翠松,墙上的枝条出墙,餐桌上的鲜花静放,在水晶灯的映射下,一日三餐,一年四季,身边伴着温暖与爱。
Tearoom 茶 室
人生需要一种淡泊,虽无蝶来,清香依旧,谢绝繁华,回归简朴。金恪设计总监李老师在与业主多次深入交谈后发现,“君不可一日无茶”的理念深植于业主内心。于是,贴心的李老师在居室中打造出这间清新雅致的茶室。或独自细品,或三五好友对饮,从繁杂琐碎的日常生活中释放心情,沉醉在这短暂的宁静时光,看月移花影、享冬日暖阳。生活虽不能完全避开车马喧嚣,但茶人的幸福,是可以在心中修篱种菊。 二 楼 结合业主对私密空间以及功能布局的要求,把卧室、衣帽间规划在二楼,保证了空间的私密性。
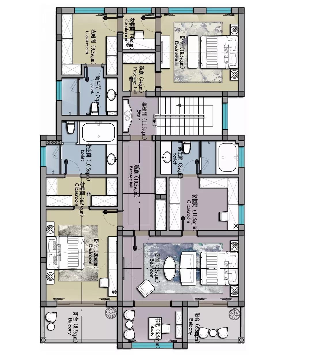
Bedroom 卧 室
墙面上的花鸟画,浅酌盎然回应春意阳光,于空间每一处,绽放自然明媚的光泽。明与暗,光与影,沙发、桌椅,体现高质感的生活细节。
结 | 语 在金恪设计师李老师的妙笔生花下 空间布局、结构实现最大化 使用面积由原来的300平扩大到450平 采光通透、自然 还开拓出了茶室、衣帽间 空间结构明确、布局合理 于无声中彰显了业主的生活品质 真正做到了“用设计造梦” 满足了业主对生活质感的追求 关于金恪设计 金恪设计是金恪集团旗下高端商业设计品牌,是专业从事高端室内设计及建筑装修装饰工程与建筑智能化系统工程的企业,企业设有研发团队,且各个系统集成已非常成熟的在各项目中运行。截止目前,公司业务除上海本土外已经发展至北京、江苏、浙江、山东、吉林、广州、深圳、新疆等外省地。
|
精华推荐
换一换




发表评论0