|
本帖最后由 双斌设计工作室 于 2020-1-23 18:16 编辑 项目地址 | Project Address:廊坊市广阳区 项目面积 | Project Area:1000㎡ 设计公司 | Design Company:双斌设计事务所 主创设计 | Design Director:刘双斌 完工日期 | Project Year:2016 项目位于廊坊市广阳区,是燕青酒店的二层餐厅,这个在廊坊开了很久的酒店,在市区无人不知,这次的改造设计,主要考虑到两个方面的原因,第一,就餐环境,10年之前装的,就餐环境和审美都已经落伍了;第二,更换菜系,这次要把之前的菜系跟换成淮阳菜,因为这个,酒店主要负责人全部去南方考察了数月之久,事实证明确实很好吃;所以这次的设计我们采用的是南方造景和园林的概念来进行整体设计,一步一景,打造江南雅致、婉约的餐厅格调,设计周期1个月,施工周期3个月~~~
▲原始结构图
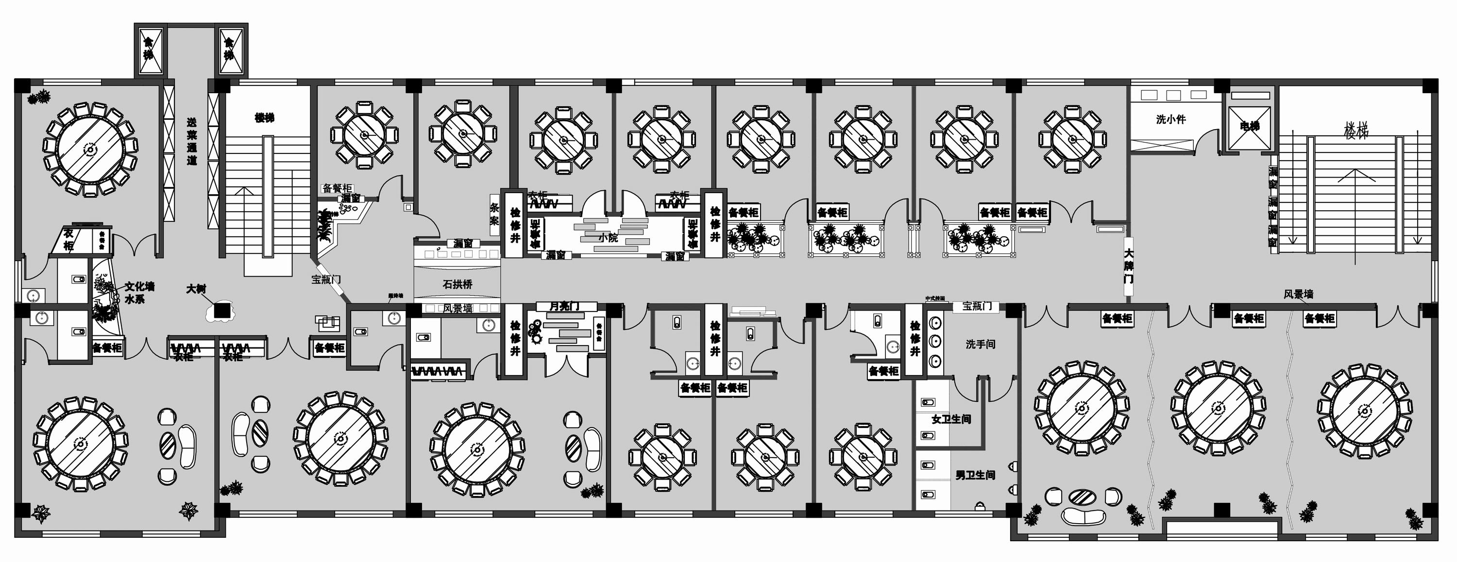
▲平面布局图
▲休息区—青砖灰瓦白墙、水墨画
▲休息区—青砖灰瓦白墙、水墨画
▲走廊造景区—牌坊
▲走廊造景区—莲花池
▲走廊造景区—窗景
▲走廊造景区—断桥
▲走廊造景区—树与影
▲小包间
▲小包间
▲小包间
▲小包间
▲大包间
▲VIP包间
▲VIP包间
▲卫生间—洗手区
▲卫生间—男厕
|
精华推荐
换一换


发表评论0