|
本帖最后由 壹夲設計 于 2020-3-7 13:28 编辑 壹夲設計—叶子 壹夲設計 我行遍世间所有的路 山水一程,风雪一更 彼时时光清浅,思绪万千 我与光阴说禅,亦与岁月品暖 喜那三寸日光的唯美 念那金色华年的温柔且长 但我惟愿如初见般 流年无恙,岁月安然 项目简介 项目地址 | 淮安·建华观园 建筑面积 |240㎡ 设计风格 | 现代轻奢 设计机构 | 壹夲設計 创意总监 | 朱涛 项目主案 | 李玉飞 配合设计 | 张涛 助理设计 | 许冰/葛庆业/王梦繁 视频制作 | 许冰 摄影机构 | HALU-谦 本案是我们一个异地纯设计项目。通过朋友的介绍,我们有幸认识了陶女士,她对这套房子充满了期望,将它托付给我们,希望我们能够好好设计一下。 这套房子是个下叠户型,一楼有个大院子,室内面积240平方,负一楼还有一个下沉式庭院,光线充足。她们夫妇带着子女和父母,一家人居住在里面,其乐融融。 家,是个温馨的字眼,是依靠,是港湾,是外出工作回来后可以舒舒服服的躺下享受的地方,是一个满满的承载爱的地方。 设计开始时千万的思绪汇集一处,突然想到我们的设计是温暖人心的,而这个家,是大家都在一起,好好生活的地方,所以只要是温暖的,幸福的,便好。 ▼一层原始结构图
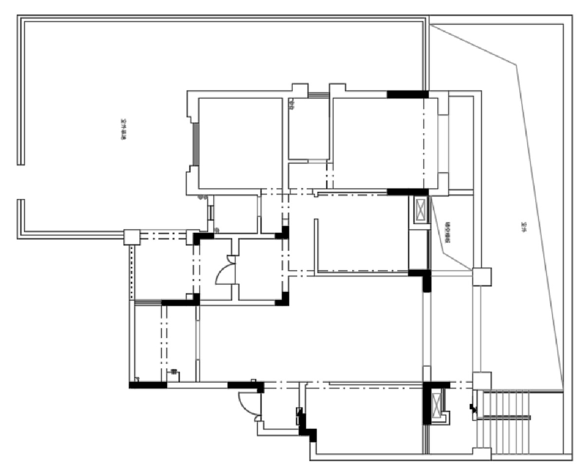
▼一楼平面布置图
▼负一楼原始户型图
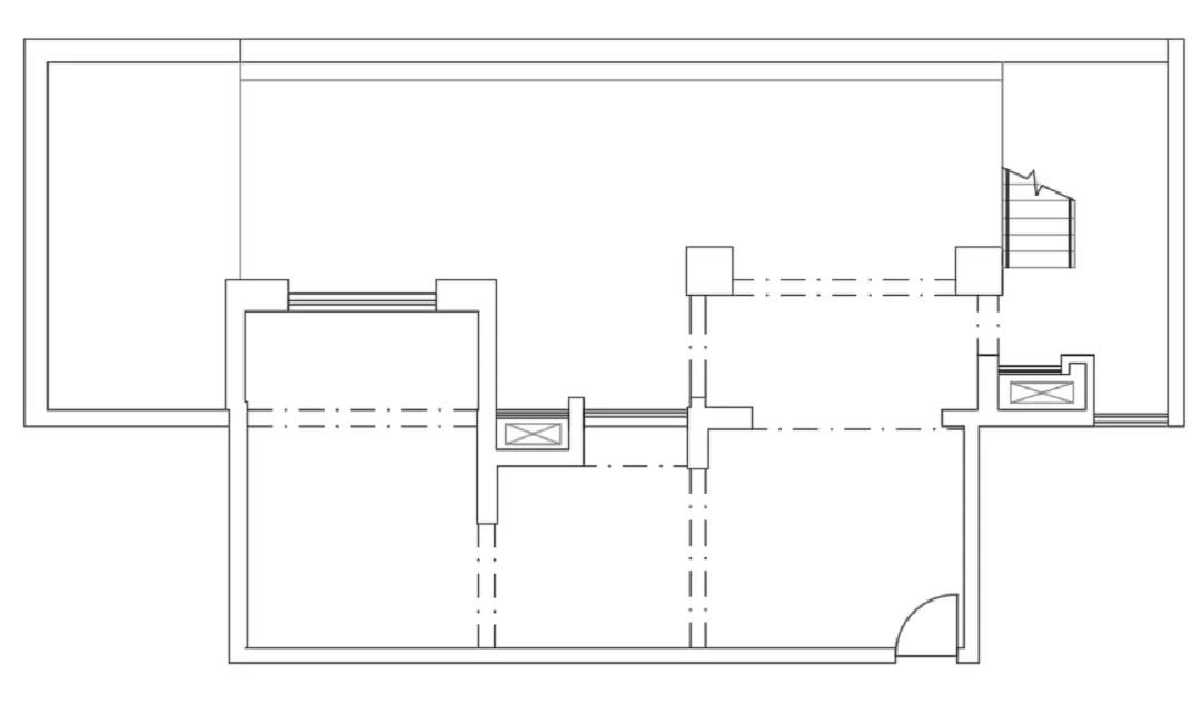
▼负一楼平面布置图
此次户型我们做了较大的改动,主要入户通道从小门厅改到院子,动向的改变使得整个室内空间更大气从容,再加上一些精致细微的设计处理,一套现代轻奢的作品便诞生了。 1:将院子处的玄关大门门洞向外扩,增加室内玄关处的面积,看起来更大方气派。 2:改变玄关处的动向,原来通过玄关后就是一面墙再转折进入客厅,比较拥堵且动线不好。通过设计我们把动线改到由玄关直接入餐厅,将原来通道口设置为金属隔断,门厅设计为八角形,使之更有入户的仪式感和包覆感。 3:将原有的封闭式厨房改成开放式厨房,在厨房与餐厅的交界处设计了吧台作为餐厨空间的自然分隔,吧台下是厨房的橱柜,既增大了储物空间,也有了休闲小酌之处。 4:改变了客厅电视背景墙处的次卧门洞方向,使得电视背景墙更完整。 5:负一楼整体改动比较大,改变了楼梯向下的动向。在楼梯下的空间设计了储藏室,后来为了方便改成了洗衣房。 6:将负一楼的一小块室外面积纳入室内变成过道,使负一楼卧室空间更加完整变成一个大套间,拥有独立的衣帽间和卫生间。 ▼玄关效果图截图
▼玄关实景照片
▼玄关效果图截图
▼玄关实景照片
此次玄关我们设计了不同之处——八角玄关,引入大理石的纹路增加质感,沉稳的黑色银白龙大理石,搭上象牙色的柜体,灰色格调的瓷砖,配上金色的装饰,强烈的视觉冲击,透着一种深沉、古朴但又让人目眩神迷。黑金色调,华丽的布置,为空间带来精致而柔和的感觉 ▼餐厅效果图截图
▼餐厅实景照片
▼餐厅效果图截图
▼餐厅实景照片
▼效果图截图
▼实景照片
餐厅的桌椅采用优雅的白色系,往往简单的色调给人感觉更为直观,白色与黑金色搭配,灰色调和其中,在呈现整体空间格调的同时,视觉上取得平衡与统一。
开放式厨房的设计使得餐厨空间更为开阔,让整体氛围更为融合,而厨房与餐厅之间的吧台仿佛是二者的桥梁,将其连接起来,原本高雅的调性中增添了些许生活的烟火气息。 ▼客厅
客厅的设计也是沿袭了黑、白、金三色搭配,金色点缀其中,点缀色的作用是画龙点睛,黑白灰的底色让金色得以突出,将轻奢的大气在沉稳中彰显而出。 ▼主卧
业主夫妇为了把更好的居住空间留给家人,便把他们自己的主卧设计在了负一楼。主卧摒弃了较为理性带有冷漠的灰色调,而采取了较为柔和的咖色为主色,这样的用色,使得其中黑、白、金三色仿佛也带上了温度,让整体的主卧空间更为舒适与惬意。蓝色的丝绒家居,触感柔软舒适,时尚又大气,好像空气中也透露出了丝丝缕缕的慵懒气息。 ▼儿童房
儿童房的设计更偏向于趣味性,男孩子的童年少不了一些英雄人物,床也是孩子喜欢的蝙蝠侠的设计,布艺质感的墙纸,灰色的选用能够大程度上的避免产生视觉疲劳,也对其他色彩上起到更大的包容性。
女儿房是满满的小公主的设计,粉粉嫩嫩的氛围更贴合小女孩的喜好。贝壳设计的公主床上当然也要摆放自己最喜欢的娃娃呀。希望她能够像小公主一样无忧无虑,幸福快乐的一直生活下去! ▼书房
位于负一楼的书房,是父母与孩子们之间一起学习娱乐的活动室,也是大家一起闲聊,玩耍的地方。简简单单的最好不过了,书桌两边大大的书柜设计也为孩子以后越来越多的书籍留足了地方。 写在最后 琉璃时光,繁华寂寂 想将那最美好的祝福 寄给流年 寄给你们每一位 如诗般美好的人 我们是一群有情怀的设计师,利益追求不是我们唯一目标,帮业主解决难题,赢得赞誉,收获作品才是我们心之所向。每个房子户型各有千秋,但生活不能将就,我们会竭尽全力打造属于每一个人的漂亮舒适家。 希望我们的客户,在我们设计的房子里,一直幸福说下去! ...END... |
精华推荐
换一换



发表评论0