18701166243
您需要 登录 才可以下载或查看,没有帐号?注册
发表评论1
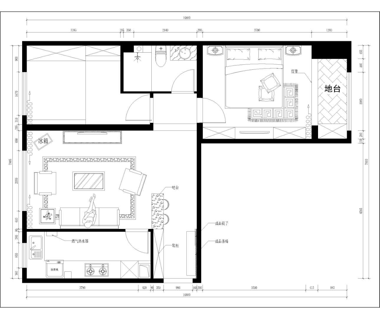
666,顺便吐槽一下原来户型的吧台
406158
工作日:早9点--晚5点
客服QQ微信:406158
关注拓者设计吧让设计更有范
666,顺便吐槽一下原来户型的吧台