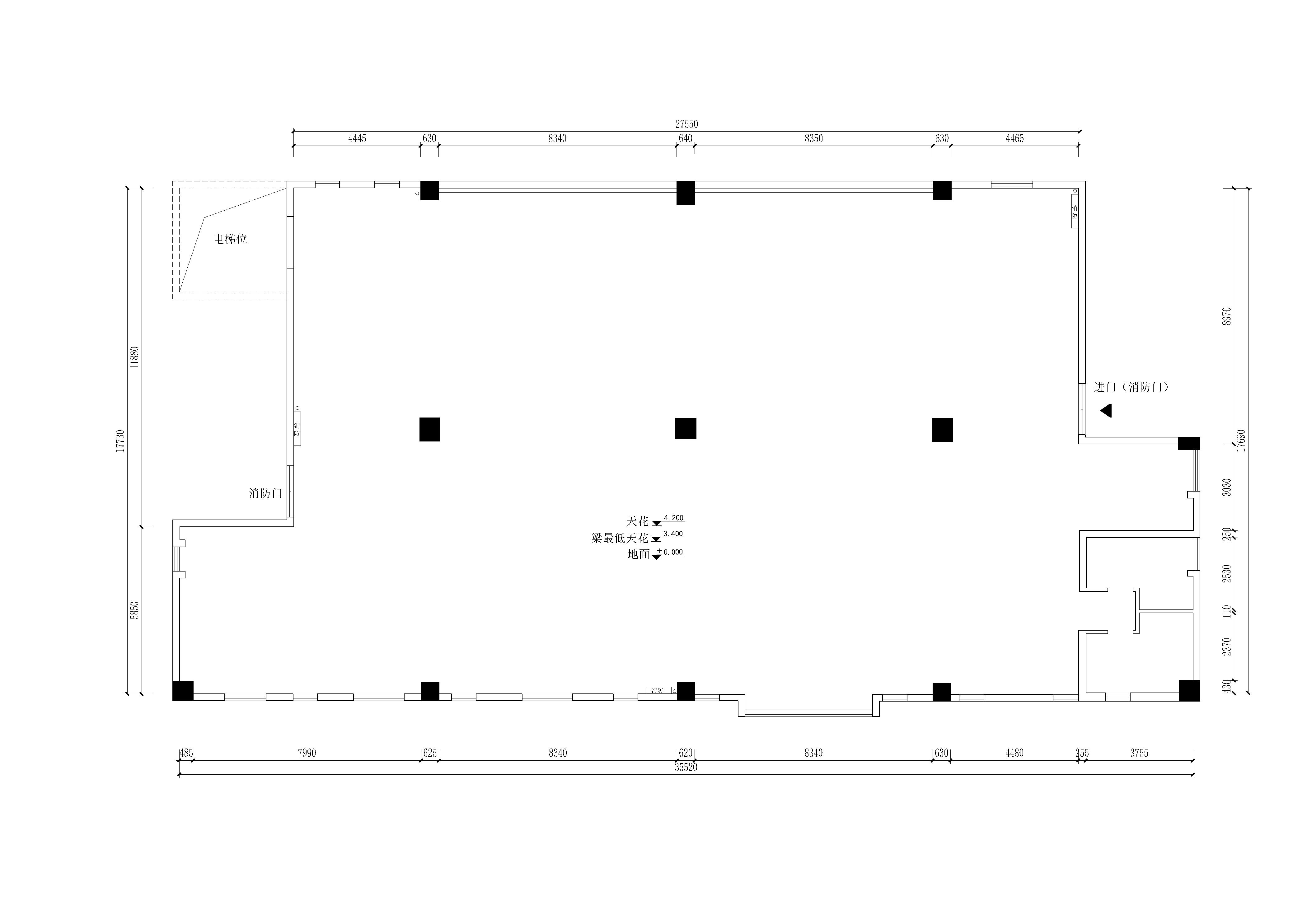
工装布局,大神指点一下。

仅供分享不做任何商业用途,版权归原作者所有,谢谢配合。

马上注册,结交更多好友,享用更多功能,让你轻松玩转社区。

您需要 登录 才可以下载或查看,没有帐号? 注册

x
本帖最后由 前途一片黑暗 于 2020-4-12 15:48 编辑

    厂房办公室,两个消防进门不改变。
    要求:一个总经理办公室,一个财务室,一个文件档案室。一个会议室。一个40-60㎡公共办公区
              一个80-100㎡研发中心。保留过道在2m左右,防火门与电梯门不能封。
办公室.jpg

 

办公室.pdf

193.22 KB, 下载次数: 2

售价: 2 金币

精华推荐
换一换

发表评论1

工装布局,大神指点一下。
拓者推荐
  • CCD--580㎡福州建总雍湾
  • 观享际 x 北谷地产
  • 会讲方案的设计师,行走的印钞机
  • 郝泽伟设计工作室 | 《木朴》
  • 【CCD+SRD】苏州·双湖玫瑰园
  • CCD-华润 CCBD 889㎡设计方案
  • 【召禾设计]天际江景超大平层方案
  • 【WSD世尊】建发·云启玉诸
  • CCD-华润玺宸上院中叠样板间
  • CCD-武汉绿城外滩玫瑰园别墅
  • 2025拓者年费+案例Vip会员说明!
  • 【 拓者年费--CAD图纸】
  • 【 拓者年费--户型方案】
  • 【 拓者年费--豪宅视频】
  • 【 拓者年费--灵感图库】