|
▼ “少”不是空白而是精简 ▼ “多”不是拥挤而是完美
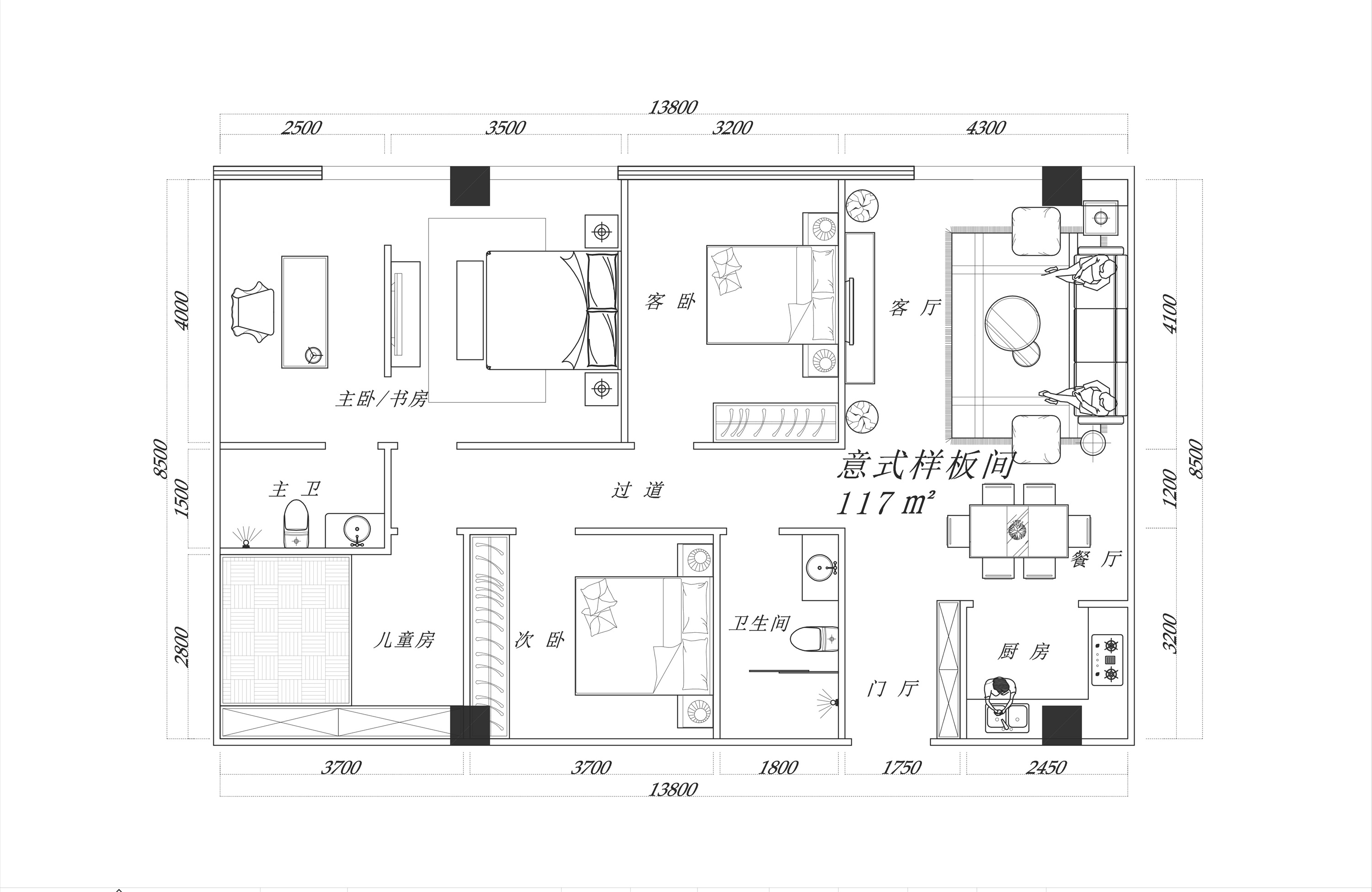
▲ 该平面方案是客户展厅设计,直接分割出了一个方方正正的家装样板间。120㎡的面积,分割出了一个三房俩厅的空间,客户来展厅参观时,可以很好的看到家装落地的实景图。 ▼ 空间展示/Space display ▼ 我们选择了集成墙板,石材,金属线条等材质的搭配组合,通过硬装的构造,来提升整个空间的层次和视觉饱满度;同时用隐形灯带,金属踢脚线,整体造型柜体等细节,以小见大,用“减而藏”的设计方式,满足了客户展厅个性化的需求,让生活空间回归原本的简单美好。
▲ 门厅/Lobby ▲ 摈弃繁复的装饰,设计师以简洁利落的现代设计手法,为空间注入平静而温馨的生活腔调。
▲ 客厅/A living room ▲ 宁静优雅的孔雀蓝将整个空间串联起来,经过不同材质的区分后,既点亮了整个空间,又使空间的层次更加的丰富,配色和谐、舒缓,令人赏心悦目。
▲ 以胡桃木色墙板和孔雀蓝布艺墙板搭配,设计出精致的墙面造型,并配合金属线条,层次感丰富,视觉饱满,更为家带来优雅气质。
▲ 客卫/TOILET ▲ 卫生间地面采用花砖铺贴,墙板选择了爵士白的瓷砖,搭配金色边框椭圆化妆镜,非常精致。
▲ 主卧/Master bedroom ▲ 主卧的配色倾向于闲适与放松,低饱和度的中性色调,以简单的几何图形作为装饰,采用了当代比较流行的无主灯设计,它符合了当下年轻人对于品味生活的追求,以简洁、低调而不乏品质的设计形式,使用了金属质感的装饰点缀,将整体空间打造的特别精致。
▲ 书房/Study ▲ 书房是与主卧相连接的,中间采用金属隔断进行分割俩个空间,满足了当代白领的需求,整体非常舒适。
▲ 主卫 / TOILET
▲ 次卧/Supine position ▲ 次卧同样以低饱和度色彩为主,注重简单舒适,灯具的选择更加多样化,金属壁饰点缀墙面打造出极简轻奢的高雅生活风,有生活,有温度。
▲ 儿童房/Children's room ▲ 采用了菱格纹理的墙板去做铺装,搭配六边形装饰挂画,大方高级的配色与温柔细腻的质感所构建出的时尚调性,自然系主题带来不一样的俏皮气息,书写了对自然的热爱。 项目名称:展厅设计-家装区 项目面积:120㎡ 主创团队:墙板设计家 项目地点:中国·武汉 联系方式:15574958221 |
精华推荐
换一换



高度达不到欣赏这种美