|
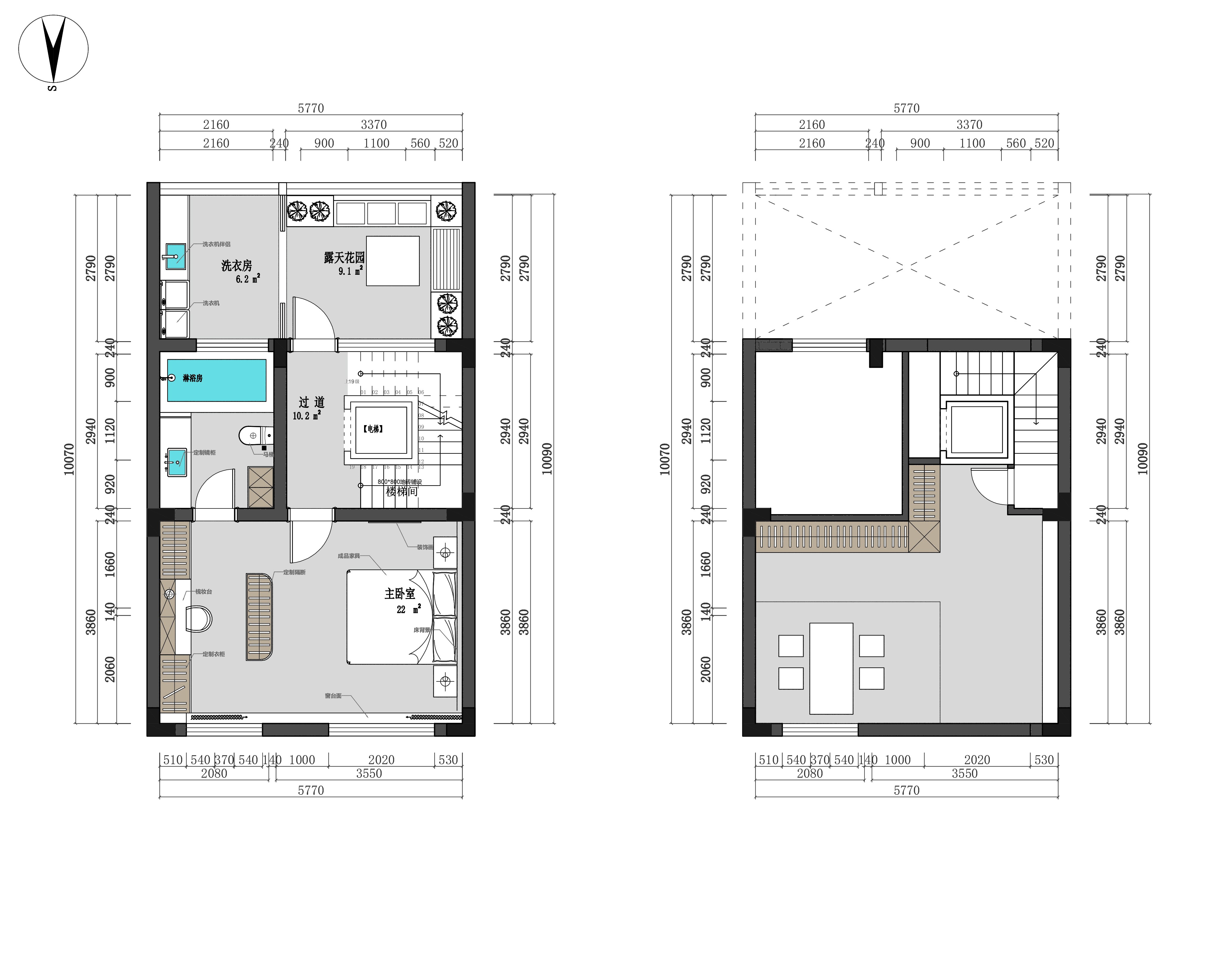
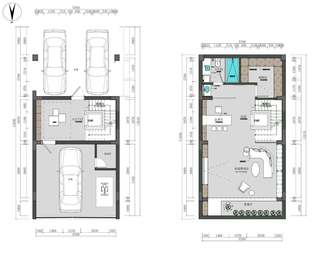
本帖最后由 青花设计-Design 于 2020-6-3 15:42 编辑 “我在各种悲喜交集处,能做的只是长途跋涉的归真返璞。” ——木心 项目地标 | 江苏 • 无锡项目名称 | 路劲 • 蠡湖院子 项目面积 | 300m2 项目性质 | 住宅空间 设计风格 | 港式 设计机构 | 鼎石设计 设计总监 | 张新华 质感/审美/态度 细节筑就空间品质 Texture/aesthetic/attitude Details make space quality ▲负二/一楼平面布置图 ▲ 一/二楼平面布置图
▲三/阁楼平面布置图 论到对于香港最深刻的记忆, 大多数人的第一印象永远是电影和歌曲。 这些记忆如同潮水般涌来, 直击心灵深处。 它是尘封在记忆里的相册, 静静等待着你掀开的瞬间…… 港式家居设计多以 金属色和线条感 营造金碧辉煌的豪华感, 简单而不失时尚。 自然的木质色调 使居室充满休闲的氛围, 是快节奏都市生活的休恬的港湾。 在港式的反叛个性和精致奢华中, 散发出的是泰然享受生活的自信优雅, 无所谓刻意低调。 兼具中西的审美视觉, 将怀旧的港式情怀 与现代生活需求相结合, 游弋其间,此唱彼和。 线条感—— 在港式风格中特别明显, 线条有的柔美雅致, 有的遒劲而富于节奏感, 整个立体形式都与 有条不紊的、 有节奏的曲线融为一体。 客厅不同角度的线条和物品, 组成新的画面, 多处细节设计, 营造富于变化的住宅情景。 空间处理方面 强调室内空间宽敞、 内外通透。 当一缕清早的阳光洒入室内, 窗外的绿植映射出欣欣向荣的生命力量, 预示新的一天即将开始。 ▽▽▽▽▽▽设计师风采 Designer ▲张新华——鼎石设计•一中心设计总监 •毕业院校:南京建筑工程学院/进修清华大学美术学院 • 从业经验:12年 •行业资质: CIDA(中国室内装饰协会)国家室内注册设计师 高级室内配饰创意师 •荣获奖项: “2014年江苏省室内设计大赛”金奖 “2015年筑巢奖”优秀设计师称号 “2017-2018中国室内设计50强”杰出青年设计师称号 “2018-2019华鼎奖”杰出设计师 •设计理念: 设计的价值不在于对奢华建材的堆砌,而在于无可取代的设计内涵以及设计精神! •代表作品: (家装类):无锡太湖锦绣园独栋/700平、无锡香樟园合院/800平、江阴别墅/1000平、无锡满堂苑/600平、无锡凤鸣山庄/500平、江阴山湾水榭1000平、无锡新力帝泊湾300平、无锡雅居乐300平、无锡世贸首府250平…… (工装类):无锡东站格林豪泰样板间、无锡深港国际会所、无锡谢帅工程办公楼、无锡惠山公园茶室…… 家之所向,心之所指。一个空间,不仅仅是一个完美的建筑,一副精美的画作,当梦想在这里理性绽放的时候,这里变成一个家,一个允许想象无边,允许用心品味的地方。
|
精华推荐
换一换


?????图呢