|
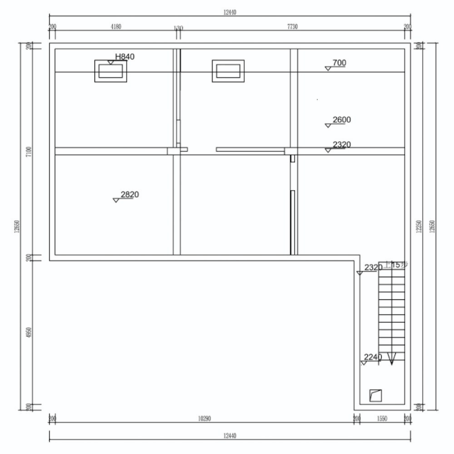
本帖最后由 第五宅设计 于 2020-7-8 17:44 编辑 项目地址Project address:泰安鲁商国际社区 项目面积Project area:300㎡ 主案设计Main Case Design:李俊霞 参与设计Participation in design:王佳钰 木言 软装设计Soft decoration design:李俊霞 园林景观Landscape:木言、李俊霞 全案设计施工Design and construction:第五宅空间设计有限公司 设计主材Design Master:石材、全屋实木定制墙板、硬包、定制家具 实景拍摄Live action:苏州晟苏建筑摄影 △负一层平面图 △一层平面图
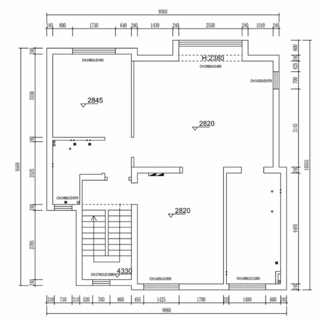
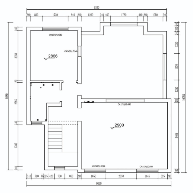
△二层平面图 △三层平面图 “清欢”是什么呢? 至于当下的我,确实无法究其深度, 只能浅尝辄止。 清欢, 是剥落世俗外表之后的纯粹, 放下对物质的偏执虚妄, 简单的、平静的、疏淡的, 热爱着生活中的自然美好, 春花秋月,夏蝉冬雪,蓼茸蒿笋, 在我的小千世界里生根发芽, 任我居所。
△ 从客厅到餐厅, 素雅的原色木材,极简的线条,精致的格栅, 演绎出现代与中式的碰撞。 每天在此地柴米油盐诗酒花的交融, 有孩童,有瓜果, 足以撑起一个盛夏傍晚的巷子口。 △玄关 未经修饰的原生态木材, 是一种极具生命力的材质。 推开门, 春风拂面, 让你忘却尘世的熙熙攘攘。
△ 会客区 狗吠深巷中,鸡鸣桑树颠。 户庭无尘杂,虚室有余闲。 久在樊笼里,复得返自然。 连廊过厅 清风、皓月、流水、虫鸣, 温柔了岁月,明媚了时光。主卧 极具张力的线条美, 优雅自如的新中式背景墙, 诗和远方仿佛总是那么遥不可及, 于是我们在这大千世界的某个角落, 给自己创造出一片能够慰藉心灵的世界。 静坐书房, 取一本书,感悟明月,品读清泉。 手持一杯清盏, 浸着沉古的文字, 伴着袅袅茶烟, 淡看人生起落, 笑读宦海沉浮, 淡泊而宁静, 静雅而清悠。 卫浴洗漱间 截然不同的设计风格及元素, 给予了本案更多的想象空间。 什么是设计? 不同人的眼中有一千个哈姆雷特, 设计也是如此。 事实上, 能够打动你的作品, 就是好的设计。 我爱此设计,是因为它对生活的超逸,不追求奢靡的物质,只讲究心灵的品味。返璞归真,让生命回归最舒适的状态。 |




发表评论0