爱马仕橙样板间设计

仅供分享不做任何商业用途,版权归原作者所有,谢谢配合。

马上注册,结交更多好友,享用更多功能,让你轻松玩转社区。

您需要 登录 才可以下载或查看,没有帐号? 注册

x
项目名称|天鹅湖壹号样板间设计设计范围|软装设计实施  
项目地点|新疆库尔勒
项目时间|2020年7月  
项目面积|125㎡
设计机构| 朗艺装饰设计责任有限公司
主案设计师| 姜亚洲

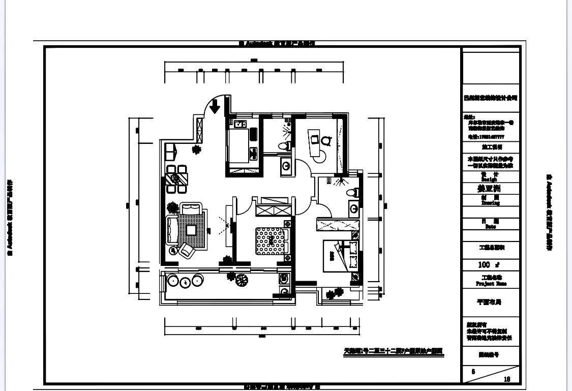
平面图



微信图片_2020071810300710.jpg

爱马仕堪称奢侈品中的贵族代表着潮流时尚


爱马仕在居室中运用将奢华氛围带入符合人们对现代生活的审美需求其艳丽张扬经典时尚成为永恒不变的奢侈品味


这间爱马仕橙与高级灰组合时将自己的美妙发挥到极致,客厅背景将空间平立面划分家居配置虽简约却依然彰显着时尚的格调 细节对比令空间凝聚艺术感爆发 强烈的现代轻奢风格中具有代表性的金色座椅床十分醒目让整个空间又充满时尚的动感

微信图片_202007181030079.jpg
该项目由巴州朗艺装设计担纲,设计师以鲜明、大胆、创新的现代手法演绎传统、优雅的爱马仕品牌精髓,并以完美的细节、装饰做点缀,成就充盈于心的高贵。

朗艺装饰设计秉承执匠心 造美家的设计理念,从整体到细节,为客户量身打的,不仅是一个舒适的居住空间,更是一件独特的私属藏品、一种尊贵的身份象征。

微信图片_202007181030076.jpg

步入客厅,一面爱马仕橙色的背景墙映入眼帘,设计师以爱马仕主题装饰画悬挂中间,彰显视觉冲击力的同时,表达了一种优雅尊贵的空间美学。


微信图片_202007181030073 - 副本.jpg

餐厅的餐边柜、艺术画、现代灯具和艺术陈设品完美融合,色彩上与客厅色彩形成巧妙呼应,色调不张扬,内敛和雅致。


微信图片_20200718103007.jpg


卫生间洗手台的金属配饰和玻璃镜面等不同材质相互碰撞,蓝色作为配色加以点缀,以简洁的线条勾勒出舒适生活的品质感。


微信图片_202007181030071 - 副本.jpg

阳台地板安道尔棕条纹,凌乱之中却蕴含美感;茶几、灯具、配饰等地方都有香槟金的涂抹,作为配色丰富且平衡了整个空间的视觉效果。

微信图片_202007181030078.jpg



设计感悟:对于年轻一族来说,豪奢不是最重要的,温暖、轻松、愉悦、充满生活气息的品质生活才是他们真正的需求所在。比起在视觉层面的迎合,适宜的大小、满足日常居住的功能性、舒适的空间氛围更能打动他们~




微信图片_20200629111729.jpg
微信图片_202007181030077.jpg
微信图片_202007181030075.jpg
微信图片_202007181030074.jpg
微信图片_202007181030073.jpg
微信图片_202007181030072.jpg
微信图片_202007181030072 - 副本.jpg
微信图片_202007181030071.jpg
微信图片_20200718103007 - 副本.jpg
微信图片_202007181030079.jpg
微信图片_202007181030076.jpg
微信图片_202007181030075.jpg

 

精华推荐
换一换

发表评论0

爱马仕橙样板间设计
拓者推荐
  • 朴悦-华润小径湾-悦海白兰墅
  • 琚宾-杭州保亿观云钱塘城
  • 召禾设计-上海汤臣君品
  • CCD-华润置地南通澐璟
  • HBA&DAS-中海江南玖序
  • CCD-华润 CCBD 889㎡设计方案
  • 【召禾设计]天际江景超大平层方案
  • 【WSD世尊】建发·云启玉诸
  • CCD-华润玺宸上院中叠样板间
  • CCD-武汉绿城外滩玫瑰园别墅
  • 2025拓者年费+案例Vip会员说明!
  • 【 拓者年费--CAD图纸】
  • 【 拓者年费--户型方案】
  • 【 拓者年费--豪宅视频】
  • 【 拓者年费--灵感图库】