BYSJ_001
您需要 登录 才可以下载或查看,没有帐号?注册
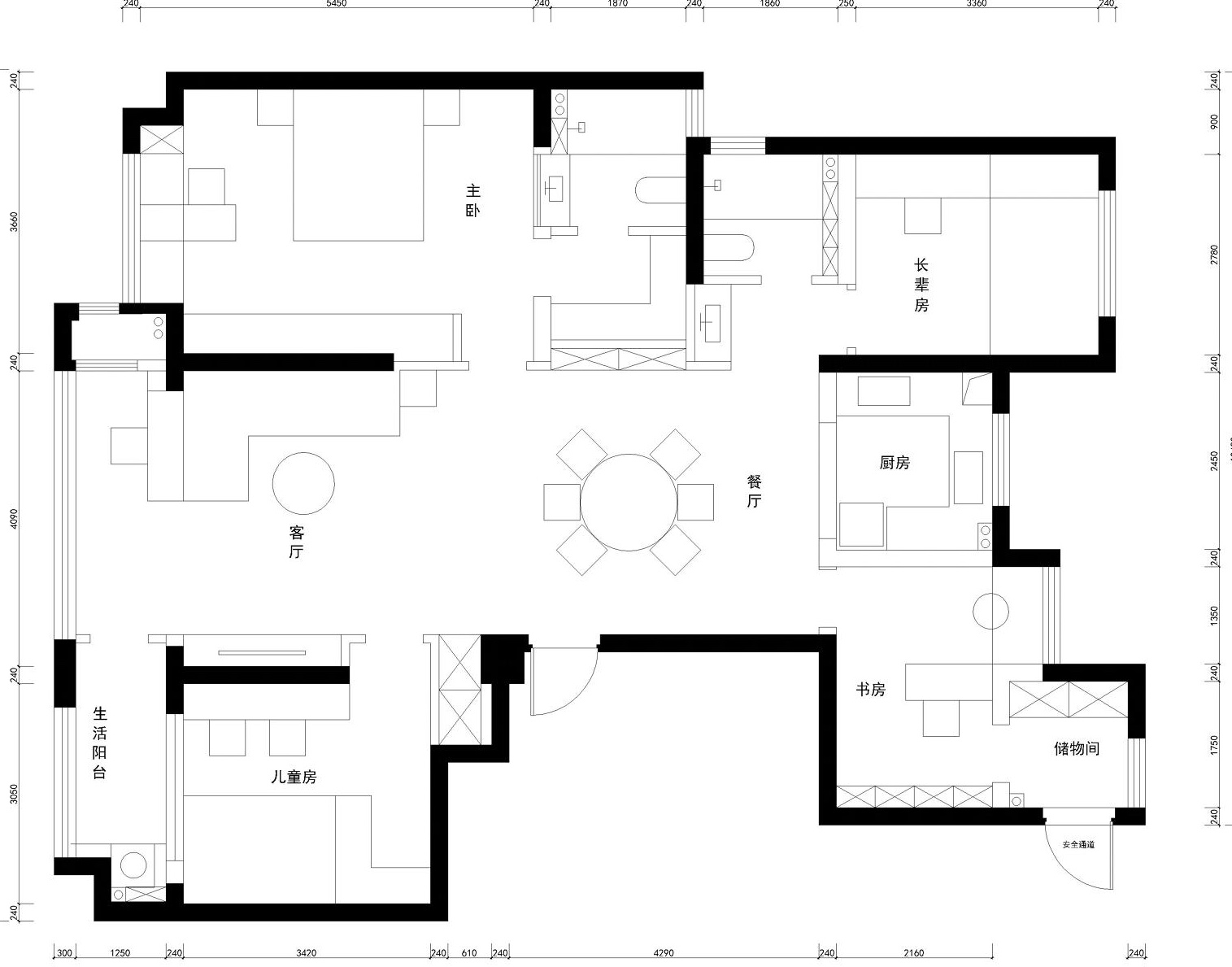
优化后的设计方案
一般设计师方案
发表评论2
更多户型交流分享,进主页咨询, 一起探讨研究
依然很棒·····
406158
工作日:早9点--晚5点
客服QQ微信:406158
关注拓者设计吧让设计更有范
更多户型交流分享,进主页咨询, 一起探讨研究