求助、求助、求助2020年最鸡肋最难改户型,求大佬出手

2020-7-28/ 户型方案/ 户型交流/ 只看大图 阅读模式
仅供分享不做任何商业用途,版权归原作者所有,谢谢配合。

马上注册,结交更多好友,享用更多功能,让你轻松玩转社区。

您需要 登录 才可以下载或查看,没有帐号?注册

x
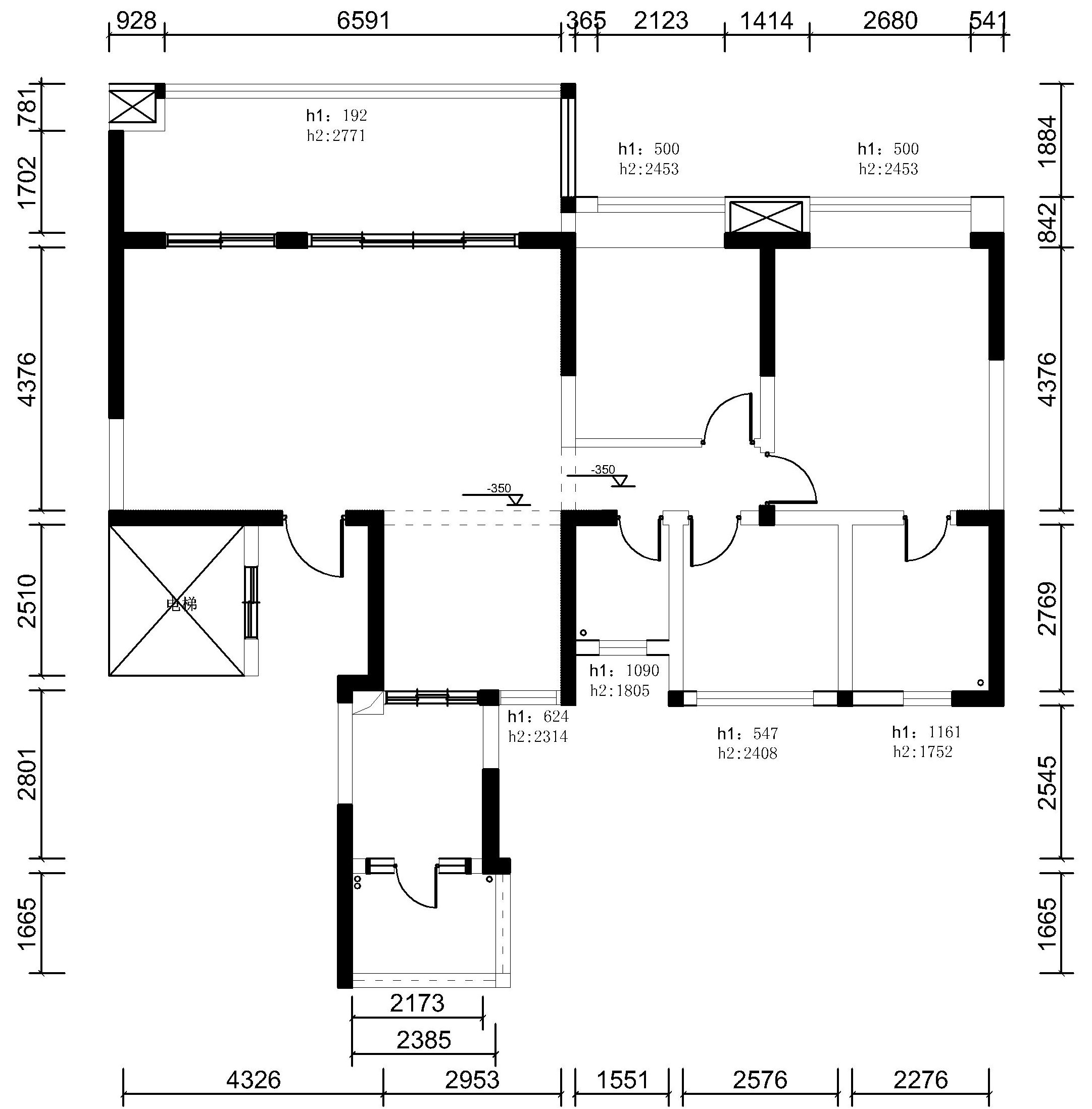
一个楼盘的楼王,甲方爸爸设计的大平层,结果现在烂手里了,销售不好,想通过设计提升销量,客户群体就是改善型住房,这套房子在小县城需要100万左右。鸡肋的房型,望大佬出手相救。

原始结构图

原始结构图

 

精华推荐
换一换

发表评论1

求助、求助、求助2020年最鸡肋最难改户型,求大佬出手
拓者推荐
  • 明星杨采钰的家丨召禾设计
  • 洣图设计 | 国锐白玉茗艺墅!
  • 收纳设计【直播 1月29-31日】
  • 璞辉设计 | 重塑家的软装哲学
  • 柒筑设计|265㎡瓯江之畔
  • 无间-上海汤臣君品合院方案
  • 君品-汤臣金桥花园项目方案
  • 召禾设计-顶级私人豪宅方案
  • HWCD-苏州吴中区280合院
  • 召禾设计-绿城潮鸣东方
  • 2025拓者年费+案例Vip会员说明!
  • 【 拓者年费--CAD图纸】
  • 【 拓者年费--户型方案】
  • 【 拓者年费--豪宅视频】
  • 【 拓者年费--灵感图库】