西宁市中海河山郡185平方

2020-7-30/ 户型方案/ 户型交流/ 只看大图 阅读模式
仅供分享不做任何商业用途,版权归原作者所有,谢谢配合。

马上注册,结交更多好友,享用更多功能,让你轻松玩转社区。

您需要 登录 才可以下载或查看,没有帐号?注册

x
越简洁越精致

原始户型图

原始户型图

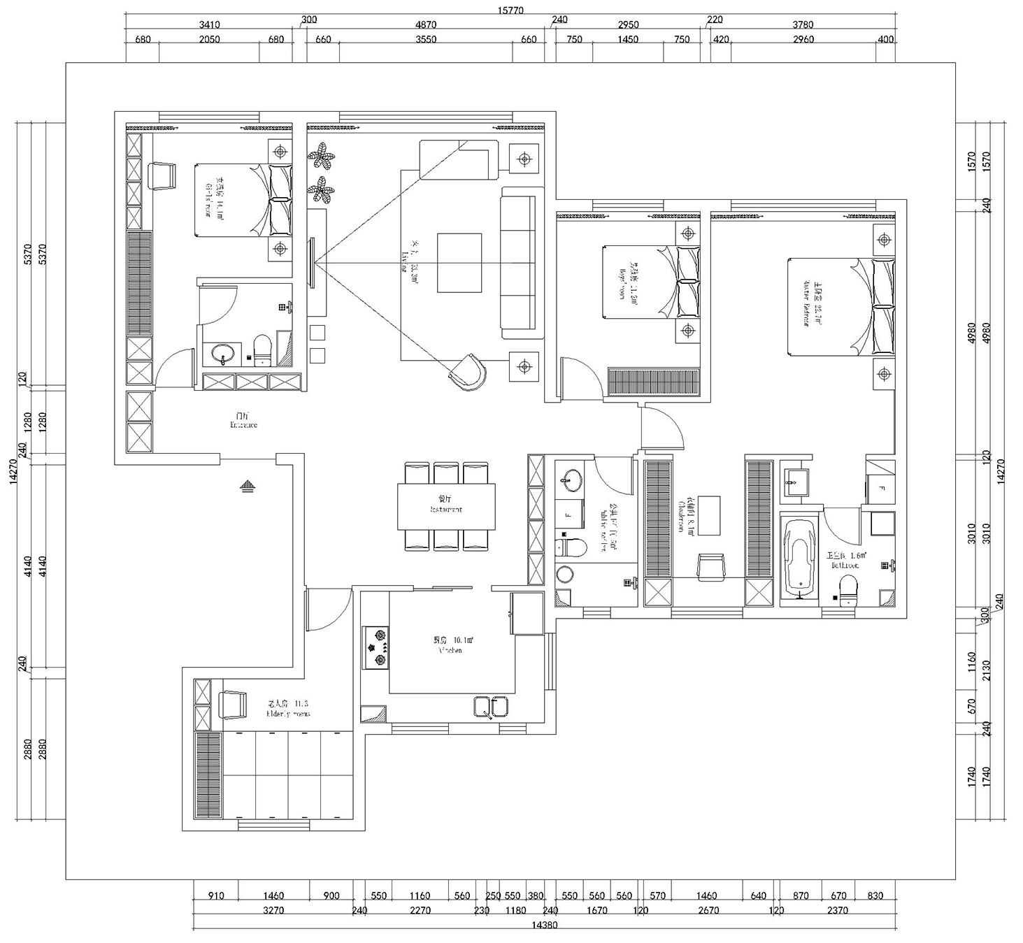
平面布置一

平面布置一

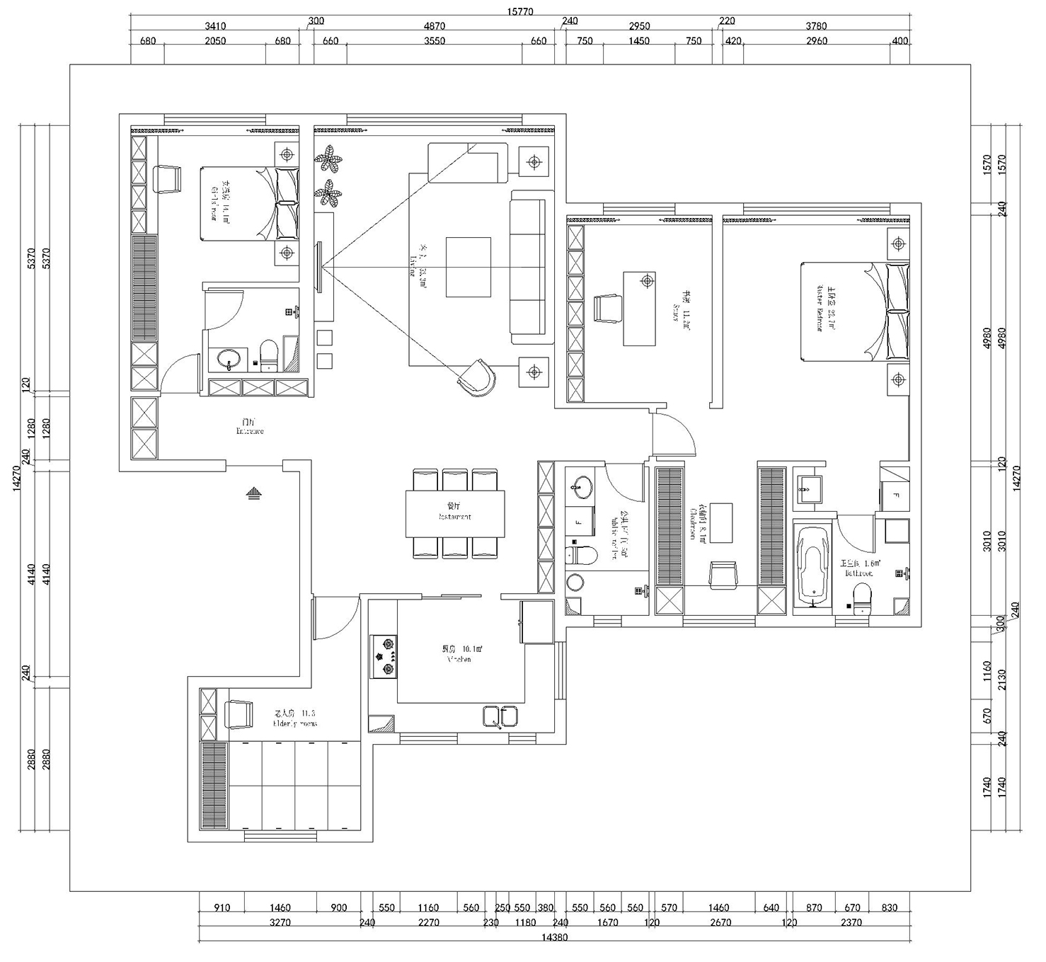
平面布置二

平面布置二

 

标签: 方案讨论
精华推荐
换一换

发表评论0

西宁市中海河山郡185平方
拓者推荐
  • 明星杨采钰的家丨召禾设计
  • 洣图设计 | 国锐白玉茗艺墅!
  • 收纳设计【直播 1月29-31日】
  • 璞辉设计 | 重塑家的软装哲学
  • 柒筑设计|265㎡瓯江之畔
  • 无间-上海汤臣君品合院方案
  • 君品-汤臣金桥花园项目方案
  • 召禾设计-顶级私人豪宅方案
  • HWCD-苏州吴中区280合院
  • 召禾设计-绿城潮鸣东方
  • 2025拓者年费+案例Vip会员说明!
  • 【 拓者年费--CAD图纸】
  • 【 拓者年费--户型方案】
  • 【 拓者年费--豪宅视频】
  • 【 拓者年费--灵感图库】