|
本帖最后由 ZOU825487456 于 2020-8-21 11:19 编辑 玄关
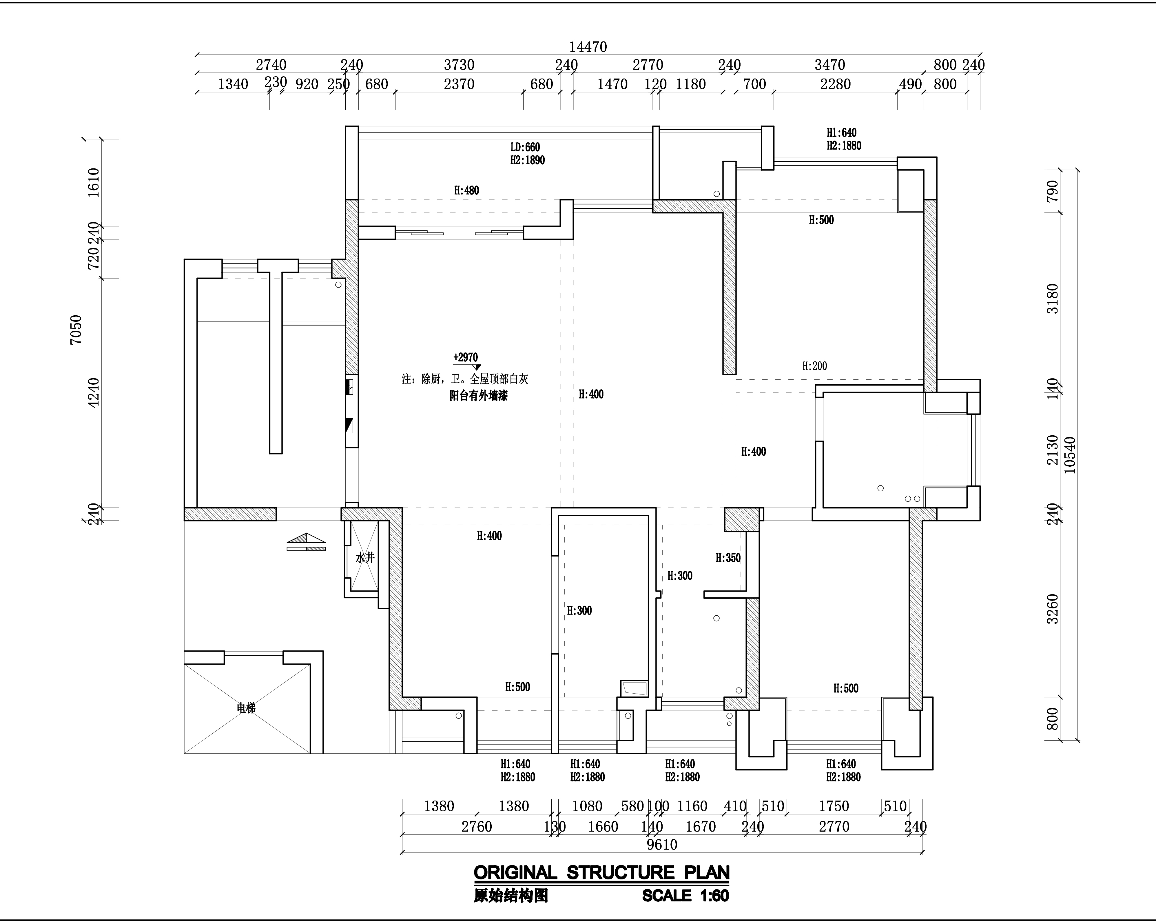
项目概况 设计公司 |Design Company:赣州艺智装饰设计 设计主创 |Design Director:唐 星 项目地址 |Project Address :嘉福·未来城 项目面积 |Project Area :140㎡ 装修主材: 抛釉砖、复合木地板、大理石、不锈钢、 原始结构 原始图
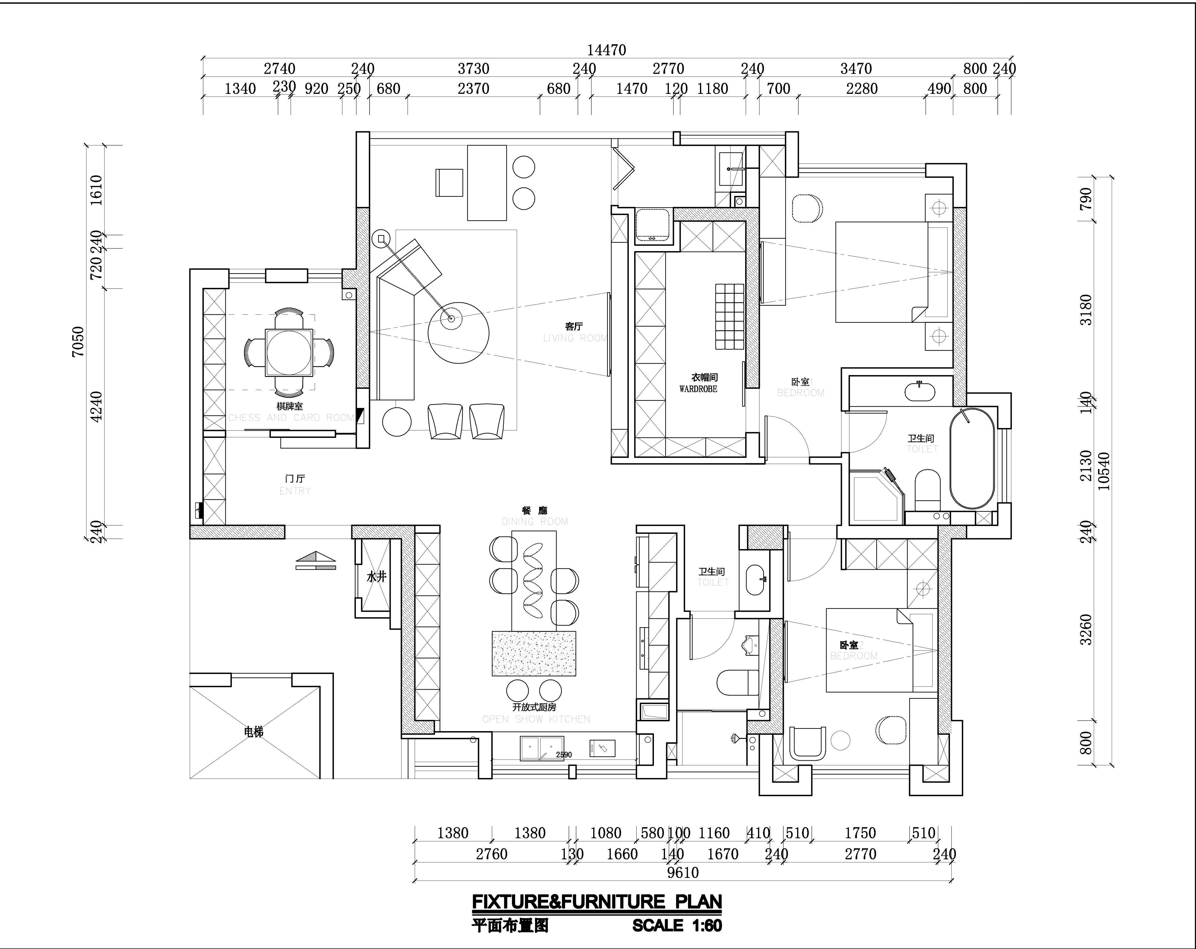
平面布置图 平面图
设计说明 现代简约风格是化繁为简,在简单中求艺术,简约而不简单。简洁和实用是现代简约风格的两个基本特点。 现代人生活节奏快,面临着各种生活和工作的压力,渐渐厌倦了呆板无生气的家居布局,渴望在家中找到一种温馨、自由自在、毫无拘束的感觉,使自己能够从繁忙的工作,固定的生活模式中彻底解放出来,现代简约就是一个不错的选择:简约家居、低碳生活。 客厅1
客厅2
客厅:在一个家庭中,客厅是连接内外和沟通客主情感的主要场所,利用频率较高,所以在空间上也相对比较大,而客厅和南向的景观阳台合并,增加了客厅内空气的流通和采光率,另外确保了在客厅内就可以将阳台外的美丽风景尽收眼底,不但方便了来客的观光,而且大大增加了居住的舒适度。 卧室
现代简约设计搭配大胆颜色及材质变化,使室内空间环境氛围营造出独特的品味。公共使用空间相互连结,穿透和延伸,使彼此之间有了多样性质的解读。 主卧室
主卧室: 卧室是休息的地方,除了提供易于安眠的柔和的光源外,更重要的,是要以灯光的布置来缓解白天的生活压力,卧室的照明应以柔和为主。本案的卧室的照明可分为照亮整个室内的天花板灯以及床灯。卧室的色彩以暖色为主,床的摆放也和整个空间结合的很好,且朝南的设计,不仅保障了冬暖夏凉这一明显优点,同时也保证了房间内空气的流 |
精华推荐
换一换


平面做的很漂亮 强!!