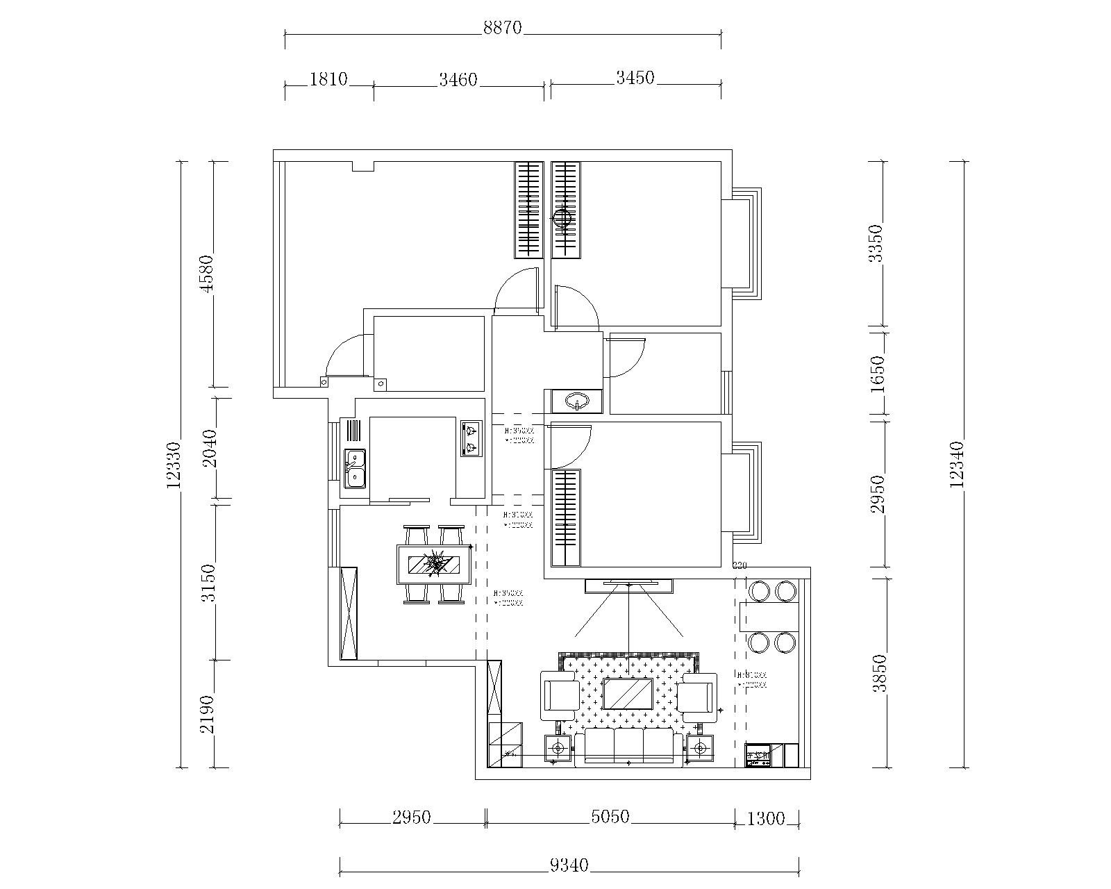
急急,合适发红包,自己的房子开工了,餐厅的吊顶不知道怎么做,有根横梁,又不居中

2020-9-26/ 户型方案/ 户型交流/ 只看大图 阅读模式
仅供分享不做任何商业用途,版权归原作者所有,谢谢配合。

马上注册,结交更多好友,享用更多功能,让你轻松玩转社区。

您需要 登录 才可以下载或查看,没有帐号?注册

x
九龙印象-Mod3.jpg 梁是350.,想做双眼皮吊顶
精华推荐
换一换

发表评论3

急急,合适发红包,自己的房子开工了,餐厅的吊顶不知道怎么做,有根横梁,又不居中
拓者推荐
  • 2025拓者年费+案例Vip会员说明!
  • 【杭州站】户型优化总监内训课
  • 【杭州站】三平台获客实操训练营
  • 【杭州站】风水布局与设计必修课
  • 【杭州站】全案设计&落地管理
  • 唐忠汉-阳光城象屿登云湖别墅
  • CCD-蓝城·七星潮鸣800户型
  • 唐忠汉-阳光城象屿·登云湖
  • 琚宾设计-绿城凤栖逸庐
  • 【 2025最新款CAD设计图库 】
  • 2025拓者年费+案例Vip会员说明!
  • 【 拓者年费--CAD图纸】
  • 【 拓者年费--户型方案】
  • 【 拓者年费--豪宅视频】
  • 【 拓者年费--灵感图库】