新手报到 哪个大神给瞧瞧 被客户整蒙了

2020-10-1/ 户型方案/ 户型交流/ 只看大图 阅读模式
仅供分享不做任何商业用途,版权归原作者所有,谢谢配合。

马上注册,结交更多好友,享用更多功能,让你轻松玩转社区。

您需要 登录 才可以下载或查看,没有帐号?注册

x
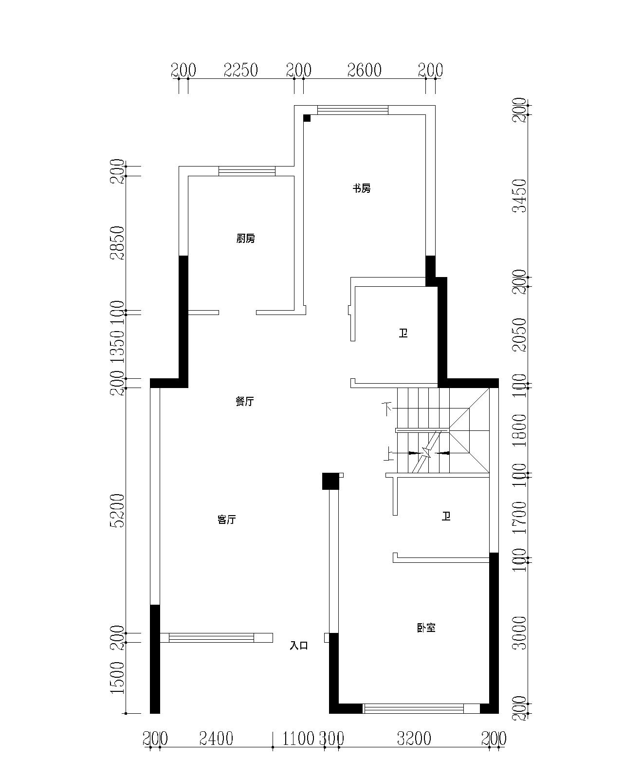
客户要求:
1.要加一部电梯
2.一层要有打乒乓球的地方,厨房要变大
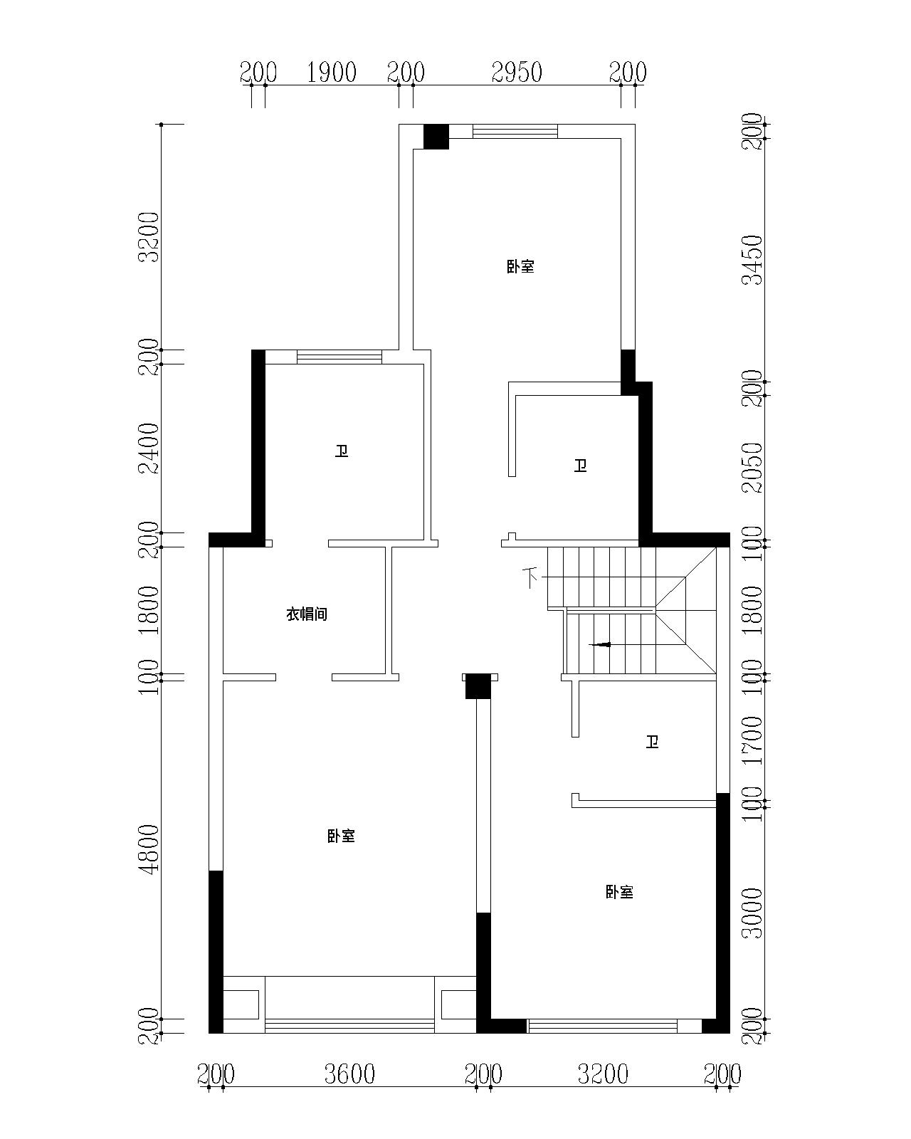
3.二层只要两间卧室
4,地下室要有影音间 水吧
另外请教下 地下室集水井干嘛用的 可以填上吗

一层

一层

二层

二层

地下室

地下室

1

1

2

2

 

精华推荐
换一换

发表评论2

新手报到 哪个大神给瞧瞧 被客户整蒙了
拓者推荐
  • 2026拓者 CAD户型方案 发布
  • 赛拉维:安顿生活的栖心之境
  • Atelier MKD|极简主义风格!
  • 东莞保利首铸鹭湾185样板间!
  • 【梁志天】西安曲江·九曲松间
  • 无间-上海汤臣君品合院方案
  • 君品-汤臣金桥花园项目方案
  • 无间-上海大宁中建玖上琅宸
  • HWCD-烟台洲際酒店深化方案图册
  • 琚宾新作-资兴东江湖度假酒店
  • 2025拓者年费+案例Vip会员说明!
  • 【 拓者年费--CAD图纸】
  • 【 拓者年费--户型方案】
  • 【 拓者年费--豪宅视频】
  • 【 拓者年费--灵感图库】