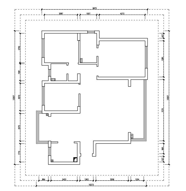
自己的家,主卧布局不太满意,客厅和阳台太大了,厨房和餐厅也小

2020-10-9/ 户型方案/ 户型交流/ 只看大图 阅读模式
仅供分享不做任何商业用途,版权归原作者所有,谢谢配合。

马上注册,结交更多好友,享用更多功能,让你轻松玩转社区。

您需要 登录 才可以下载或查看,没有帐号? 注册

x
1.四口人住,有两个孩子
2.正常居住需求
3.可以把空间利用好
a4b58a6fb2e437116ee43e7a97f4c32.png

 

精华推荐
换一换

发表评论4

  • 忍莫 2020-10-10 11:48:19

    回帖奖励 +100 金币

    客厅空间分隔给主卧会不会舒服点

自己的家,主卧布局不太满意,客厅和阳台太大了,厨房和餐厅也小
拓者推荐
  • 朴悦-华润小径湾-悦海白兰墅
  • 琚宾-杭州保亿观云钱塘城
  • 召禾设计-上海汤臣君品
  • CCD-华润置地南通澐璟
  • HBA&DAS-中海江南玖序
  • CCD-华润 CCBD 889㎡设计方案
  • 【召禾设计]天际江景超大平层方案
  • 【WSD世尊】建发·云启玉诸
  • CCD-华润玺宸上院中叠样板间
  • CCD-武汉绿城外滩玫瑰园别墅
  • 2025拓者年费+案例Vip会员说明!
  • 【 拓者年费--CAD图纸】
  • 【 拓者年费--户型方案】
  • 【 拓者年费--豪宅视频】
  • 【 拓者年费--灵感图库】