套三改套一求思路

2020-10-9/ 户型方案/ 户型交流/ 只看大图 阅读模式
仅供分享不做任何商业用途,版权归原作者所有,谢谢配合。

马上注册,结交更多好友,享用更多功能,让你轻松玩转社区。

您需要 登录 才可以下载或查看,没有帐号? 注册

x
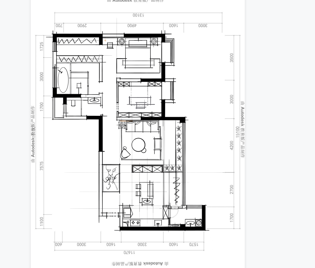
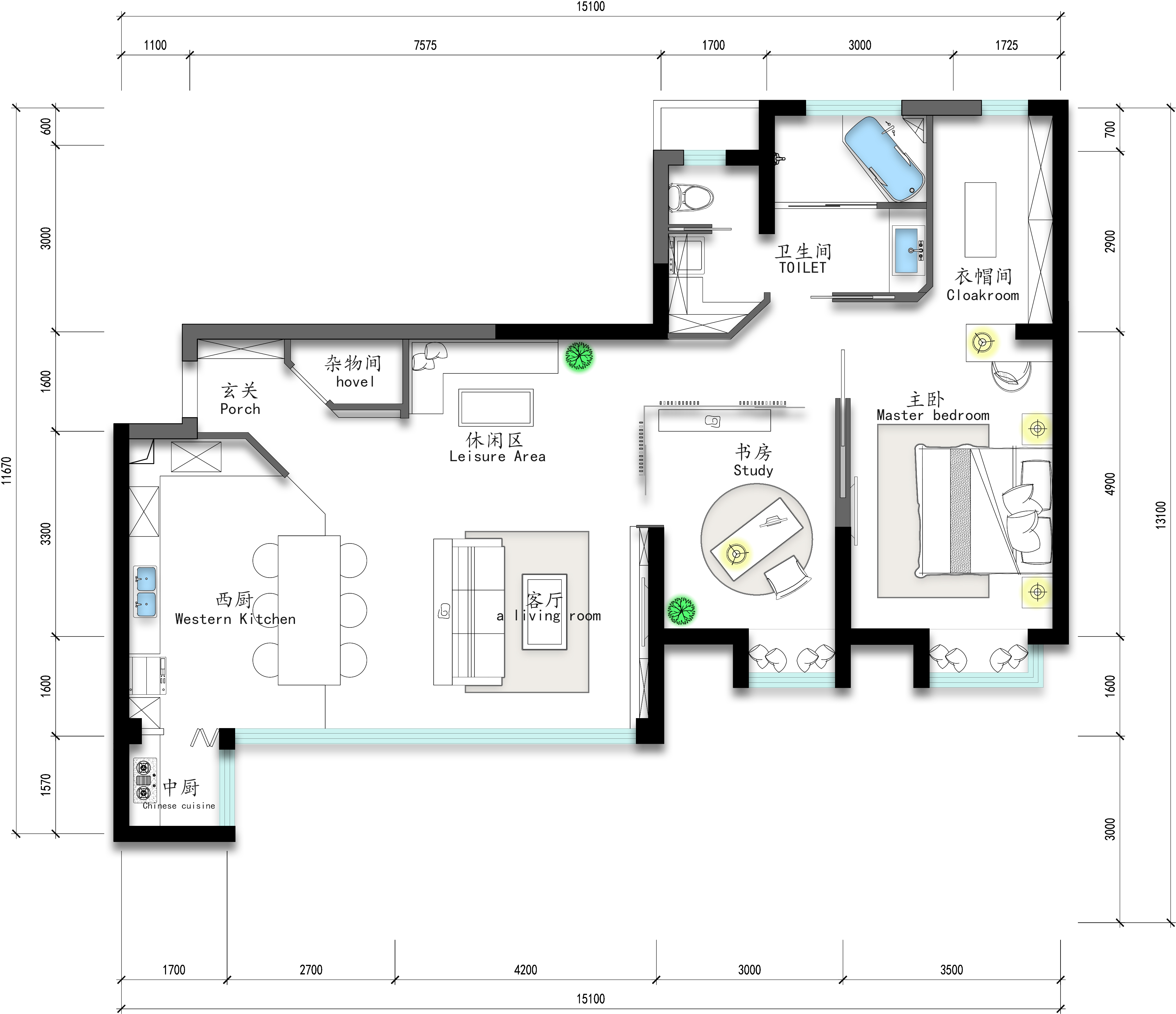
一个男士住,兴趣瑜伽唱歌等,喜欢简洁,后期自己软装搭配,进门需要玄关+进门需要独立杂物间鞋柜放在杂物间,开放式厨房加中导台,客厅不需要常规沙发只要有独立沙发能坐就行简单娱乐区,餐桌可以不用考虑如果要,需要多功能书房加临时可以住,常规卧室只要一个,衣帽间,卫生间保留一个,但是需要四分离设计,独立卫生间 洗衣间通风 洗漱间 淋浴加坐浴加浴缸,不需要电视墙可以考虑投影区域, 不需要主灯
161209dqtta0lpa2j2appx.jpg.thumb.jpg

 

新建文件夹.rar

70.52 KB, 下载次数: 92

标签: 现代客厅
精华推荐
换一换

发表评论8

套三改套一求思路
拓者推荐
  • 朴悦-华润小径湾-悦海白兰墅
  • 琚宾-杭州保亿观云钱塘城
  • 召禾设计-上海汤臣君品
  • CCD-华润置地南通澐璟
  • HBA&DAS-中海江南玖序
  • CCD-华润 CCBD 889㎡设计方案
  • 【召禾设计]天际江景超大平层方案
  • 【WSD世尊】建发·云启玉诸
  • CCD-华润玺宸上院中叠样板间
  • CCD-武汉绿城外滩玫瑰园别墅
  • 2025拓者年费+案例Vip会员说明!
  • 【 拓者年费--CAD图纸】
  • 【 拓者年费--户型方案】
  • 【 拓者年费--豪宅视频】
  • 【 拓者年费--灵感图库】