合肥飞墨设计新作||160㎡侘寂风平层,拆墙体打造开放式空间,洄游动线串联全屋!

仅供分享不做任何商业用途,版权归原作者所有,谢谢配合。

马上注册,结交更多好友,享用更多功能,让你轻松玩转社区。

您需要 登录 才可以下载或查看,没有帐号? 注册

x
以人为本,
才是好的家居设计。

微信图片_20201012150151.jpg
项目地址  /  合肥 - 铂悦庐州府
设计风格 /  侘寂风
项目面积 / 160㎡
设计+施工团队  /  合肥飞墨设计

本案是一套160㎡的平层,业主二人均为企业高管,有一位住家阿姨照顾五岁的女儿,偶尔会有朋友小聚。对于家,业主的要求很高,希望家是轻松、安静的,空间简洁明朗,拥有人性化的动线和充足的储物空间。

一切基于人的设计,才是支撑家居舒适度的重点。结合业主的居住需求,我们将原始的空间规划重组,以洄游动线和更多开放式的格局解锁生活的多种可能。

设计解析

微信图片_20201012150156.jpg
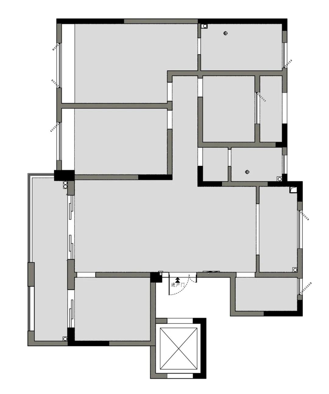
原始户型图

微信图片_20201012150158.jpg
平面方案图

具体需求与解决方案如下:
◆ 夫妻+五岁女儿+住家阿姨
◇ 四室改三室,将更多空间让位于生活。

◆ 希望家是通透的,互动性要强
◇ 客餐厨与书房客卫开放式设计,洄游动线形成贯通空间。

◆ 要有充足的储物空间
◇ 多空间顶天立地的柜体与兼顾收纳功能的卡座设计解决需求。

纵观整个家的改造,设计师从功能主义出发,在均衡空间机能分配的关系下,保证空间最大化利用。

客厅

微信图片_20201012150202.jpg
舒适的、高级的家,并不在于有多少元素的堆砌,删繁就简,客厅保留必要的功能性家具,一两种柔和的色彩,便能还原出生活本真的状态,成为让居者卸下一切疲惫和压力的地方。
阳台扩入客厅,让空间更充裕丰盈,别出心裁的百叶窗设计,让美学之光照进家中,生活也会变得更丰富、立体、自由。

餐厨&客卫

微信图片_20201012150215.jpg

微信图片_20201012150211.jpg

微信图片_20201012150221.jpg

微信图片_20201012150218.jpg
开放式餐厨空间延续整体自然侘寂的基调,以木饰面独立分区,通过材质间的相互碰撞实现和谐共生,构建出空间的立体层次与高级气质。

由于原始厨房空间较小,我们并入相邻的鸡肋小储藏室,将操作台及西厨区结合再延伸到餐桌,宽敞的空间既可以满足与孩子一起做烘焙,也方便女主人做花艺。

书房

微信图片_20201012150224.jpg

微信图片_20201012150227.jpg
书房,是一家人共同学习成长的空间,在这里的规划上,考虑到全家人共同使用的多种可能,通过多功能书桌提供交流平台,窗边卡座兼顾书柜功能方便拿取,墙角壁炉里的萤萤火光为整个空间营造轻松温馨的氛围。

由于原始房型顶面梁体较多,且高度下来很多,我们将顶面做了异形设计,波浪形的天花将层高释放的同时,让空间更灵动有活力。

客厅、餐厨与客卫及书房,形成贯通的状态,巧妙的整合将空间串联,形成节奏丰富又对立呼应的格局,也让这个家张弛有度。

主卧

微信图片_20201012150231.jpg
好的设计,在满足生活内容的前提下,让空间以更包容的状态服务居者,将舒适发挥的淋漓尽致。

在如今快节奏的生活中,家不仅仅是灵魂的避风港,更需要便捷的动线与多种可能。我们把主卧规划成套房,一整面墙的衣柜满足收纳;卡座设计为这对日常忙碌的夫妻提供了一个私密的沟通空间;分离式卫生间增加了浴缸功能并且彼此独立,在保证舒适的前提下,也实现了空间功能性的延伸。


精华推荐
换一换

发表评论1

合肥飞墨设计新作||160㎡侘寂风平层,拆墙体打造开放式空间,洄游动线串联全屋!
拓者推荐
  • CCD--580㎡福州建总雍湾
  • 观享际 x 北谷地产
  • 会讲方案的设计师,行走的印钞机
  • 郝泽伟设计工作室 | 《木朴》
  • 【CCD+SRD】苏州·双湖玫瑰园
  • CCD-华润 CCBD 889㎡设计方案
  • 【召禾设计]天际江景超大平层方案
  • 【WSD世尊】建发·云启玉诸
  • CCD-华润玺宸上院中叠样板间
  • CCD-武汉绿城外滩玫瑰园别墅
  • 2025拓者年费+案例Vip会员说明!
  • 【 拓者年费--CAD图纸】
  • 【 拓者年费--户型方案】
  • 【 拓者年费--豪宅视频】
  • 【 拓者年费--灵感图库】